啟德柏蔚森I涉291伙 兩房佔七成 面積234呎起|新盤樓書
新世界發展(017)及遠東發展(035)合作發展的啟德跑道區新盤「柏蔚森I」今日(27日)正式上載售樓說明書,提供291伙,涵蓋一房至三房間隔,實用面積介乎234至560方呎。
據樓書顯示,項目由兩座住宅大樓組成,分別為第5座及第6座,第5座標準樓層每層設9伙及3部升降機,第6座標準樓層每層設15伙及2部升降機。
戶型分布方面,項目主打兩房佔七成,涉及205伙,標準兩房佔182伙,實用面積由374至400方呎,另設23伙兩房連書房單位,實用面積469方呎,兩房分布於第5座及第6座,部分外望九龍灣遊艇海景或維多利亞港海景;一房僅提供28伙,實用面積由272至288方呎,均位於第6座,外望會所泳池景;三房涉及46伙,實用面積由512至560方呎,均位於第5座,外望九龍灣遊艇海景。
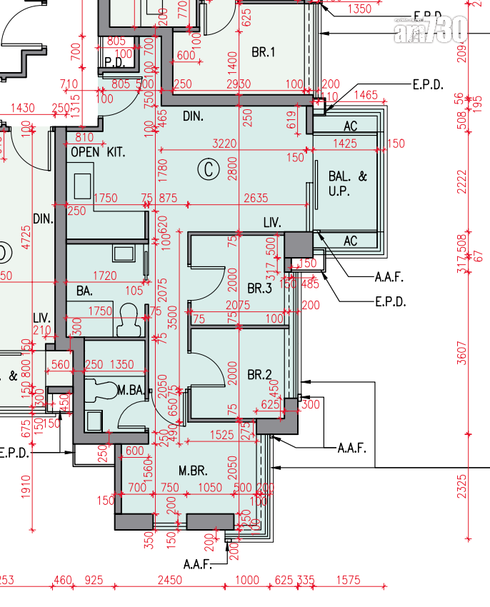
⇊柏蔚森I平面圖⇊
提供12伙特色單位
另外,項目提供12伙特色單位,實用面積由234至560方呎,包括9伙連平台特色戶,連平台面積由28至131方呎,以及3伙連天台特色戶,連天台面積由353至394方呎。
全盤面積最細單位為第6座2樓J室,一房間隔,實用面積234方呎,連30方呎平台。面積最大單位包括第5座2至29樓C室,三房間隔,實用面積560方呎,其中頂層29樓C室連394方呎天台,需經由公共樓梯抵達。
「柏蔚森I」停車位位於地庫1樓及2樓,合共提供31個住宅停車位。項目預計關鍵日期為2025年8月31日,樓花期長約14個月。




















