屯門項目|入伙近8年THE DRAKE突上樓書 涉75伙 田北俊家族持有或轉租為賣
屯門區近期成為新盤市場焦點,區內有項目作新部署。由田北俊家族旗下萬泰集團發展的掃管笏THE DRAKE突擊上載售樓說明書,提供75伙分層戶及洋房,暫未公布銷售安排。
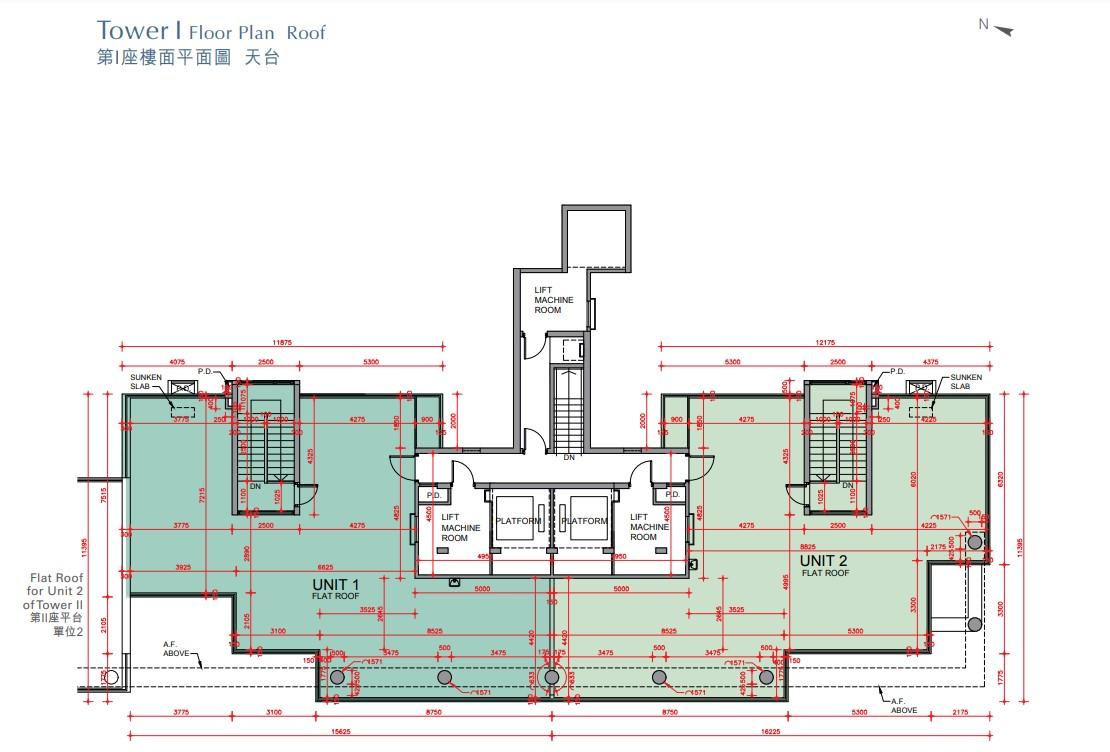
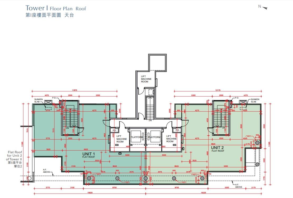
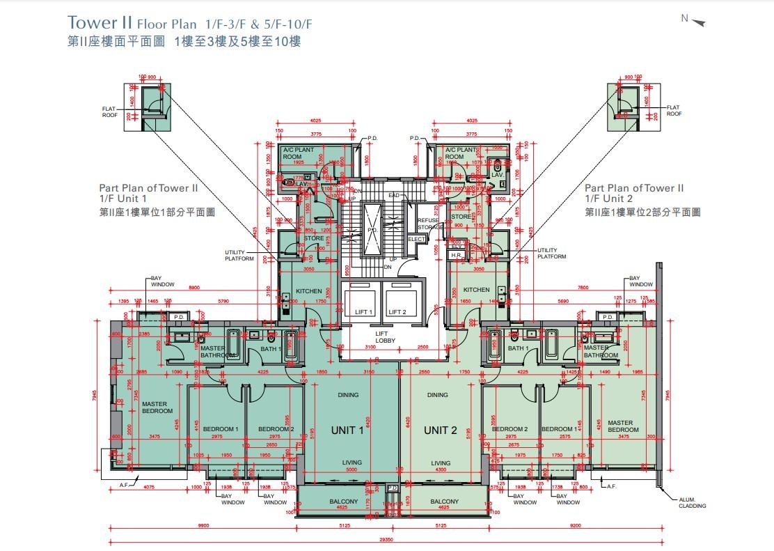
據樓書顯示,項目由2座樓高11層住宅大樓,涉39伙;以及36幢洋房組成,合共涉75伙。單位實用面積介乎1,484至4,823方呎,當中分層單位實用面積介乎1,484至3,209方呎,洋房實用面積介乎3,348至4,823方呎。
全盤最細單位為第II座的1樓2室,實用面積1,484方呎,連14方呎平台,3房間隔。最大單位為洋房8號屋,實用面積4,823方呎,連3,546方呎花園、111方呎平台及970方呎天台。
THE DRAKE位於青龍路1號,於2014年9月經已入伙,樓齡近8年,早前作收租用途,不排除現轉租為賣。













