幸薈上載樓書 面積135至309呎 佔逾七成為開放式戶|長沙灣新盤
由益兆集團及俊和合作發展的長沙灣「幸薈」(SOYO SQUARE)以現樓形式登場,今日(11日)上載售樓說明書,屬單幢式物業,提供95伙,單位實用面積介乎135至309方呎,戶型涵蓋開放式及兩房,亦設有連平台或天台的特色單位。發展商表示,項目將會在短期內開放現樓示範單位及公布最新銷售部署。
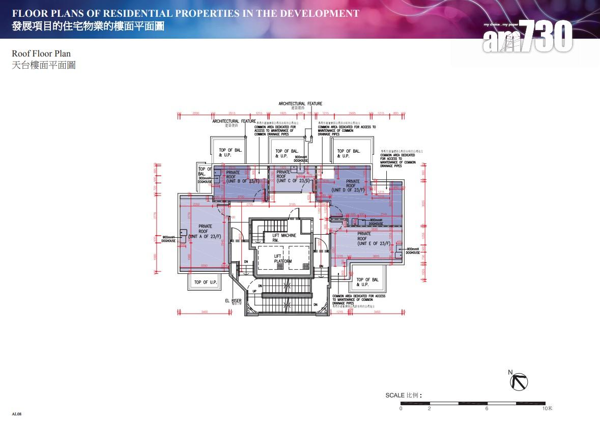
據樓書顯示,每層設有5伙,提供2部升降機。戶型分布方面,項目主打開放式單位,涉及68伙,佔全盤逾70%,實用面積介乎177至237方呎。另有17伙兩房開放式廚房單位,實用面積介乎309方呎。另有5伙連平台及5伙連天台特色戶,實用面積介乎135至309方呎。
全盤面積最細單位為2樓C室,實用面積135方呎,連39方呎平台,開放式間隔,大門左邊為浴室,長形客飯設計,開放式廚房毗鄰平台。面積最大為5至23樓D室,實用面積309方呎,兩房間隔,其中23樓連185方呎天台。
部分單位露台連接工作平台
發展商指,部分單位露台連接工作平台,靈活運用戶外空間的特性外,設計上更將戶外空間由外牆分隔,大大提高私隱度。至於2樓及23樓的連平台或天台特色單位亦有特高的層與層之間高度,最高達約3.5米,可以充分運用上下空間。部分開放式單位間隔照顧用家需要,稍作變化即可分隔起居及就寢空間,而且廚房及浴室配備各式高級品牌器具。
「幸薈」是繼旺角「雋薈」後,「SOYO」系列第二個樓盤,處於西九龍黃金圈位置,除了區內已活化成集甲級商業項目及創意工業的新核心地段外,憑藉周邊完善的交通網絡,由項目出發約15分鐘路程即可輕鬆到達國際級商業地標、娛樂文化重點、消閒娛樂熱點,以至接通內地及世界各地。周邊更匯集名校及文化設施,坐享優質教育資源及綠色環境。















