康城新盤|凱柏峰II首推138伙 發展商:「繼續開心價」 短期內收票
發展商積極推盤應市,由信和置業(083)、嘉華國際(173)、招商局置地(978)及港鐵(066)合作發展的將軍澳日出康城凱柏峰II昨日(9日)經已上載售樓說明書,並「閃電」公布首張價單,涉138伙,扣除最高16%折扣優惠後,折實售價由636.88萬元起,折實平均呎價18,378元。
信置執行董事田兆源形容該盤首批單位屬「繼續開心價」,定價較凱柏峰I有約0.5%至1%的加幅,主要由於II期景觀及位置更佳,會視乎市場反應,有機會短期內加推,並將公布收票安排。他說,凱柏峰II首批包括28伙一房、101伙兩房及9伙三房。最低售價為第2A座10樓D室,實用面積339方呎,一房開放式廚房,折實售價 636.88萬元,呎價18,787元。
嘉華國際營業及市場策劃總監(香港地產)温偉明稱,首批最低呎價為第2A座10樓B室,實用面積719方呎,三房套加儲物室,折實售價1,252.27萬元,呎價17,417元。此外,兩房最低售價為第2B座10樓E室,實用面積453方呎,兩房開放式廚房,折實售價 799.09萬元,呎價17,640元。
投資者郭太:對港樓市有信心 不擔心加息
凱柏峰II已開始接受認購登記,暫收近700票,以首張價單138伙計,超額認購約4倍。
正等候參觀示範單位的郭太表示,有意購入一房或兩房單位作投資收租之用,預算1,000萬元內,對香港樓市有信心,亦不擔心加息因素。
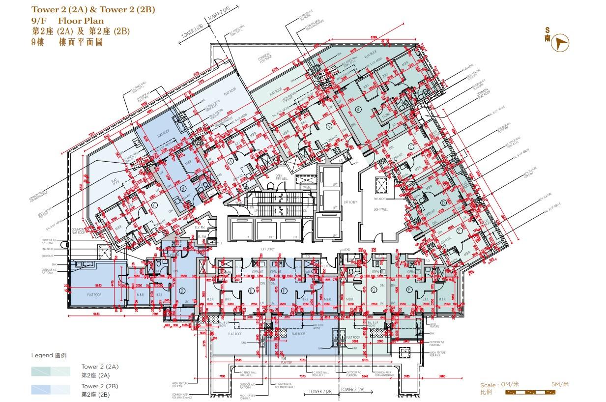
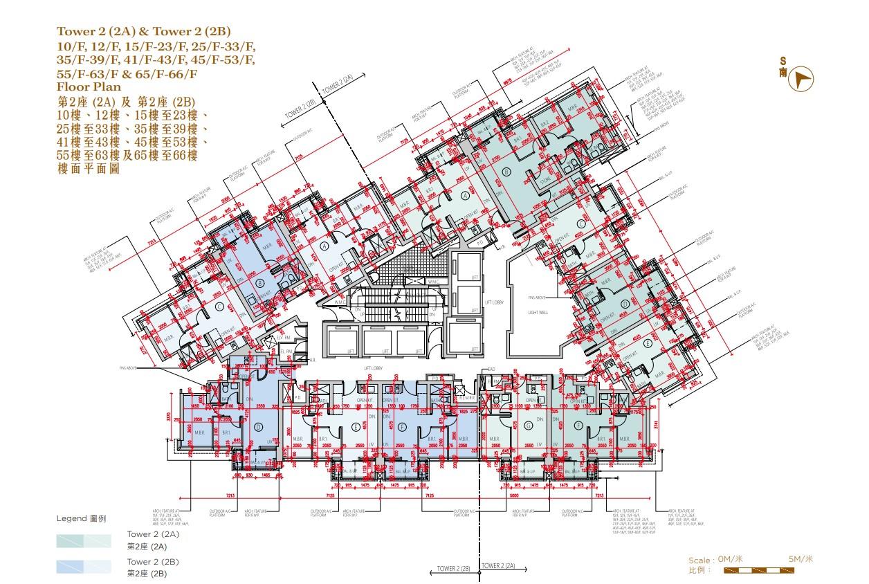
標準戶最細337方呎起
據樓書顯示,凱柏峰II細分2A及2B座,提供644伙,包括624伙標準戶及20伙特色戶。單位實用面積由299至989方呎,戶型涵蓋一房至三房;一層13伙,設6部升降機。
全盤最細單位為第2B座9樓B室,實用面積299方呎,外連190方呎平台,一房開放式廚房間隔;而最細的標準戶為第2B座B室,實用面積337方呎,一房開放式廚房間隔。














