dadblk3 madblk3
adblk3
adblk3
地產
出版:2023-Mar-08 21:36
更新:2023-Mar-08 21:36

新盤樓書|何文田瑜一第1B期提供183伙 面積336至1234方呎

分享:
新盤樓書|何文田瑜一第1B期提供183伙 面積336至1234方呎

新盤樓書|何文田瑜一第1B期提供183伙 面積336至1234方呎

adblk4

位於何文田忠孝街1號、由華懋集團與港鐵(066)合作發展的何文田站上蓋瑜一,分3期發展,當中第1B期今日(8)上載售樓說明書,由1座住宅大樓組成,提供183伙,單位實用面積介乎3361,234方呎,戶型涵蓋一房至四房。

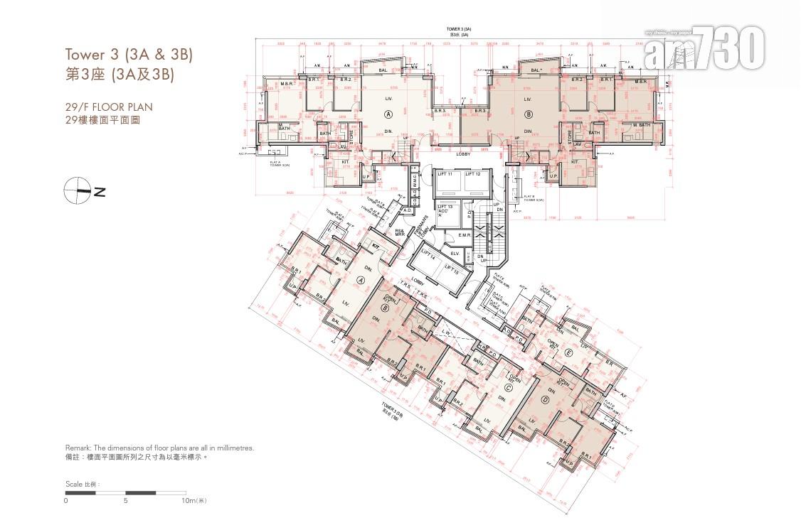
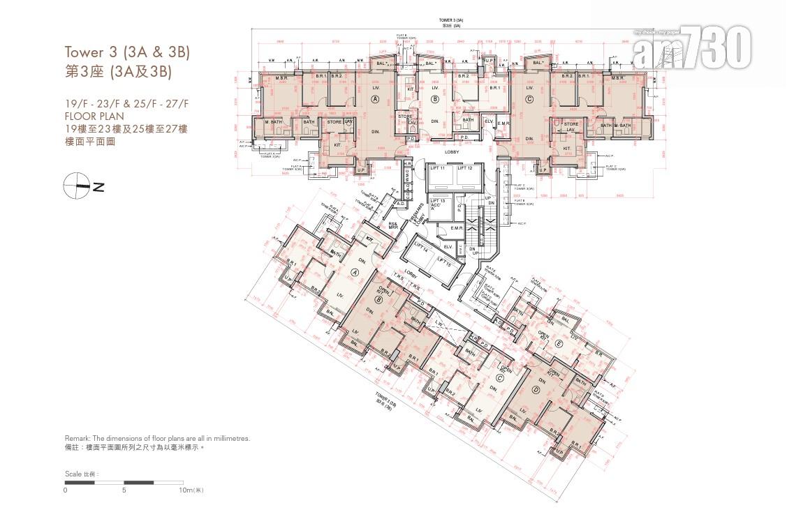
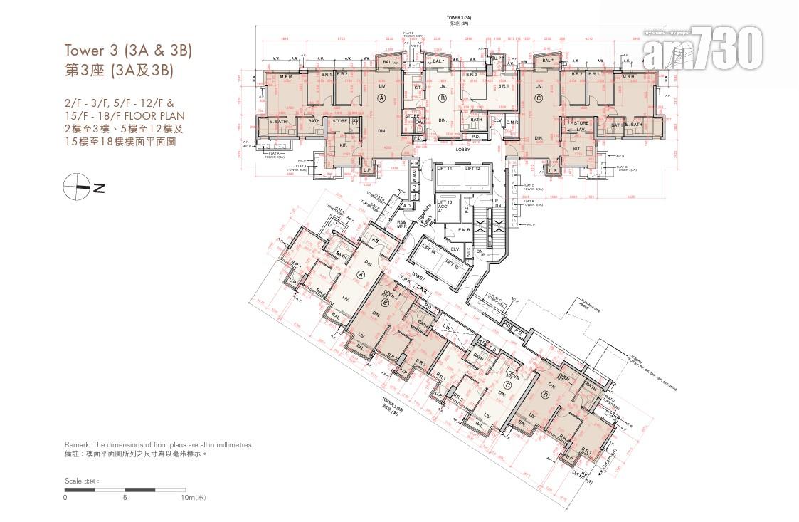
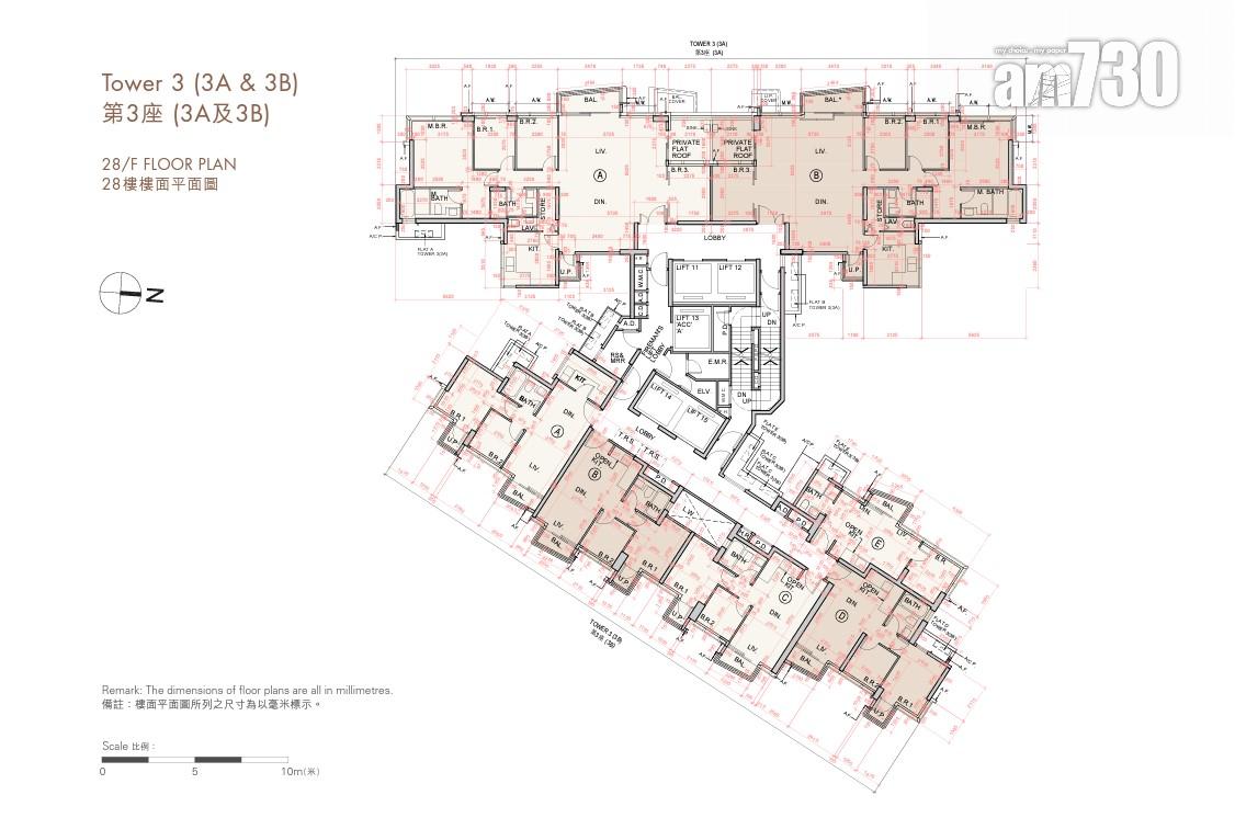
根據樓書顯示,瑜一第1B期位處第3座,位處整個項目中間位置,細分為3A3B兩翼。16伙特色單位,包括1樓為連平台特色單位,實用面積介乎422至897方呎,平台面積介乎140至434方呎。3A座28樓A及B室為連平台特色單位,實用面積均為1,234方呎,另連51方呎平台。29樓為連天台特色單位,實用面積介乎336至1,234方呎,天台面積介乎248至866方呎。

adblk5

新盤樓書|何文田瑜一第1B期提供183伙 面積336至1234方呎 新盤樓書|何文田瑜一第1B期提供183伙 面積336至1234方呎 新盤樓書|何文田瑜一第1B期提供183伙 面積336至1234方呎

全盤面積最細為第3B座各層E室,實用面積336方呎,一房開放式廚房間隔,單位採橫向設計,睡房設有曲尺大窗。面積最大則為第3A29樓B室,實用面積1,234方呎,另連866方呎天台。

瑜一第1B期主打兩房單位,涉123伙,佔全盤約68%,實用面積介乎422至576方呎;三房佔46伙,實用面積介乎897至941方呎;一房涉10伙,實用面積336方呎;四房提供4伙,實用面積1,234方呎。

項目設有總面積7,822方呎住客會所,預計關鍵日期為20241129日,樓花期長約20個月。

即睇何文田瑜一第1B期最新資訊 (House730)

新盤樓書|何文田瑜一第1B期提供183伙 面積336至1234方呎 新盤樓書|何文田瑜一第1B期提供183伙 面積336至1234方呎 新盤樓書|何文田瑜一第1B期提供183伙 面積336至1234方呎 新盤樓書|何文田瑜一第1B期提供183伙 面積336至1234方呎 新盤樓書|何文田瑜一第1B期提供183伙 面積336至1234方呎 新盤樓書|何文田瑜一第1B期提供183伙 面積336至1234方呎 新盤登場|何文田站瑜一第IB期涉183伙 主打兩房佔近七成

ADVERTISEMENT

立即更新 /下載AM730手機APP 體驗升級功能

ad

恭喜你!獲取1分 !

更多積分任務