新盤樓書|何文田瑜一第1C期涉214伙 面積最大1213方呎四房
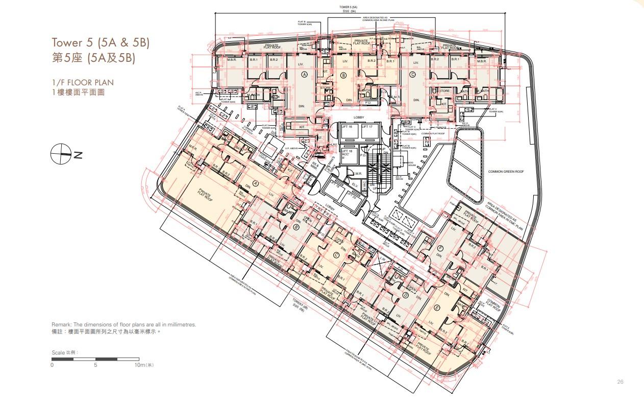
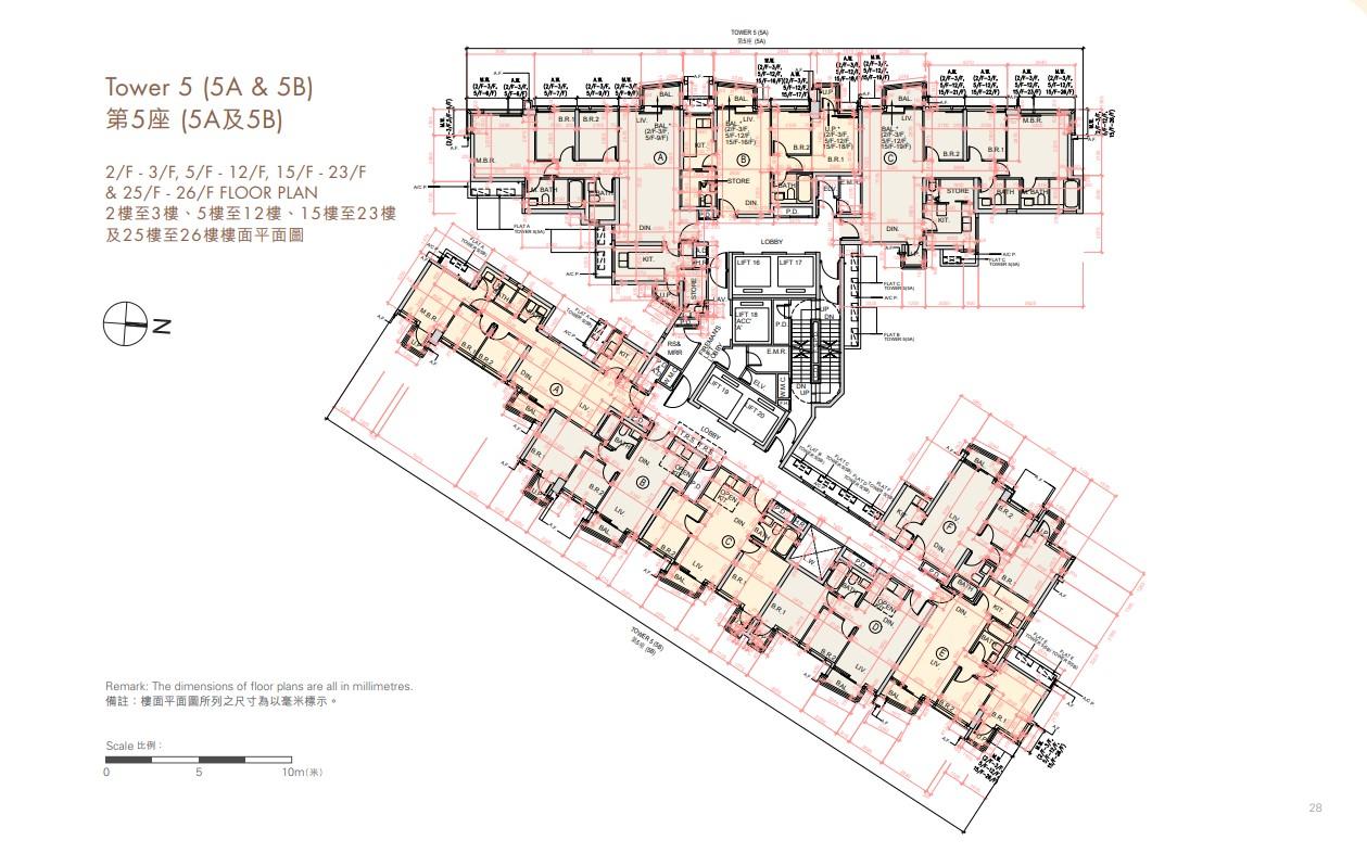
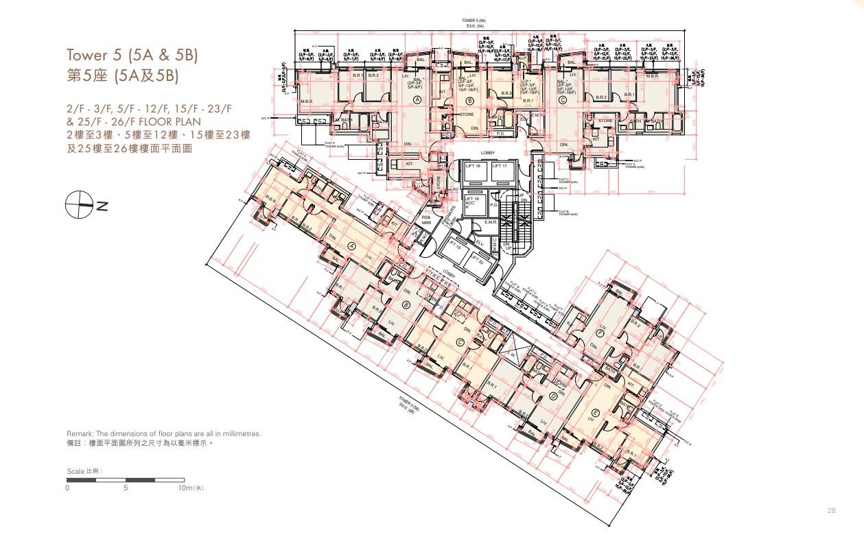
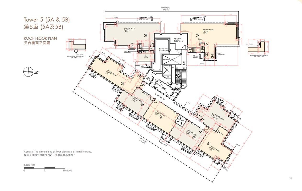
位於何文田忠孝街1號、由華懋集團與港鐵(066)合作發展的何文田站上蓋瑜一,分3期發展,當中第1C期已上載售樓說明書,位處整個發展項目北面,涉及一座住宅大樓,細分為5A及5B座,提供214伙,單位實用面積介乎423至1,213方呎,戶型涵蓋兩房至四房。
根據樓書顯示,第5A座標準樓層一層設有3伙,備兩部升降機;而第5B座一層設有6伙,備兩部升降機。
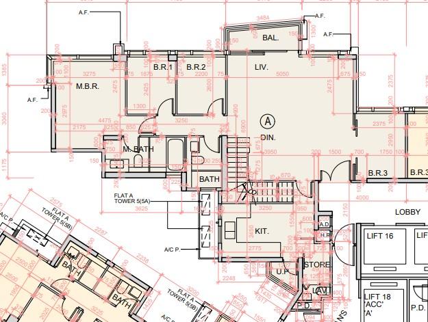
單位戶型分布方面,兩房佔142伙,三房佔68伙,而四房則涉4伙。兩房實用面積介乎423至576方呎;三房實用面積介乎619至934方呎;四房實用面積介乎1,207至1,213方呎。
面積最細423方呎
全盤面積最細為第5B座的1樓B室,實用面積423方呎,兩房開放式廚房間隔,連134方呎平台。標準戶面積最細為第5B座的B室,實用面積461方呎,兩房開放式廚間隔。
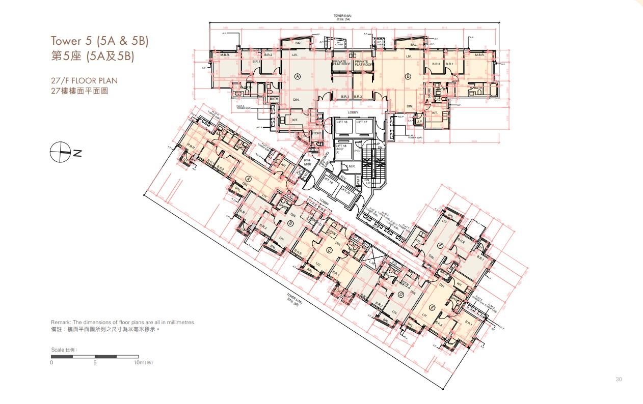
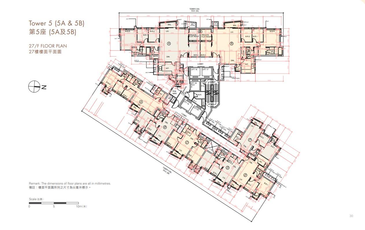
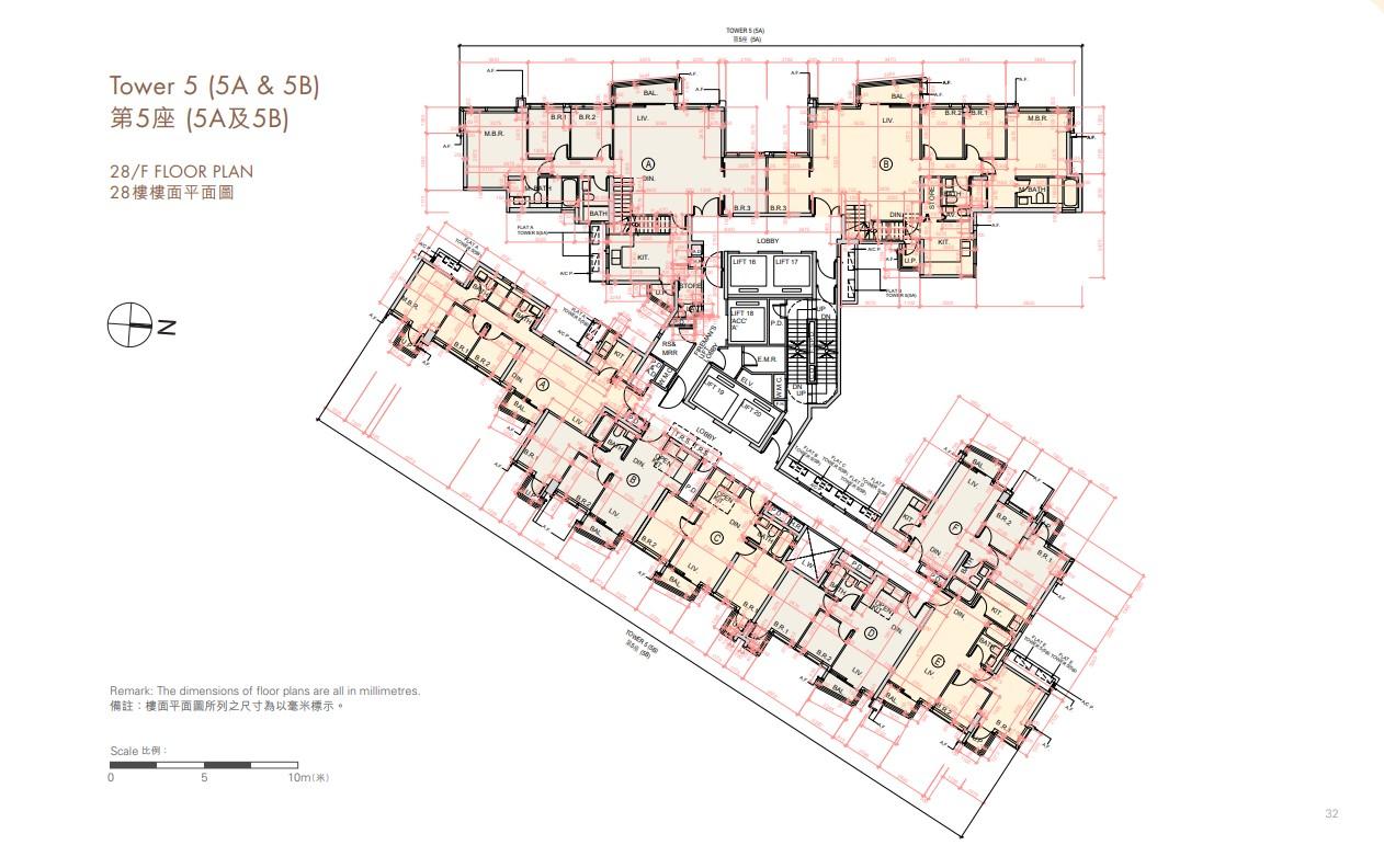
至於全盤最大面積分別為第5A座27樓A室,實用面積1,213方呎,連51方呎平台;以及第5A座的28樓A室,實用面積1,213方呎,連820方呎天台,兩伙均屬四房一套連儲物房間隔。
該盤預計關鍵日期為2025年5月5日,樓花期長約26個月。

















