新盤樓書|天瀧提供566伙 面積351至1942方呎 主打三房及四房
位於啟德承豐道22號、由恒基地產(012)、中國海外發展(688)、華懋集團、帝國集團、新世界發展(017)及會德豐地產合作發展啟德「PARK PENINSULA 海灣半島」天瀧上載售樓說明書,提供566伙,單位實用面積介乎351至1,942方呎。項目預計關鍵日期為明年9月30日,樓花期長約17個月。
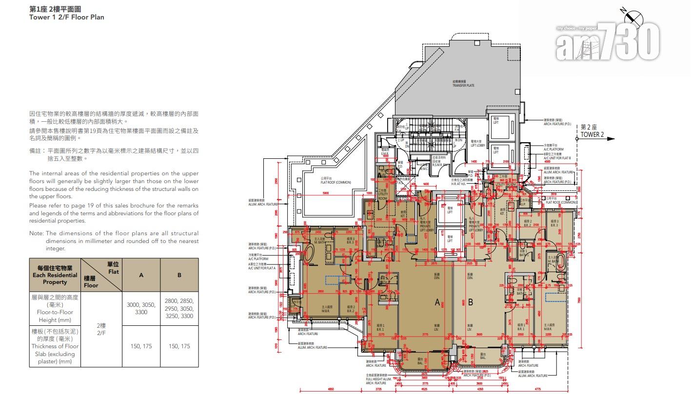
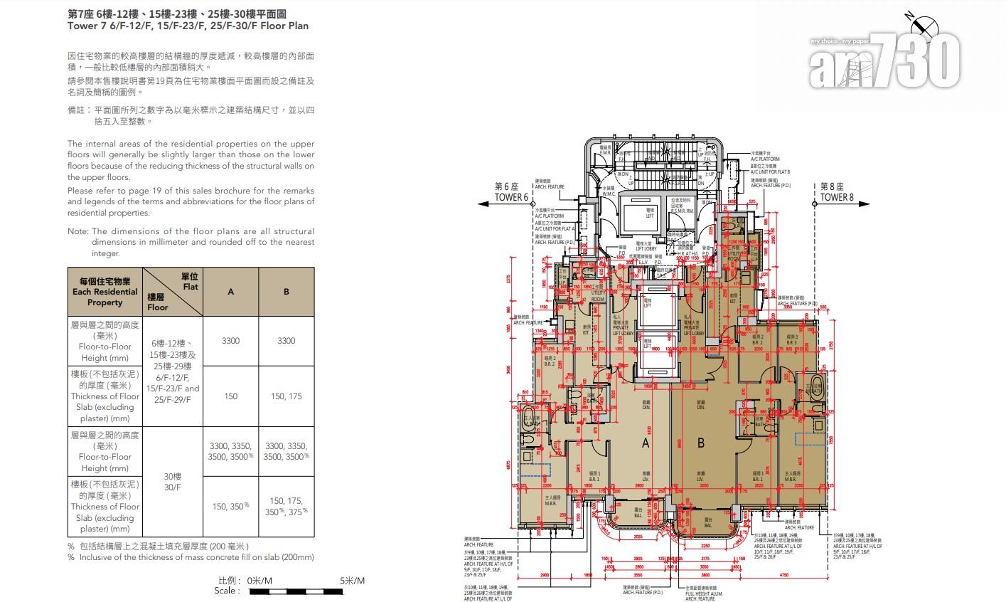
天瀧由7幢高樓及1幢低座大屋(Harbour Mansion)組成,7座高座大樓並排而建,分第1座、2座、3座、5座、6座、7座及8座;而低座大樓則位於第8座前方。
天瀧由7幢高樓及1幢低座大屋(Harbour Mansion)組成。
三房及四房單位均設私人升降機大堂
高座大樓每層設2至4伙,共享2部升降機。不過位處高座的所有三房及四房單位均設私人升降機大堂,故大部分標準樓層的升降機僅由2伙一房單位共用。
至於單位戶型涵蓋一房、三房及四房。當中一房實用面積351方呎,涉160伙,佔全盤約28%;三房實用面積635至1,117方呎,佔192伙,佔全盤約34%;四房實用面積1,173至1,428方呎,提供208伙,佔全盤約37%;另設6伙特色戶,實用面積900至1,942方呎,連180至425方呎平台,佔全盤約1%。
全盤面積最大單位為第1座33樓A室,實用面積1,942方呎,連425方呎平台,採四房三套連工作間間隔。
設409個32A充電住客車位
天瀧住客會所面積逾3.4萬方呎,並設有409個32A充電住客車位,以全盤566伙計,車位與住戶比例不足1比1,料需每兩戶爭一個車位;不過若以406伙三房及四房單位計算,車位與住客比例則達1比1。
































