新盤樓書|屯門飛揚第2期單位不設露台 面積263至722方呎
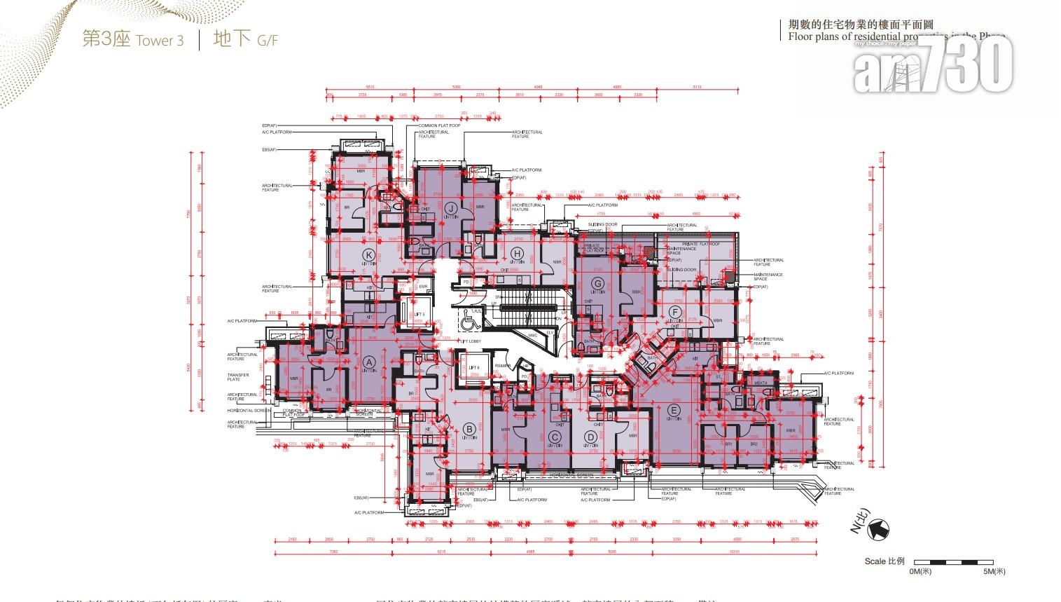
位於屯門青山公路大欖段170號、由長江實業集團(1113)及新鴻基地產(016)合作發展的飛揚第2期已上載售樓說明書,由第3座及第5座組成,提供400伙,單位實用面積介乎263至722方呎,戶型涵蓋一房、兩房及三房。項目預計關鍵日期為2024年12月31日,樓花期長約22個月。
根據樓書顯示,今期與第1期同樣所有單位不設露台,第3座地下F室及G室,分別外連161及63方呎平台;22樓全為連天台特色單位,天台面積介乎186至647方呎。第5座地下C至H室及K室,外連110至278方呎平台。22樓全為連天台特色戶,天台面積介乎176至627方呎。
全盤面積最細的第3座F室,實用面積263方呎,一房開放式廚房間隔,玄關呈不規則設計,客廳及房間均設有隔音窗。面積最大則為第3座及第5座的E室,實用面積722方呎,三房一套連儲物房間隔。值得一提,部分單位因靠近青山公路大欖段,故發展商於單位內設有噪音緩解設施。
飛揚第2期不設住客車位,而項目第1期提供137個住宅客車位,以兩期合共800伙計算,平均6戶爭1個車位。














