新盤樓書|日出康城凱柏峰III提供644伙 首設開放式 面積283呎起
位於將軍澳康城路1號、由信和置業(083)、嘉華國際(173)、招商局置地(978)及港鐵(066)合作發展的日出康城「凱柏峰III」已上載售樓說明書後,提供644伙,戶型涵蓋開放式至三房,屬系內首度提供開放式戶,單位實用面積最細283方呎起。項目不設住客停車位,預計關鍵日期為2025年1月15日,樓花期長約17個月。
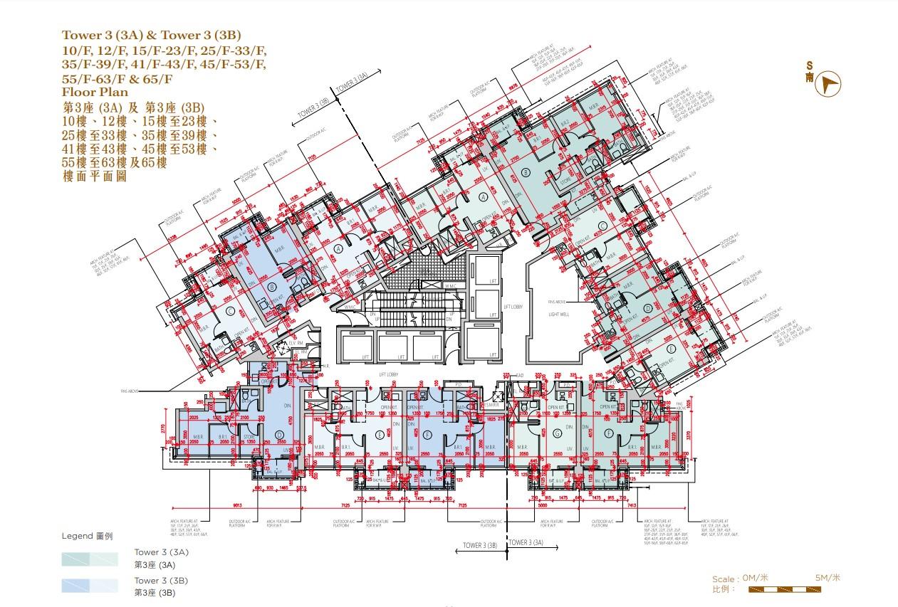
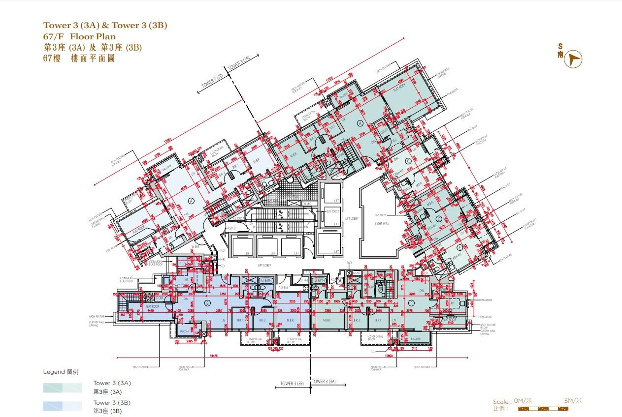
「凱柏峰III」由1座住宅大樓組成,呈三角形布局,細分為第3A座及第3B座,3A座標準樓層設有7伙,備有3部升降機;3B座標準樓層設有6伙,備有3部升降機。至於9樓除第3A座E室及第3B座D室外,全部單位均為平台特色戶;而67樓所有單位為天台特色戶。
「凱柏峰III」單位實用面積介乎283至978方呎。全盤面積最細單位為第3A座9至67樓E室,實用面積283方呎,開放式間隔,一入屋右手邊為浴室,開放式廚房設計。
全盤面積最大單位為第3B座67樓A室,實用面積978方呎,另連139方呎平台及831方呎天台,三房間隔,3間睡房與客飯廳同坐向南,並內置樓梯前往天台。
信置執行董事田兆源表示,「凱柏峰III」主打市場最受歡迎的一房及兩房單位,並首次推出開放式單位;項目有機會短期內公布首張價單。














