新盤樓書|油塘親海駅I 提供228伙 面積273至736呎 逾半單位料享海景
位於油塘東源街、由長江實業集團(1113)發展的「親海駅」提供886伙,分為兩期發展,繼早前已上載第2期「親海駅II」售樓說明書後,今日(28日)再公布位於東源街8號的第1期「親海駅I」樓書。
據樓書顯示,「親海駅I」由1座住宅大樓組成,提供228伙,單位實用面積介乎273至736方呎,涵蓋一房至三房間隔;另設特色單位。項目設有21個住客停車位,預計關鍵日期為2025年7月15日,樓花期長約24個月,較第2期早3個月。
「親海駅I」1樓設有8伙,2樓至27樓則設有10伙,27樓提供9伙連天台特色單位,天台面積介乎118至659方呎,住戶須通過公共樓梯前往天台。
全盤面積最細單位為第1座1樓至27樓K室,實用面積273方呎,一房間隔。單位設有長玄關,入屋左邊為浴室,大廳間隔方正,採開放式廚房設計,客廳與房間坐向一致;而27樓K室另連118呎天台。
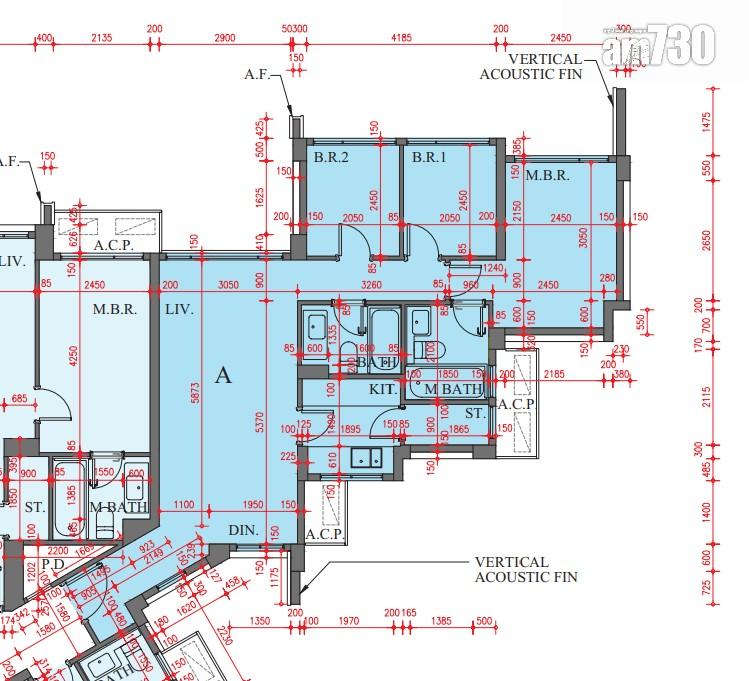
至於全盤面積最大為1座1樓至27樓A室,實用面積736方呎,屬三房一套連儲物室間隔。單位設有長玄關,連接長形客飯廳,3間睡房均與客廳坐向一致,料享海景。單位採獨立廚房設計,連接儲物室;而27樓A室另連659方呎天台。
值得一提,與「親海駅II」一樣,今期全數單位不設露台及工作平台。「親海駅I」約一半單位為兩房及三房,由於位列前排向南,料可享維港海景。
「親海駅I」已上載售樓說明書。












