新盤樓書|油塘親海駅II面積210至723呎 一款戶型單位市場罕見
位於油塘東源街、由長江實業集團(1113)發展的「親海駅」提供886伙,分為兩期發展,率先推出於東源街15號的第2期「親海駅II」,並已上載售樓說明書。「親海駅II」提供3座共658伙,單位實用面積介乎210至723方呎,戶型涵蓋開放式至三房一套連儲物室;另設兩房複式單位,屬市場罕有同類供應。項目預計關鍵日期為2025年10月15日,樓花期長約27個月。
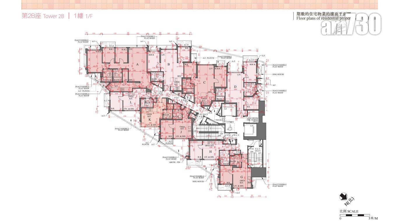
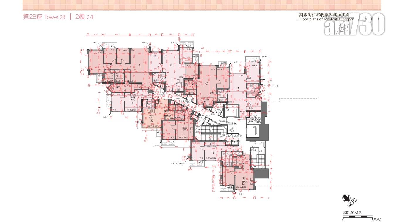
據樓書顯示,項目第2A及2B座設有630伙,標準樓層每層提供9至11伙,一條走廊貫穿全層,各座備有兩部升降機;而第3座為設有28伙名為「Garden Villa」或「Sky Villa」的兩房複式連花園或天台單位,兩款各設14伙。
標準單位主打一房及兩房 共佔460伙
單位戶型分布方面,開放式佔58伙,實用面積210方呎;一房提供232伙最多,實用面積258至283方呎;兩房佔228伙,實用面積447至470方呎;三房一套連儲物室設112伙,實用面積707至723方呎。至於複式單位提供28伙,實用面積501至523方呎,花園面積104至115方呎,天台面積170至172方呎。
「親海駅II」提供3座共658伙,單位實用面積介乎210至723方呎。
全數單位不設露台及工作平台
該盤第2A及2B座面積最細單位為2A及2B座第1至33樓K室,實用面積210方呎,開放式間隔,入屋設有玄關位置,開放式廚房設計。面積最大單位為第2B座1至9樓A室,實用面積723方呎,三房間隔,獨立廚房設計,三間睡房與客飯廳為同一坐向。值得一提,今期全數單位不設露台及工作平台。
複式單位方面,全數採開放式廚房設計,連花園單位大門位置設於花園,其中B1至B8單位住戶需要行數級樓梯才能入屋,廳區及睡眠區分別設於上、下兩層。
單位可享3類景觀
據發展商介紹指,今期單位景觀大致分為3類,包括維港海景、內園泳池景及城市景。當中兩房及三房位列前排,料高層單位大部分可享海景,而開放式及一房以內園景及城市景為主。

























