新盤樓書|紅磡BAKER CIRCLE.GREENWICH提供278伙 面積191至749呎
位於紅磡寶其利街18號、由恒基地產(012)發展的BAKER CIRCLE ONE第3期「BAKER CIRCLE.GREENWICH」已上載售樓說明書,提供278伙,單位實用面積介乎191至749方呎。今期不設住客車位,預計關鍵日期為2025年3月31日。
據樓書顯示,項目為1座住宅大樓,提供3部升降機。5樓至26樓設有13伙,5樓為連平台特色單位樓層;27樓及28樓則設有11伙,而29樓設9伙,部分附連天台。
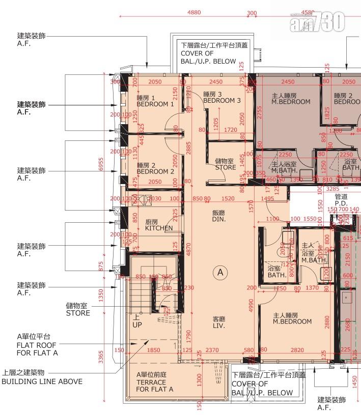
全盤面積最細為5樓D室,實用面積191方呎,連31方呎平台,開放式間隔,單位採長形設計,入屋左邊為浴室,開放式廚房置於客飯廳中間位置,住戶擺放家具需花點心思。標準單位面積最細為6至28樓D室,實用面積212方呎,開放式間隔。至於面積最大為29樓A室,實用面積749方呎,連51方呎平台、704方呎天台及51方呎前庭,屬四房一套連儲物室間隔,單位內置樓梯前往天台,與其他連天台特色單位須使用公家樓梯前往不同。
單位間隔方面,開放式提供60伙,實用面積介乎212至222方呎;一房單位設最多,達154伙,實用面積256至315方呎;兩房單位佔41伙,實用面積345至492方呎;三房單位僅設3伙,實用面積485至492方呎;特色戶提供20伙,實用面積191至749方呎。















