dadblk3 madblk3
adblk3
adblk3
地產
出版:2023-Feb-23 17:10
更新:2023-Feb-23 17:10

新盤樓書|觀塘Bal Residence提供156伙 面積300至793方呎 主攻一房

分享:
新盤樓書|觀塘Bal Residence提供156伙 面積300至793方呎 主攻一房

新盤樓書|觀塘Bal Residence提供156伙 面積300至793方呎 主攻一房

adblk4

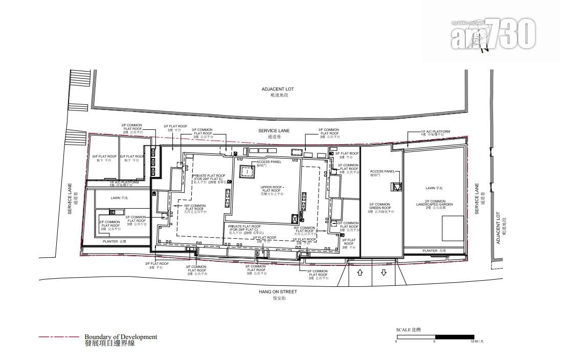
位於觀塘恆安街18號、由麗新發展(488)與市區重建局合作的觀塘Bal Residence,今日(23)正式上載售樓說明書,屬單幢式物業,提供156伙,單位實用面積介乎300793方呎,戶型涵蓋一房至三房。

以項目標準樓層為例,17伙設計,設有2部升降機。3樓至26樓單位全屬一房間隔,實用面積介乎300349方呎;而3樓屬連平台特色單位,平台面積介乎43280方呎。

新盤樓書|觀塘Bal Residence提供156伙 面積300至793方呎 主攻一房 新盤樓書|觀塘Bal Residence提供156伙 面積300至793方呎 主攻一房

全盤面積最細單位為3A室,實用面積300方呎,另連272方呎平台,一房間隔。面積最大單位為29C室,實用面積793方呎,另連464方呎天台,屬三房連套房加儲物室連廁所間隔。

adblk5

「Club Balans」為Pet Friendly會所

項目設有總面積約2,485方呎會所「Club Balans」,為Pet Friendly會所,特別設有Pet Garden等設施,令住客與愛寵共享歡樂時刻。另設有12個停車位,當中7個為住宅停車位,1個住宅電單車停車位。

Bal Residence預計關鍵日期為2024331日,樓花期長約13個月。售樓處及示範設於油塘崇信街6號地下,設有2一房交樓標準示範單位

即睇觀塘新盤Bal Residence最新資訊 (House730)

新盤樓書|觀塘Bal Residence提供156伙 面積300至793方呎 主攻一房 新盤樓書|觀塘Bal Residence提供156伙 面積300至793方呎 主攻一房 新盤樓書|觀塘Bal Residence提供156伙 面積300至793方呎 主攻一房 新盤樓書|觀塘Bal Residence提供156伙 面積300至793方呎 主攻一房 新盤樓書|觀塘Bal Residence提供156伙 面積300至793方呎 主攻一房 新盤樓書|觀塘Bal Residence提供156伙 面積300至793方呎 主攻一房 新盤樓書|觀塘Bal Residence提供156伙 面積300至793方呎 主攻一房

ADVERTISEMENT

ad

恭喜你!獲取1分 !

更多積分任務