發展商乘勢部署推出第1期「親海駅I」,最快本周內公布首張價單。(林俊源攝)
長江實業集團(1113)油塘「親海駅II」昨日(12日)首輪開售626伙,折實售價由290萬元起,折實平均呎價14,868元。項目最終接獲超過3.8萬票,超額認購逾59倍,成為本港歷來新盤「票王」;最終即日沽清全數單位。發展商乘勢部署推出第1期「親海駅I」,最快本周內公布首張價單,並優先安排「親海駅II」向隅客優先選購今期單位。
趙國雄:親海駅I向海單位屬「親海樓王」
長實執行董事趙國雄表示,非常高興「親海駅II」首輪單位悉數售罄,相信不少市民願以現時價格水平入市,認為各個樓盤按其質素與位置定價,「新界較偏遠地區價錢可能要折讓多少少」。對於「親海駅I」的銷售部署,他透露最快本周內開價,由於今期更多單位享有維港海景,形容向海單位屬「親海樓王」,預告定價會較第2期為高,雖然市場估計有約10%的上調空間,惟他坦言賺錢要取之有道,「唔駛賺咁盡」。
長實營業部首席經理郭子威稱,原先計劃「親海駅I」以現樓形式推出,惟見昨日向隅客眾多,故現改變銷售部署。他續稱,會優先安排昨日「親海駅II」首輪開售到場報到登記但未能選購的向隅客,可優先選購「親海駅I」單位。不過由於涉及全新銷售安排,故不設復活票,即所有客人需要重新入票。
親海駅I一房佔114伙
「親海駅I」上月已公布售樓說明書,僅設1座住宅大樓,提供228伙。長實營業經理陳詠慈補充,項目提供114伙一房單位,實用面積介乎273至287方呎;46伙兩房單位,實用面積442至468方呎;68伙三房單位,實用面積介乎714示736方呎;全數兩房及三房單位均享有海景。項目設有21個住客停車位,預計關鍵日期為2025年7月15日。
趙國雄(左)預告,由於今期更多單位享有維港海景,形容向海單位屬「親海樓王」,預告定價會較第2期為高。(林俊源攝)
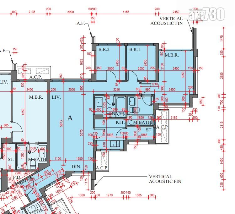
「親海駅I」面積最細單位為第1座1樓至27樓K室,實用面積273方呎,一房間隔。單位設有長玄關,入屋左邊為浴室,大廳間隔方正,採開放式廚房設計,客廳與房間坐向一致;而27樓K室另連118呎天台。
至於全盤面積最大為1座1樓至27樓A室,實用面積736方呎,屬三房一套連儲物室間隔。單位設有長玄關,連接長形客飯廳,3間睡房均與客廳坐向一致,料享海景。單位採獨立廚房設計,連接儲物室;而27樓A室另連659方呎天台。
值得一提,與「親海駅II」一樣,今期全數單位不設露台及工作平台。













