朗賢峯兩期共涉990伙 主打兩房 面積340至2572呎|新盤樓書
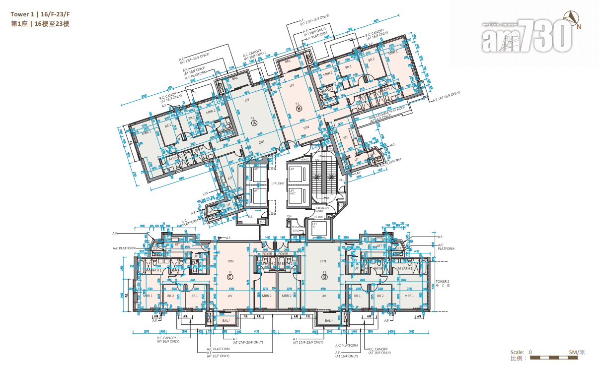
鷹君集團(041)與港鐵(066)合作發展的何文田站上蓋項目「朗賢峯」第IIA及IIB期今日(11日)正式上載樓書至一手住宅銷售資訊網,兩期各涉418伙及572伙,合共提供990伙,戶型涵蓋一房至四房,實用面積介乎340至2,572方呎。
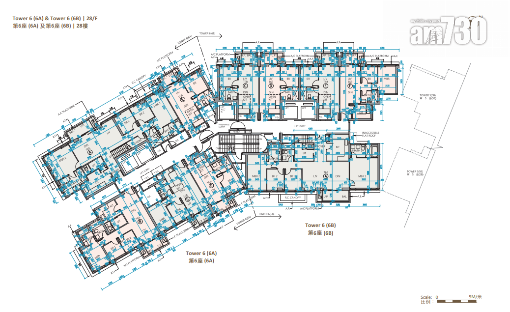
據樓書顯示,項目共由5座住宅大樓組成,當中第1座至第3座屬第IIA期,標準樓層每層設4至7伙及5部升降機;另第5座和第6座屬第IIB期,細分相連的A、B兩翼,標準樓層每層設12伙及5部升降機。
戶型分布方面,項目主打兩房涉372伙,佔全盤約38%,實用面積由482至685方呎;三房提供281伙或約28%,實用面積由725至998方呎;一房佔198伙或約20%,實用面積由377至388方呎;四房提供60伙或約6%,實用面積由1,271至1,433方呎。另設平台及頂層等特色戶,佔79伙或約8%,實用面積由340至2,572方呎。
鷹君地產代理銷售及市務總經理梁淑儀早前透露,當中實用面積介乎1,271至1,433方呎的標準四房雙套單位為「站頂」獨有,部分單位可享有維港煙花景。項目另設專屬升降機連接港鐵何文田站A4出口。
全盤面積最細單位為第IIB期第5B及6B座1樓D及E室,一房間隔,實用面積340方呎,連108至110方呎平台。全盤面積最大為第IIA期2座28樓A室,四房間隔,實用面積為2,572方呎,連1,342方呎天台,可經由室內樓梯抵達。
「朗賢峯」停車位位於地下1樓及2樓,合共提供264個住宅停車位。項目預計關鍵日期為2025年3月31日。


























