油塘新盤|朗譽樓書曝光 面積最大1601方呎五房特色戶
一手市況轉靜,不過仍有發展商繼續推出全新盤應市。由保利置業(119)與尚嘉控股合作發展的油塘朗譽今日(21日)上載售樓說明書,保利置業(香港)銷售及市務部總監朱美儀表示,最快本周內公布首張價單,首批推出單位將不少於127伙,以一房及兩房為主。
她稱,定價會參考九龍東、將軍澳新盤,以及鐵路沿綫項目造價;而展銷中心及示範單位亦計劃於本周內開放予公眾參觀。
朱美儀表示,最快本周內公布首張價單,首批推出單位將不少於127伙,以一房及兩房為主。
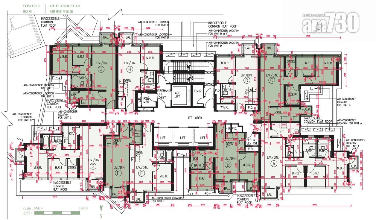
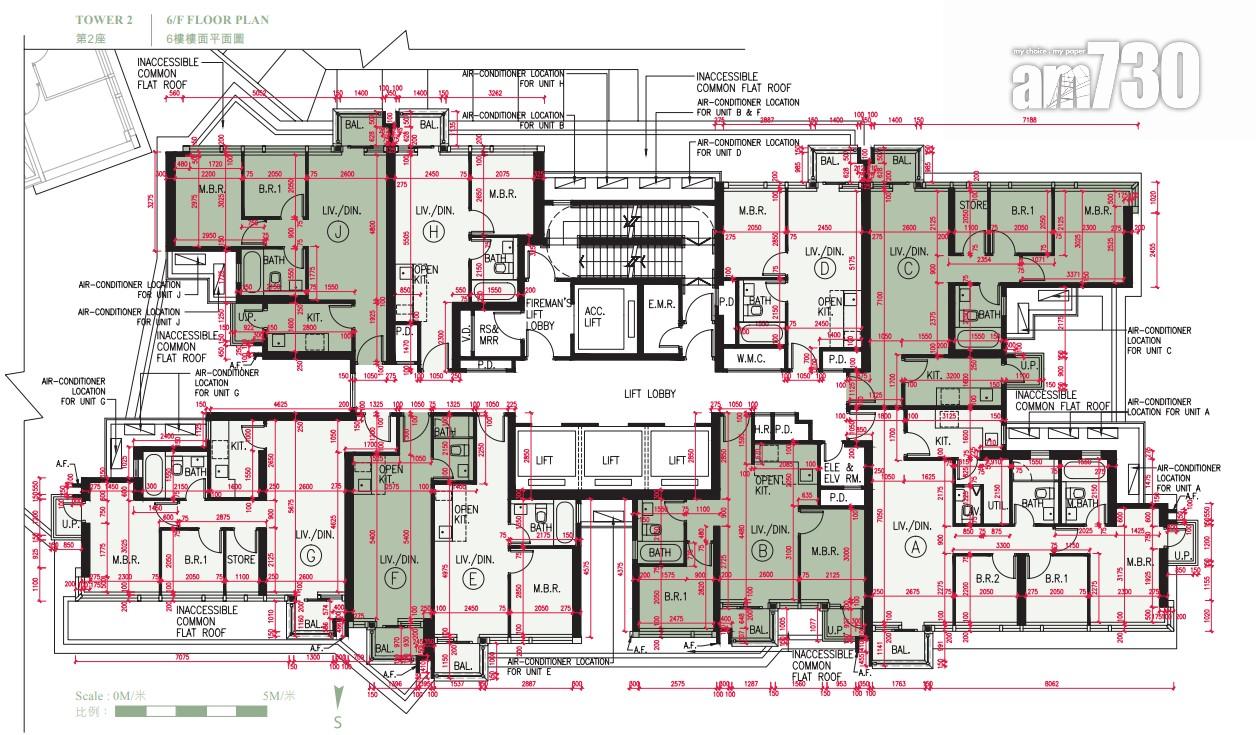
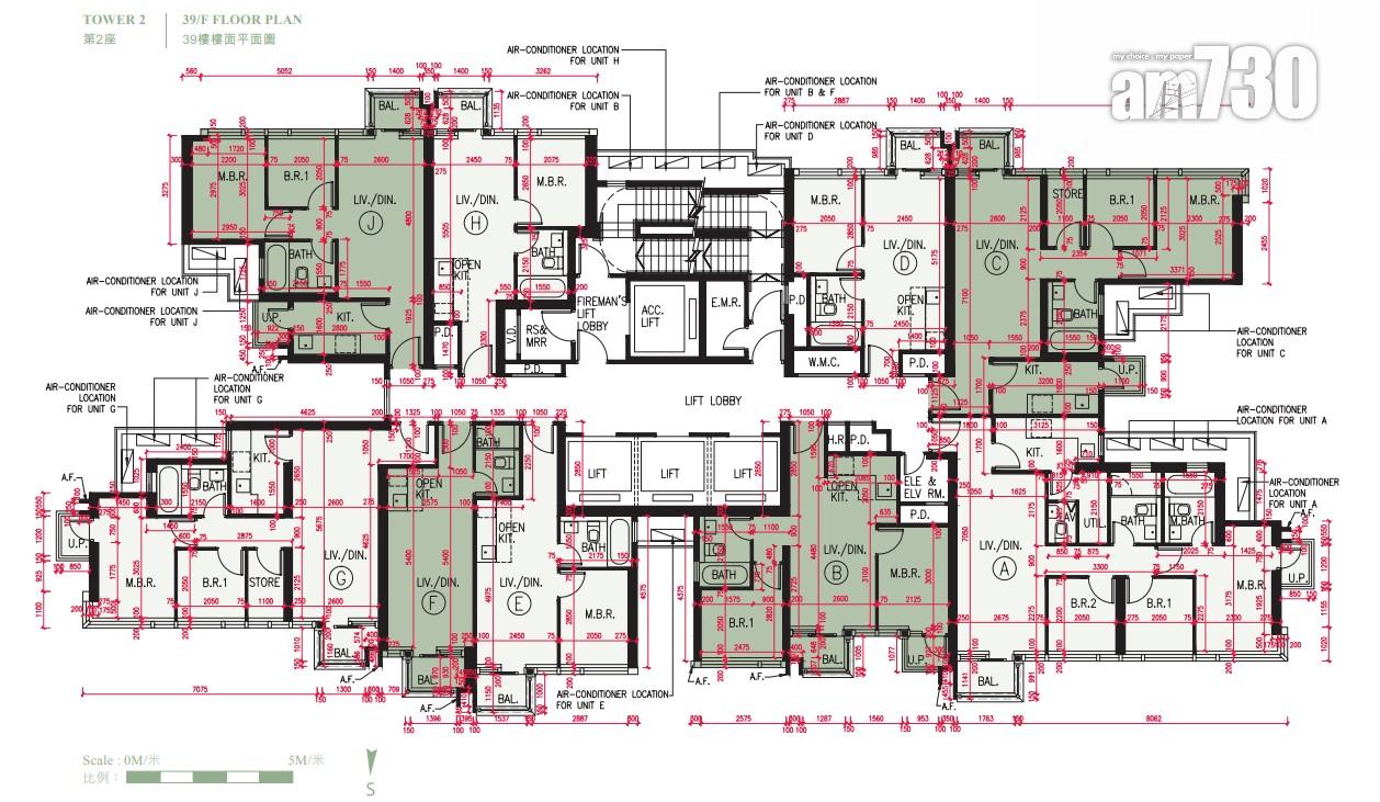
標準樓層每層9至11伙 設3部升降機
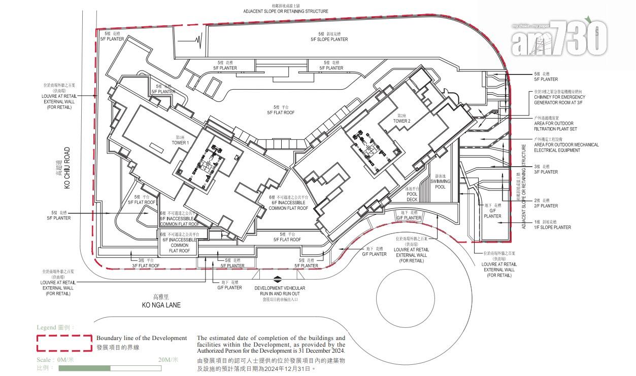
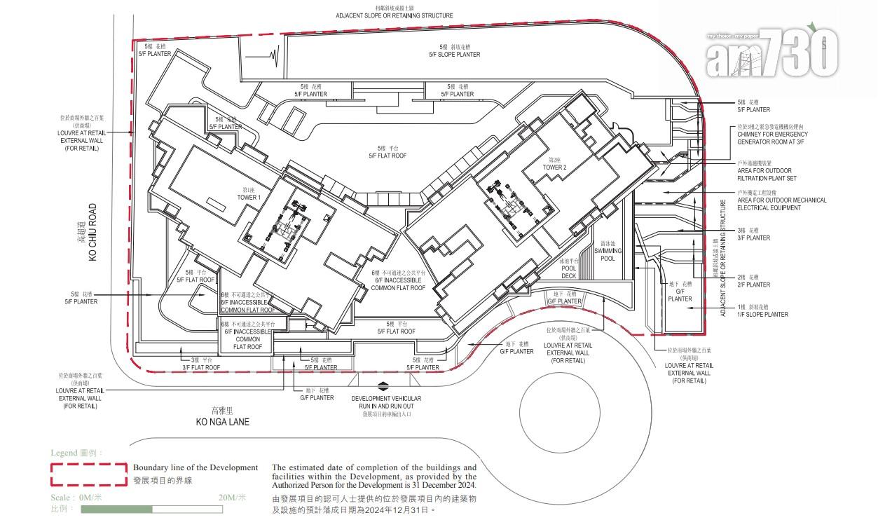
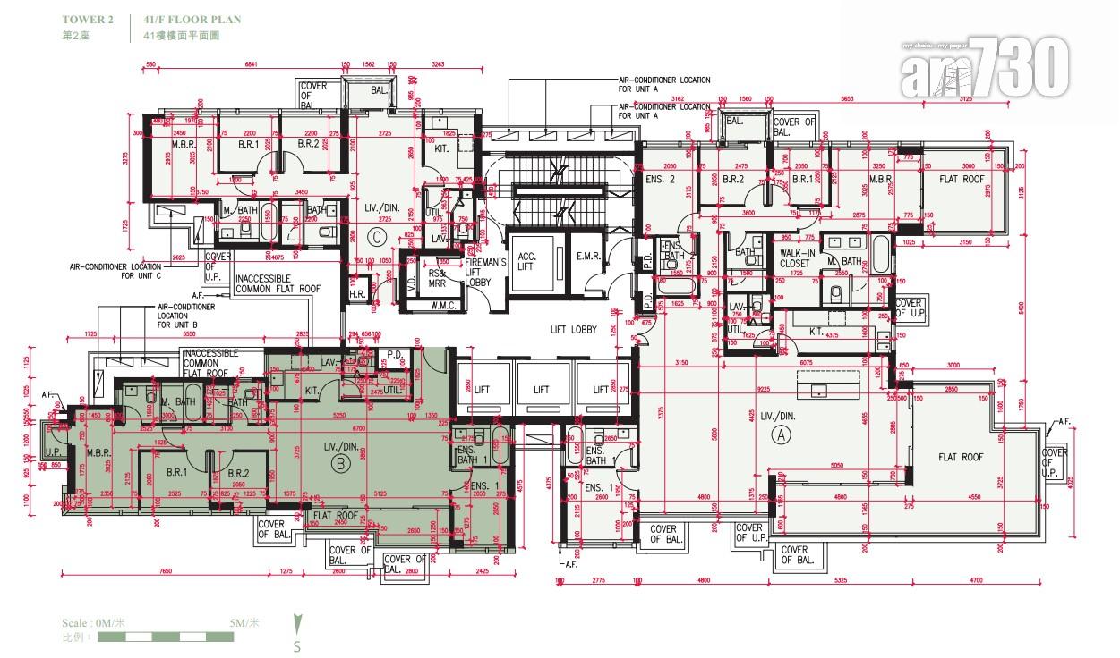
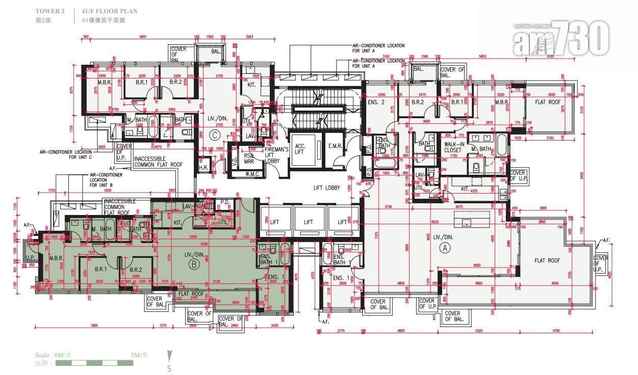
據樓書顯示,朗譽由2座住宅大樓組成,提供634伙,標準樓層每層9至11伙,設3部升降機。標準單位戶型涵蓋開放式至三房,實用面積介乎246至730方呎。當中開放式佔63伙、一房佔285伙、兩房佔252伙,以及三房佔31伙;另設3伙特色單位,實用面積介乎714至1,601方呎。
全盤面積最細屬第2座標準樓層F室,實用面積246方呎,開放式間隔;面積最大則為第2座41樓A室,實用面積1,601方呎,另連429方呎平台,五房間隔,主人房及客廳各附連一個平台,主人房內設有衣帽間。
朗譽位處高超道29號,提供40個住宅停車位,住客會所總面積為9,763方呎。項目預計關鍵日期為2025年3月31日,樓花期約28個月。
朗譽預計關鍵日期為2025年3月31日,樓花期約28個月。(資料圖片)

















