皇都一房面積306呎起 住宅基座設四層零售樓面 戲院原址保留|新盤樓書
新世界發展(017)旗下北角皇都戲院重建項目「皇都」日前上載售樓說明書,住宅部分提供388伙,實用面積由306至1,522方呎,戶型涵蓋一房至四房,項目預計關鍵日期為2026年12月31日,樓花期長約23個月。
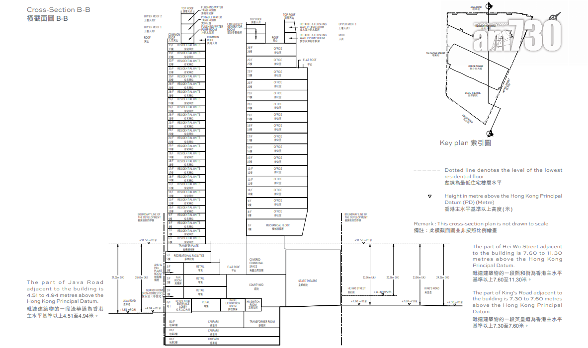
「皇都」將發展為包括戲院、豪宅、零售及寫字樓的大型綜合項目;從布局圖來看,住宅大樓正面向渣華道臨海方向,設高4層零售樓面及第5層住客會所,住宅部分由第6層至35層;寫字樓相鄰住宅大樓,設16層,西南側對外朝向電廠街;戲院位於原址,面朝英皇道,可見屋頂「飛拱」設計保留原貌。
項目設兩大區域 兩房佔近六成
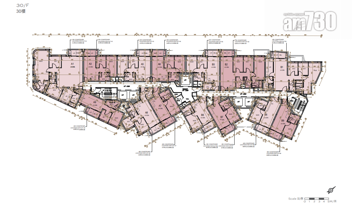
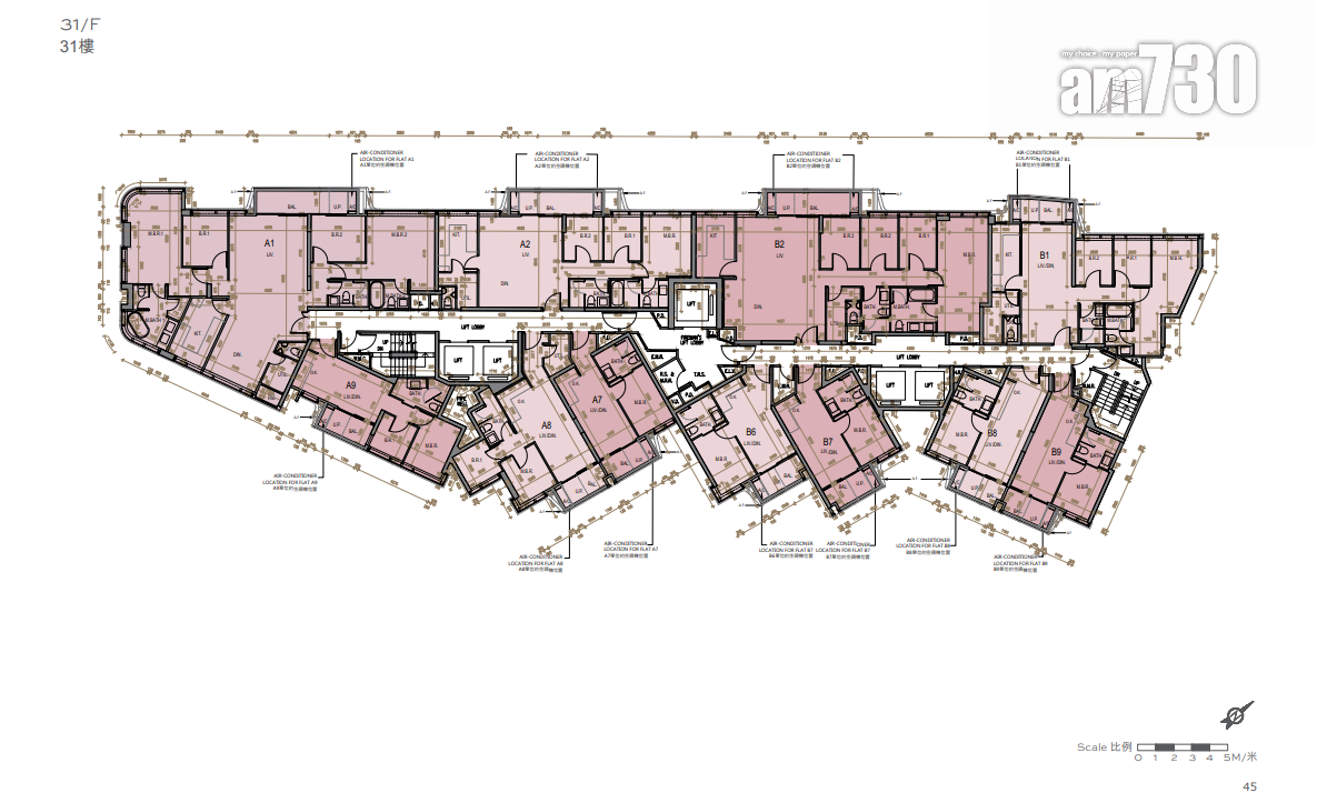
住宅單位分布方面,標準單位樓層每層設16伙及5部升降機。「皇都」設兩大區域,包括27樓及以上的「VICTORIA ZONE」及27樓以下的「SIGNATURE ZONE」。
項目主打兩房單位提供228伙,佔全盤逾58%,實用面積由416至621方呎;一房涉125伙,佔約32%,實用面積由343至362方呎;一房及兩房主要位於「SIGNATURE ZONE」。三房提供20伙,實用面積由726至1,079方呎;四房涉7伙,實用面積1,246至1,522方呎。另提供8伙連平台及天台特色單位,實用面積由306至1,522方呎。
全盤僅設1伙連天台特色戶
全盤最細單位為6樓B9室,一房間隔,實用面積306方呎,連88方呎平台。至於最大單位為35樓A1室,四房雙套間隔,實用面積1,522方呎,連934方呎天台,屬項目唯一一伙連天台特色單位。發展商早前預告,項目將首推24伙位於「VICTORIA ZONE」的「維港六大珍藏之作」以招標形式發售,單位享維港煙花海景,包括16伙三房及8伙四房,實用面積由834至1,522方呎,特色單位成交呎價有望挑戰港島東新高。
「皇都」停車位位於地庫1樓至3樓,合共提供89個住宅停車位,平均約4戶人爭一個停車位。
































