dadblk3 madblk3
adblk3
adblk3
地產
出版:2022-Jun-09 16:44
更新:2022-Jun-09 16:44

紅磡新盤|必嘉坊.曦匯樓書出爐 最細180方呎 擬明日開價

分享:
紅磡新盤|必嘉坊.曦匯樓書出爐 最細180方呎 擬明日開價

紅磡新盤|必嘉坊.曦匯樓書出爐 最細180方呎 擬明日開價

adblk4

6月新盤搶客戰一觸即發,恒基地產(012)紅磡必嘉坊第一期必嘉坊.曦匯今日(9)上載售樓說明書,恒基物業代理營業()部總經理林達民表示,項目提供324伙,部署明日(10)公布首張價單,涉最少65伙,主打一房單位,定價會參考九龍區新盤,如恒地啟德THE HENLEY系列,以及港鐵上蓋物業近期成交價。

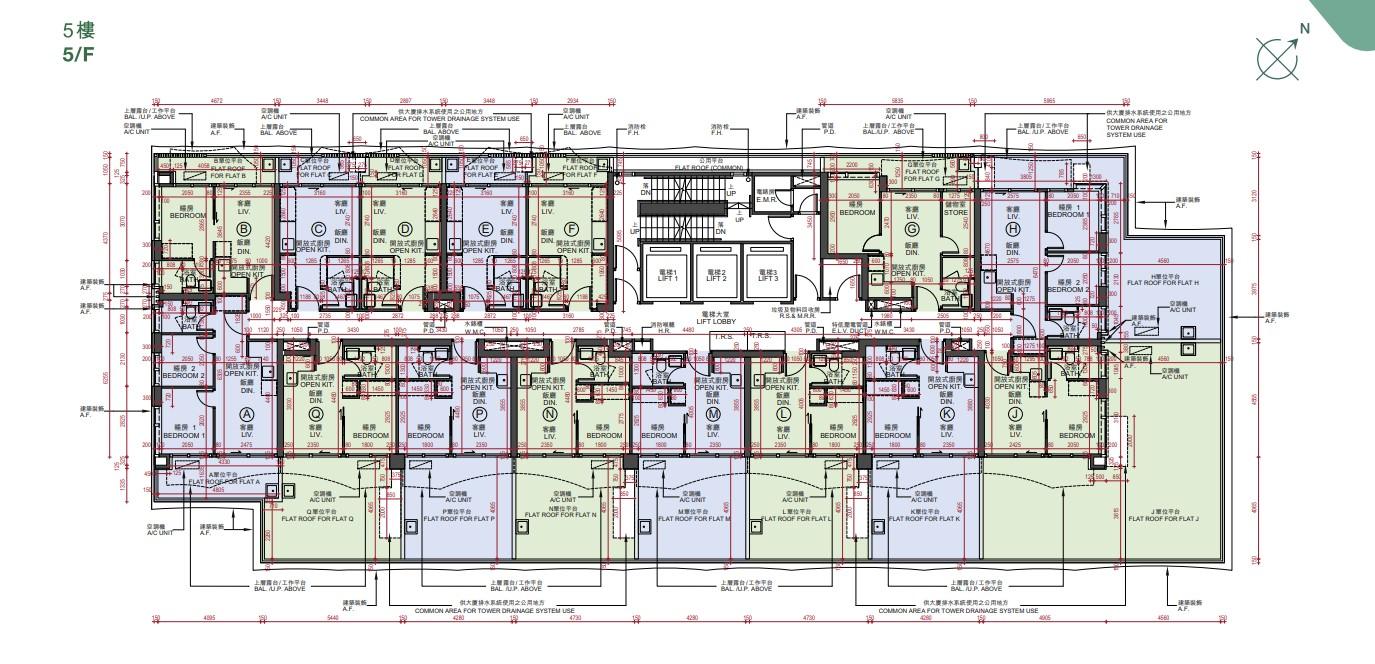
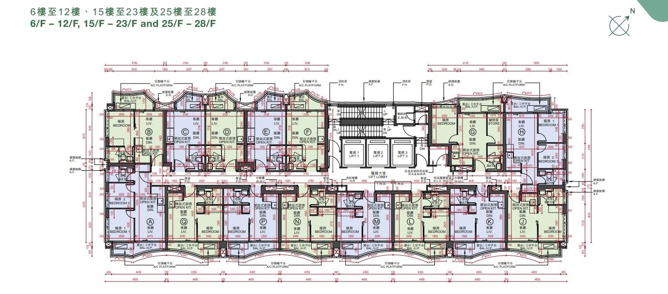
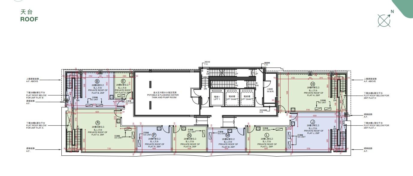
據樓書顯示,單位面積由180569方呎,最細面積為5CDE室,開放式間隔,實用面積180方呎,連33方呎平台;最大面積為29B室頂層戶,實用面積569方呎,連106方呎平台及249方呎天台,三房套間隔。

adblk5

值得一提,5J室一房單位,設有面積達614方呎的L形平台,不過單位實用面積為232方呎,換言之平台面積比單位內籠大約1.6倍。

Lucie Chang Fine Arts合作舉辦藝術走廊

另外,發展商今日宣布與剛在本年度巴塞爾藝術展(Art Basel)展出「九龍皇帝」曾灶財墨寶的香港本地著名畫廊Lucie Chang Fine Arts合作,將於美麗華廣場一期5樓的必嘉坊展銷中心合作舉辦藝術走廊,可從Lucie Chang Fine Arts的珍藏中,欣賞到充滿香港本土色彩的歷史藝術作品,甚至屬於紅磡的藝術品。

必嘉坊.曦匯位處機利士南路及必嘉街交界(近寶其利街),提供324伙,涵蓋開放式至三房戶型,主打一房戶,佔194伙或近60%;開放式戶共84伙,兩房戶提供42伙,另有4伙屬頂層特色戶。項目預計關鍵日期為2024331日,樓花期長約21個月。

adblk6

紅磡新盤|必嘉坊.曦匯樓書出爐 最細180方呎 擬明日開價 紅磡新盤|必嘉坊.曦匯樓書出爐 最細180方呎 擬明日開價 紅磡新盤|必嘉坊.曦匯樓書出爐 最細180方呎 擬明日開價 紅磡新盤|必嘉坊.曦匯樓書出爐 最細180方呎 擬明日開價 紅磡新盤|必嘉坊.曦匯樓書出爐 最細180方呎 擬明日開價 紅磡新盤|必嘉坊.曦匯樓書出爐 最細180方呎 擬明日開價 紅磡新盤|必嘉坊.曦匯樓書出爐 最細180方呎 擬明日開價 紅磡新盤|必嘉坊.曦匯樓書出爐 最細180方呎 擬明日開價 紅磡新盤|必嘉坊.曦匯樓書出爐 最細180方呎 擬明日開價 紅磡新盤|必嘉坊.曦匯樓書出爐 最細180方呎 擬明日開價 紅磡新盤|必嘉坊.曦匯樓書出爐 最細180方呎 擬明日開價

ADVERTISEMENT

ad

恭喜你!獲取1分 !

更多積分任務