紅磡新盤|必嘉坊.迎匯上載樓書 面積192方呎起 兩房特色戶平台面積大過內籠
市區焦點新盤有新動作,恒基地產(012)紅磡必嘉坊第2期必嘉坊.迎匯今日(1日)上載售樓說明書,恒基物業代理營業(一)部總經理林達民表示,項目最快本周內公布首張價單,以及開放示範單位予公眾參觀,有機會下周開售。
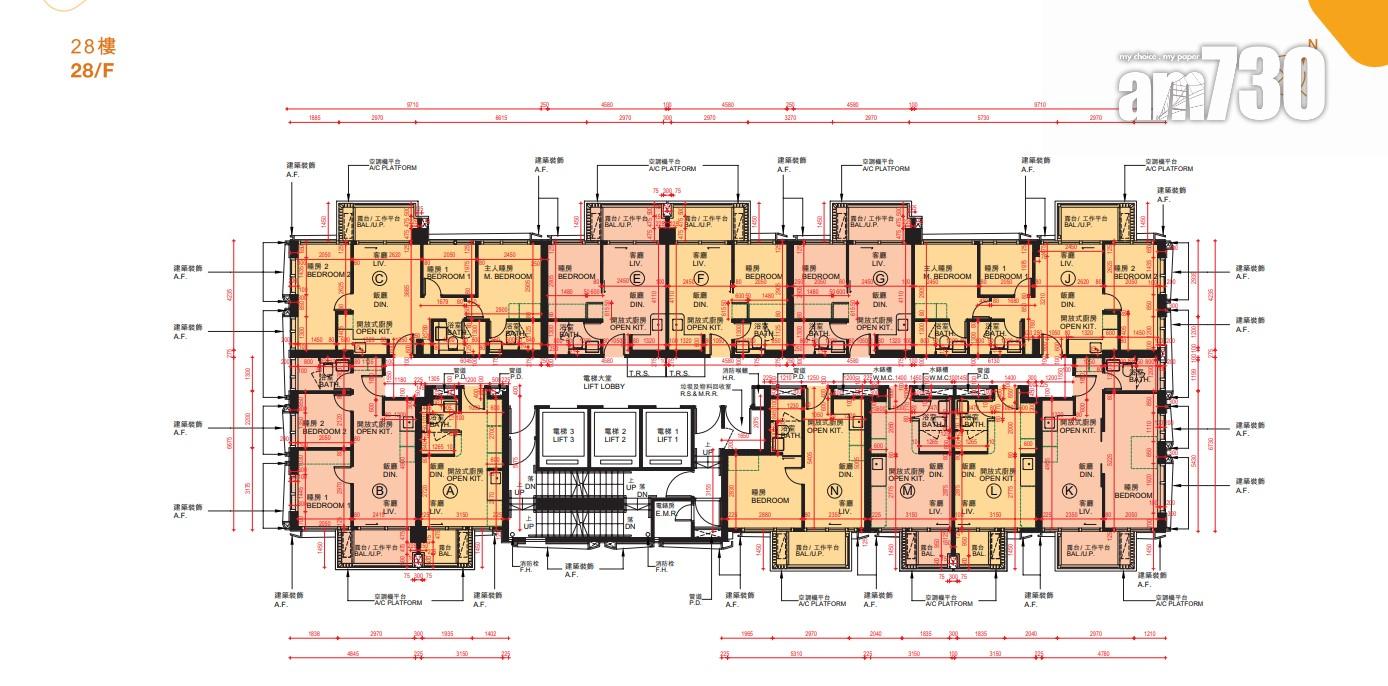
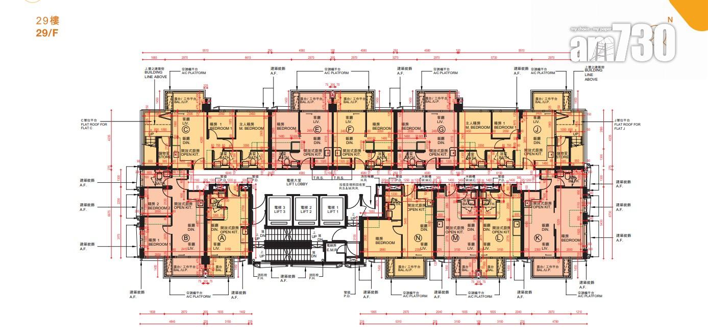
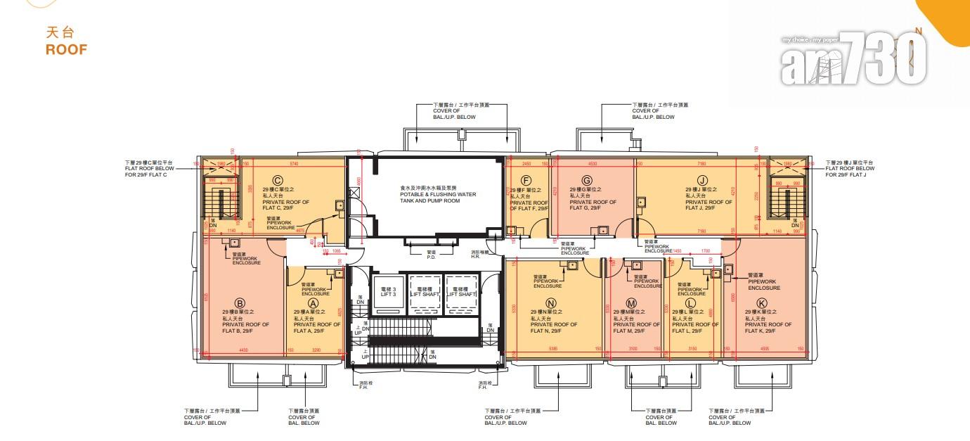
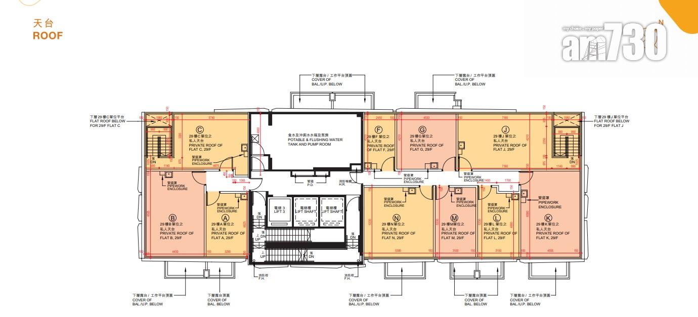
林達民表示,項目合共提供280伙,戶型涵蓋開放式至三房,單位實用面積介乎192至514方呎。當中涉60伙開放式、173伙一房、20伙兩房,4伙三房,以及23伙包括附連私人天台或平台特色戶。
根據項目樓書,必嘉坊.迎匯為一幢26層高住宅大廈,當中257伙屬標準分層單位,另23伙屬特色單位。單位實用面積介乎192至514方呎。全盤面積最細為5樓L室,實用面積192方呎,連21方呎平台,開放式間隔。標準分層面積最細為M室及L室,實用面積214方呎,同屬開放式間隔。至於全盤面積最大為27至28樓C室,實用面積514方呎,三房間隔。
值得一提,項目5樓全層13伙均為連平台特色單位,當中B室,實用面積340方呎,兩房間隔,平台則為392方呎,即平台面積比單位內籠更大。必嘉坊.迎匯不設車位,預計關鍵日期為2024年12月31日,樓花期長約26個月。
















