西營盤尚逸設161伙 面積177呎起 平台要經電梯大堂先用到?|新盤樓書
港島單幢新盤起動,大鴻輝興業旗下西營盤「尚逸」已公布售樓說明書,提供161伙,戶型涵蓋開放式至三房,單位實用面積由177至666方呎,當中主打一房單位,佔全盤約54%。
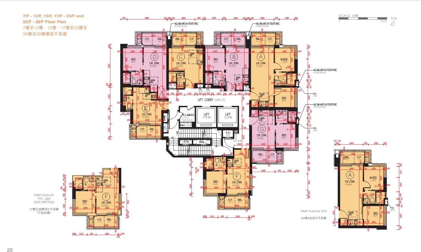
尚逸位於德輔道西328號,樓高30層,住宅樓層5樓至33樓,共25層,每層設4至7伙,提供2部升降機。標準單位實用面積介乎213至492方呎;當中一房佔87伙最多,實用面積由268至344方呎;開放式單位提供38伙,實用面積介乎213至215方呎;兩房一套房設19伙,實用面積389方呎;三房一套房涉8伙,實用面積由474至492方呎。
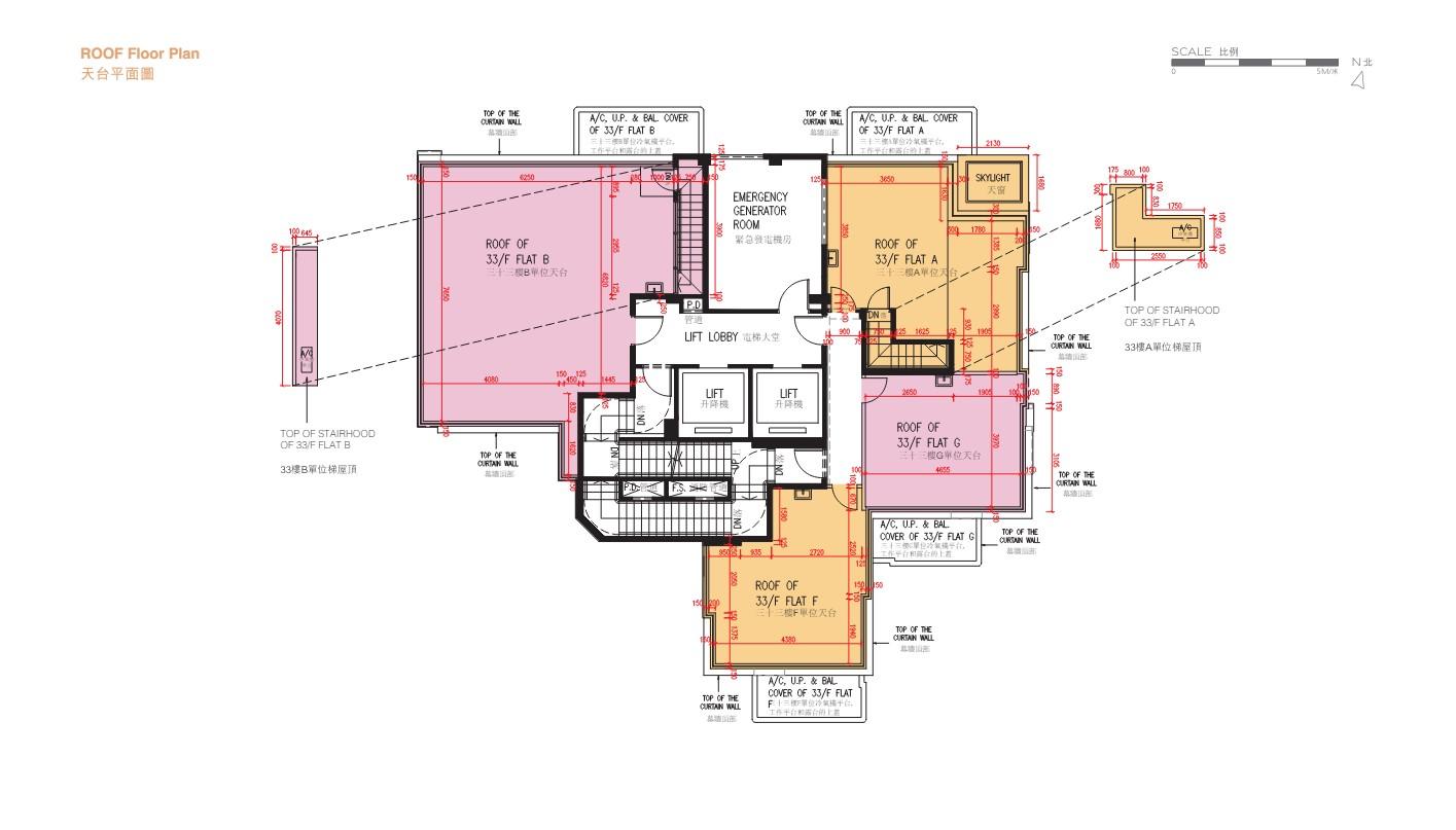
頂層特色戶備室內樓梯直上天台
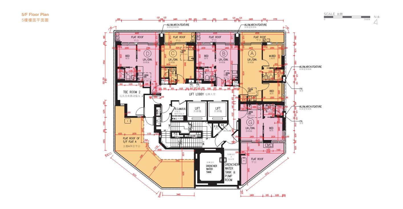
此外,項目提供9伙特色單位,涵蓋5伙連平台及4伙頂層連天台單位,實用面積介乎177至666方呎。全盤面積最細單位為5樓C室,實用面積177方呎,開放式間隔,連39方呎平台。
值得一提,5樓A室連平台單位,兩房間隔,實用面積351方呎,連415方呎平台,但採雙平台設計,其中有57方呎平台直接連接單位,其餘約361方呎則設於同層另一邊,即是住戶使用時要經過電梯大堂。
至於全盤面積最大單位為33樓B室,實用面積666方呎,三房一套房間隔,設有560方呎天台,備有室內樓梯直上天台,保障私隱度。
特設全層寵物遊樂園
「尚逸」自設私人會所,連公共花園等戶外空間,總面積接近4,600方呎,當中特設全層寵物遊樂園。項目不設車位,預計關鍵日期為2025年12月31日。
該盤展銷廳及示範單位設於香港英皇道1001號5樓,提供一房及兩房示範單位,開放時間為早上11時至晚上8時。





















