黃大仙薈鳴提供230伙 面積由178呎起|新盤樓書
宏安地產(1243)黃大仙新盤「薈鳴」今日(2日)上載售樓說明書至一手住宅物業銷售資訊網,成為踏入2024年首個出擊的全新盤。
「薈鳴」為單幢式物業,提供230伙,單位實用面積介乎178至375方呎,戶型涵蓋開放式至兩房,全數採開放式廚房設計。住宅樓層由2樓至28樓(不設4樓、13樓、14樓及24樓),每層設2部電梯及設10伙單位。標準單位位於3樓至27樓,層與層之間的高度為約3.15米。
主打一房佔126伙
單位戶型分布方面,標準單位主打一房佔126伙,兩房涉63伙,開放式設21伙;另有20伙屬連天台或連平台特色戶。項目2樓及28樓為特色單位樓層,連平台或天台單位各佔10伙。平台面積介乎35至1,251方呎,天台面積則介乎148至289方呎,全數連天台單位不設內置樓梯,即住戶須通過公眾樓梯前往。
⇊即睇薈鳴樓書⇊
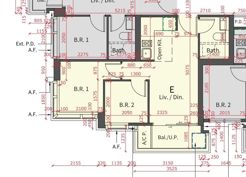
全盤面積最細為2樓J室,實用面積178方呎,開放式間隔,另連230方呎平台,料為2013年一手住宅物業銷售條例生效後,該區面積最細的私人住宅單位。至於面積最大單位為3至28樓E室,實用面積375方呎,兩房間隔,當中28樓E室另連256方呎天台。
「薈鳴」位於鳴鳳街28號,預計關鍵日期為2025年4月30日,樓花期長約16個月。
「薈鳴」位於鳴鳳街28號,預計關鍵日期為2025年4月30日,樓花期長約16個月。(陳奕釗攝)











