dadblk3 madblk3
adblk3
adblk3
地產
出版:2026-Feb-05 18:26
更新:2026-Feb-05 18:26

DEEP WATER SOUTH第6B期上樓書 涉154伙僅設三房及四房|黃竹坑新盤

分享:
DEEP WATER SOUTH第6B期上樓書 涉154伙僅設三房及四房|黃竹坑新盤

DEEP WATER SOUTH第6B期上樓書 涉154伙僅設三房及四房|黃竹坑新盤

adblk4

會德豐地產與港鐵(066)合作發展的黃竹坑站港島南岸第6期「DEEP WATER SOUTH」第6B期「GRANDE BLANC」上載售樓說明書,提供154伙,實用面積837至2,642方呎,戶型涵蓋三至四房。預計關鍵日期為2027年11月30日。

DEEP WATER SOUTH第6B期上樓書 涉154伙僅設三房及四房|黃竹坑新盤 DEEP WATER SOUTH第6B期上樓書 涉154伙僅設三房及四房|黃竹坑新盤 DEEP WATER SOUTH第6B期上樓書 涉154伙僅設三房及四房|黃竹坑新盤 DEEP WATER SOUTH第6B期上樓書 涉154伙僅設三房及四房|黃竹坑新盤 DEEP WATER SOUTH第6B期上樓書 涉154伙僅設三房及四房|黃竹坑新盤 DEEP WATER SOUTH第6B期上樓書 涉154伙僅設三房及四房|黃竹坑新盤 DEEP WATER SOUTH第6B期上樓書 涉154伙僅設三房及四房|黃竹坑新盤 DEEP WATER SOUTH第6B期上樓書 涉154伙僅設三房及四房|黃竹坑新盤 DEEP WATER SOUTH第6B期上樓書 涉154伙僅設三房及四房|黃竹坑新盤 DEEP WATER SOUTH第6B期上樓書 涉154伙僅設三房及四房|黃竹坑新盤 DEEP WATER SOUTH第6B期上樓書 涉154伙僅設三房及四房|黃竹坑新盤

當中三房佔90伙、四房佔58伙。當中,三房一套+工作間連洗手間,共60伙,實用面積862至918方呎;三房一套+儲物室連洗手間,共30伙,實用面積922方呎;四房兩套+儲物室及工作間連洗手間 + 私人升降機大堂,共29伙,實用面積1,594方呎;四房兩套+工作間連洗手間 + 私人升降機大堂,共29伙,實用面積1,696方呎。

adblk5

另設有6伙特色戶,包括1伙天際特色戶及5伙平台特色戶,實用面積837至2,642方呎。

DEEP WATER SOUTH第6B期上樓書 涉154伙僅設三房及四房|黃竹坑新盤 DEEP WATER SOUTH第6B期上樓書 涉154伙僅設三房及四房|黃竹坑新盤 DEEP WATER SOUTH第6B期上樓書 涉154伙僅設三房及四房|黃竹坑新盤

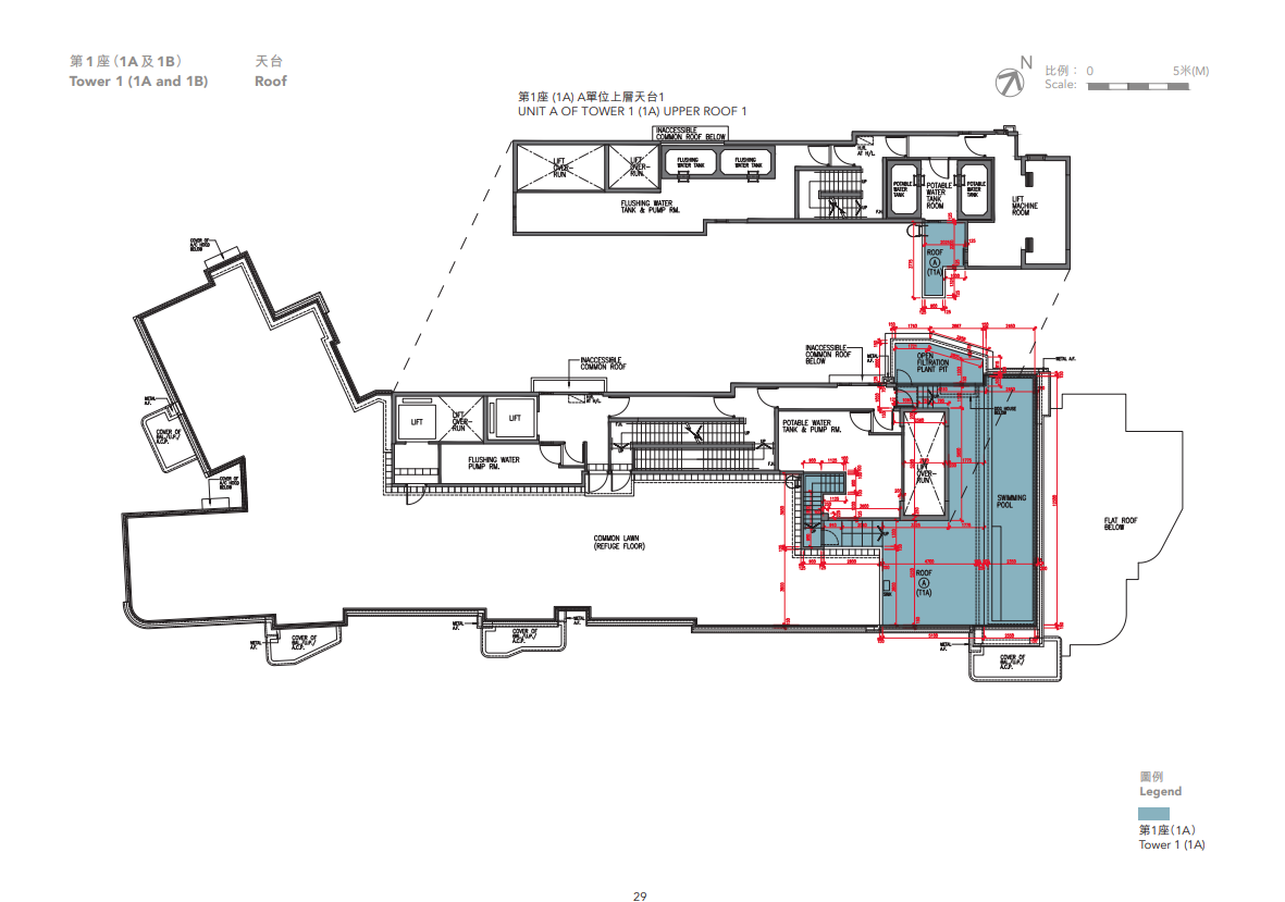
全盤最細單位為第1B座8樓C室,實用面積837方呎,連608方呎平台,屬三房套間隔;最大單位為第1A座42樓A室天際特色戶,實用面積2,642方呎,連638方呎平台及985方呎天台,間隔屬四房三套+娛樂室及工作間連洗手間。

即睇黃竹坑港島南岸6BGRANDE BLANC最新資訊 (House730)

ADVERTISEMENT

ad

恭喜你!獲取1分 !

更多積分任務