官可欣(左)表示,「譽林」最快月內公布首張價單。(鍾式明攝)
市區新盤積極部署推售,位於何文田窩打老道93號、由永義國際(1218)發展的「譽林」已屆現樓,周三(25日)上載售樓說明書,設1幢住宅物業,提供56伙,單位實用面積由260至2,597方呎。
據樓書顯示,項目備有3部升降機,3樓設有3伙連平台特色單位,5樓至16樓標準單位樓層每層設有4至5伙,17樓及以上連平台或天台單位樓層每層設有2伙。
標準單位戶型涵蓋開放式至三房間隔,實用面積介乎260至754方呎。項目主打三房,提供26伙或約46%,當中三房一套連儲物室佔6伙,實用面積介乎641至671方呎,三房一套連有洗手間的工作間佔20伙,實用面積介乎698至754方呎。此外,開放式及一房分別設有7伙及3伙,實用面積分別為260及306方呎;另有10伙兩房,實用面積494方呎。特色單位方面,設有10伙連平台或連天台特色戶,實用面積介乎625至2,597方呎。
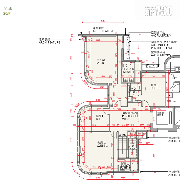
全盤面積最細單位為8至16樓D室,實用面積260方呎,開放式間隔;而面積最大單位為19樓至20樓頂層單位(西),實用面積2,597方呎,連122方呎平台,獨享連接地下私人電梯大堂。單位屬複式設計,下層為客飯廳,上層為寢區,設有四間睡房,並內置樓梯通往978方呎天台。
另外,兩層地庫提供22個停車位,項目住客會所總面積為3,938方呎。永義國際集團主席兼首席行政總裁官可欣表示,項目最快月內公布首張價單,現樓示範單位將設於「譽林」6樓及15樓,短期內對外開放。



























