dadblk3 madblk3
adblk3
adblk3
地產
出版:2024-Jun-18 19:15
更新:2024-Jun-18 19:15

西營盤尚逸設161伙 面積177呎起 平台要經電梯大堂先用到?|新盤樓書

分享:
西營盤尚逸設161伙 面積177呎起 平台要經電梯大堂先用到?|新盤樓書

西營盤尚逸設161伙 面積177呎起 平台要經電梯大堂先用到?|新盤樓書

adblk4

港島單幢新盤起動,大鴻輝興業旗下西營盤「尚逸」已公布售樓說明書,提供161伙,戶型涵蓋開放式至三房,單位實用面積由177666方呎,當中主打一房單位,佔全盤約54%

尚逸位於德輔道西328號,樓高30層,住宅樓層5樓至33樓,共25層,每層設47伙,提供2部升降機。標準單位實用面積介乎213492方呎;當中一房佔87伙最多,實用面積由268344方呎;開放式單位提供38伙,實用面積介乎213215方呎;兩房一套房設19伙,實用面積389方呎;三房一套房涉8伙,實用面積由474492方呎。

adblk5

西營盤尚逸設161伙 面積177呎起 平台要經電梯大堂先用到?|新盤樓書 西營盤尚逸設161伙 面積177呎起 平台要經電梯大堂先用到?|新盤樓書 西營盤尚逸設161伙 面積177呎起 平台要經電梯大堂先用到?|新盤樓書 西營盤尚逸設161伙 面積177呎起 平台要經電梯大堂先用到?|新盤樓書 西營盤尚逸設161伙 面積177呎起 平台要經電梯大堂先用到?|新盤樓書 西營盤尚逸設161伙 面積177呎起 平台要經電梯大堂先用到?|新盤樓書 西營盤尚逸設161伙 面積177呎起 平台要經電梯大堂先用到?|新盤樓書 西營盤尚逸設161伙 面積177呎起 平台要經電梯大堂先用到?|新盤樓書 西營盤尚逸設161伙 面積177呎起 平台要經電梯大堂先用到?|新盤樓書 西營盤尚逸設161伙 面積177呎起 平台要經電梯大堂先用到?|新盤樓書

頂層特色戶備室內樓梯直上天台

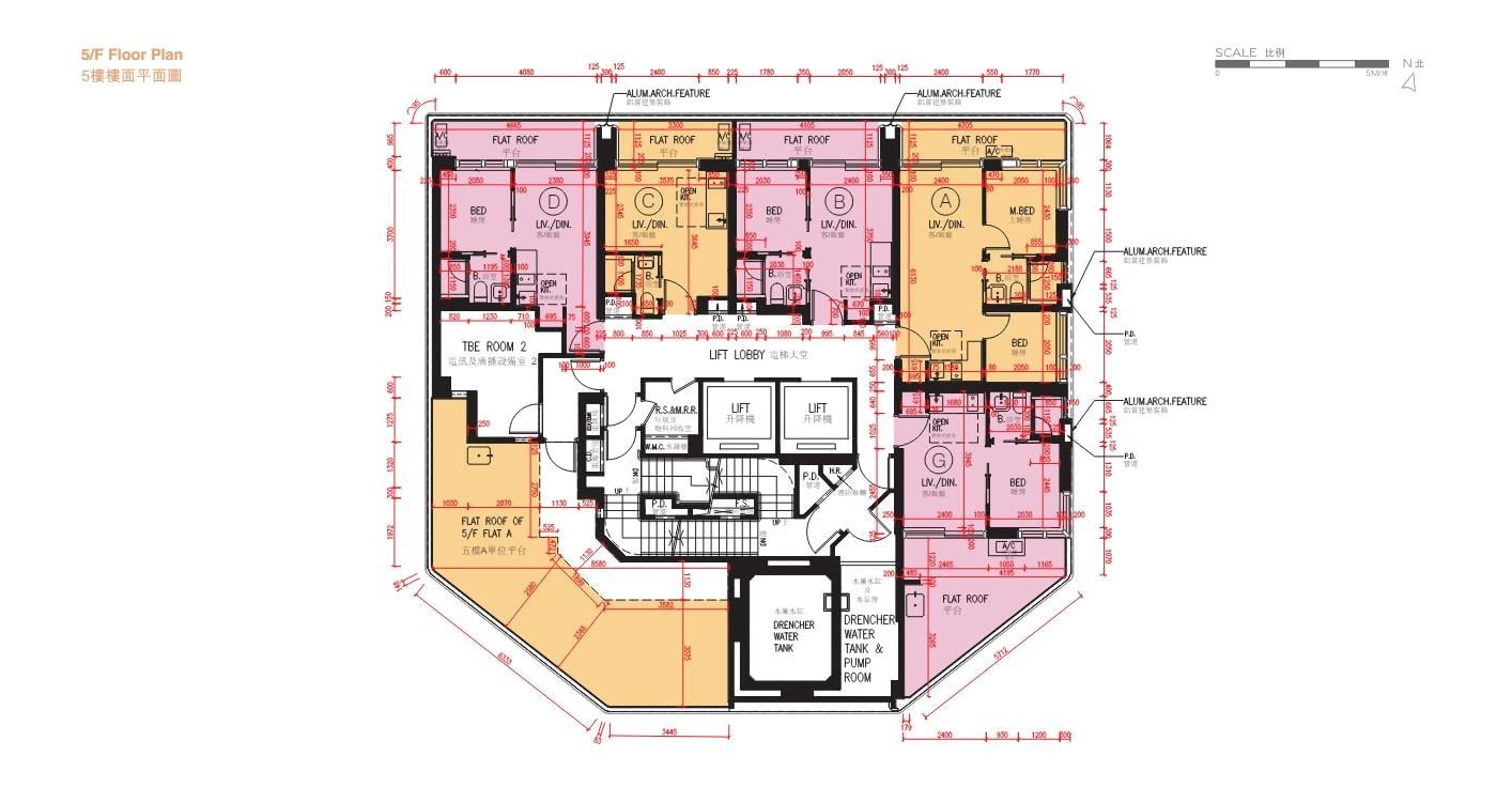
此外,項目提供9伙特色單位,涵蓋5伙連平台及4伙頂層連天台單位,實用面積介乎177666方呎。全盤面積最細單位為5C室,實用面積177方呎,開放式間隔,連39方呎平台。

值得一提,5A室連平台單位,兩房間隔,實用面積351方呎,連415方呎平台,但採雙平台設計,其中有57方呎平台直接連接單位,其餘約361方呎則設於同層另一邊,即是住戶使用時要經過電梯大堂。

至於全盤面積最大單位為33B室,實用面積666方呎,三房一套房間隔,設有560方呎天台,備有室內樓梯直上天台,保障私隱度。

adblk6

西營盤尚逸設161伙 面積177呎起 平台要經電梯大堂先用到?|新盤樓書 西營盤尚逸設161伙 面積177呎起 平台要經電梯大堂先用到?|新盤樓書 西營盤尚逸設161伙 面積177呎起 平台要經電梯大堂先用到?|新盤樓書

特設全層寵物遊樂園

「尚逸」自設私人會所,連公共花園等戶外空間,總面積接近4,600方呎,當中特設全層寵物遊樂園。項目不設車位,預計關鍵日期為20251231日。

該盤展銷廳及示範單位設於香港英皇道10015樓,提供一房及兩房示範單位,開放時間為早上11時至晚上8時。

即睇西營盤尚逸最新資訊 (House730)

西營盤尚逸設161伙 面積177呎起 平台要經電梯大堂先用到?|新盤樓書 西營盤尚逸設161伙 面積177呎起 平台要經電梯大堂先用到?|新盤樓書 西營盤尚逸設161伙 面積177呎起 平台要經電梯大堂先用到?|新盤樓書 西營盤尚逸設161伙 面積177呎起 平台要經電梯大堂先用到?|新盤樓書

ADVERTISEMENT

ad

恭喜你!獲取1分 !

更多積分任務