dadblk3 madblk3
adblk3
adblk3
地產
出版:2024-Aug-08 19:16
更新:2024-Aug-08 19:16

鰂魚涌FINNIE面積223呎起 一房特色戶平台面積較內櫳大2.5倍|新盤樓書

分享:
鰂魚涌FINNIE面積223呎起 一房特色戶平台面積較內櫳大2.5倍|新盤樓書

鰂魚涌FINNIE面積223呎起 一房特色戶平台面積較內櫳大2.5倍|新盤樓書

adblk4

位於鰂魚涌芬尼街9號、由宏安地產(1243)發展的單幢式住宅項目「FINNIE」今日(8)正式上載售樓說明書,提供90伙,屬單幢式物業,實用面積介乎223626方呎,戶型涵蓋一房至三房套間隔。

據樓書顯示,項目基座設有商舖和會所,住宅樓層從2樓至29(不設4樓、13樓、14樓及24)。標準單位涉及41伙一房及41伙兩房,實用面積介乎245364方呎,分布於3樓至26樓所有單位、以及27樓的AB室。標準層每層僅設4戶,配備2部電梯。

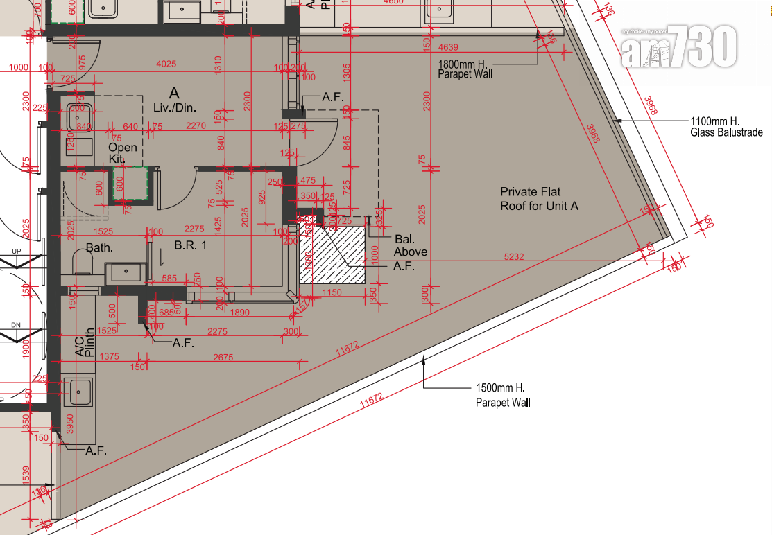
另外,項目提供8伙特色單位,包括2樓所有單位、27C室,以及28樓和29樓所有單位,實用面積介乎223626方呎。當中有3伙平台面積大過內櫳,超出面積最多單位為2D室,一房間隔,實用面積248方呎,連872方呎平台,平台多出逾624方呎或約2.5倍。

adblk5

鰂魚涌FINNIE涉90伙 3伙平台大過內櫳 最多超600呎|新盤樓書 鰂魚涌FINNIE涉90伙 3伙平台大過內櫳 最多超600呎|新盤樓書 鰂魚涌FINNIE涉90伙 3伙平台大過內櫳 最多超600呎|新盤樓書 鰂魚涌FINNIE涉90伙 3伙平台大過內櫳 最多超600呎|新盤樓書 鰂魚涌FINNIE涉90伙 3伙平台大過內櫳 最多超600呎|新盤樓書 鰂魚涌FINNIE涉90伙 3伙平台大過內櫳 最多超600呎|新盤樓書 鰂魚涌FINNIE涉90伙 3伙平台大過內櫳 最多超600呎|新盤樓書 鰂魚涌FINNIE涉90伙 3伙平台大過內櫳 最多超600呎|新盤樓書 鰂魚涌FINNIE涉90伙 3伙平台大過內櫳 最多超600呎|新盤樓書 鰂魚涌FINNIE涉90伙 3伙平台大過內櫳 最多超600呎|新盤樓書 鰂魚涌FINNIE涉90伙 3伙平台大過內櫳 最多超600呎|新盤樓書 鰂魚涌FINNIE涉90伙 3伙平台大過內櫳 最多超600呎|新盤樓書

短期內開放示範單位

全盤面積最細單位為2A室,實用面積223方呎,一房間隔,連433方呎平台;全盤面積最大為29A室,實用面積626方呎,三房一套間隔,連254方呎平台和505方呎天台,單位層與層之間高度達4米,客廳設約5米闊落地玻璃躺門,外連接平台享維港景觀,住戶可經由室內樓梯抵達天台。

宏安地產執行董事程德韻表示,項目示範單位將設於尖沙咀天文臺道8號,計劃短期內開放。「FINNIE」不設停車位,距離港鐵鰂魚涌站B出口僅需約15秒步程,預計關鍵日期為2026531日,樓花期長約21個月。

adblk6

FINNIE目標月內發售 標準戶面積245呎起 主打一房及兩房|鰂魚涌新盤

「FINNIE」距離港鐵鰂魚涌站B出口僅需約15秒步程。(資料圖片)

ADVERTISEMENT

ad

恭喜你!獲取1分 !

更多積分任務