「101 KINGS ROAD」合共提供251伙,實用面積由204至1,291方呎,戶型涵蓋一房至四房。
宏安地產(1243)北角炮台山新盤「101 KINGS ROAD」周二(5日)晚突擊上載售樓說明書,合共提供251伙,實用面積由204至1,291方呎,戶型涵蓋一房至四房,主打兩房單位。
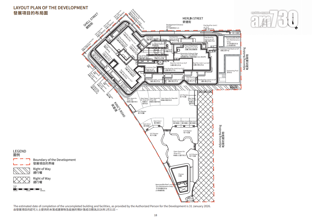
宏安地產執行董事程德韻表示,住宅樓層由5樓至31樓(不設4樓、13樓、14樓及24樓),項目主打兩房單位,佔總數約53%,實用面積由376至440方呎,設有梗廚及開放式廚房兩種戶型。
程德韻續指,一房標準單位共60伙,佔約24%,實用面積由244至310方呎;三房標準單位則提供44伙,提供三房及三房一套房連儲物室兩種戶型,佔約18%,實用面積由549至838方呎。
設15伙特色單位
宏安地產營業及市務總經理黃文浩補充,「101 KINGS ROAD」另提供15伙特色單位,當中平台特色戶共11伙,實用面積由204至531方呎;頂層特色單命名為「101 KINGS ROOFTOP」,共提供4伙,戶型由三房一套房連儲物室至四房雙套房連儲物室,實用面積由861至1,291方呎,單位都設有內置樓梯直達天台,天台面積由660至955方呎。
至於全盤面積最細為5樓J室,一房間隔,實用面積204方呎,連173方呎平台。全盤面積最大則為31樓A室,四房間隔,實用面積1,291方呎,連36方呎平台,以及955方呎天台。
他續指,項目會所「KINGS CLUB」設於項目2樓,可用面積約6,000方呎,提供多樣化的娛樂休閒設施,包括戶外游泳池、運動室、宴會廳、多功能娛樂室、兒童遊樂場、桌上遊戲室、音樂室及閒坐空間。「101 KINGS ROAD」更設有2層地庫停車場,提供24個住宅停車位及5個商業停車位,平均約10戶爭一個停車位。





















