新盤樓書|清水灣道887號海景獨立別墅上樓書 面積逾4690呎擁私家泳池
今年1月曾以控股公司股權轉讓邀約方式出售的西貢清水灣道887號獨立洋房,最新上載樓書。
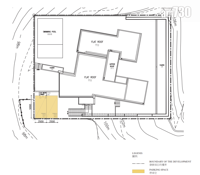
樓書顯示,洋房目前已屆現樓,實用面積為4,693方呎,外連1,990方呎平台、面積269方呎的停車位,以及174方呎天台。洋房樓高兩層,地下為客飯廳、廚房、多功能廳及泳池等;上層為睡房區,為四房一套,其中主人套房包含書房。
翻查資料,清水灣道887號獨立屋建於2008年,只有16年樓齡,兩層高別墅位處山上並享有全海景,佔地廣闊;別墅位於清水灣近銀線灣段,只需23分鐘車程即可到達高鐵西九龍總站,8分鐘車程到達將軍澳港鐵坑口站。當初巿場估值1.48億元。



















