the MVP上樓書面積425呎起 最大2990呎設室外游泳池|西半山新盤
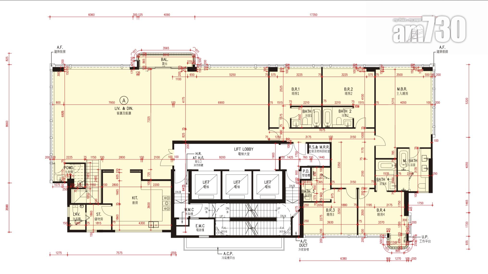
英皇國際(163)旗下西半山新盤「theMVP」,上載樓書,合共提供117伙,戶型涵蓋兩至四房,包括67伙兩房戶、39伙三房戶、4伙四房戶及7伙特色戶,實用面積由425至2,990方呎。
項目樓高27層,標準樓層一梯6伙,共用三部升降機。全盤面積最細單位為6樓E室,實用面積425方呎,連263方呎平台,為兩房連開放式廚房間隔;最大面積單位為30樓A室,實用面積2,990方呎,連2,308方呎天台,為五房連儲物室間隔,內置樓梯,設室外游泳池。
「the MVP」設有會所 「Club MVP」提供約17米室內恆溫泳池、按摩池、娛樂室及健身房等設備。項目位處傳統名校網,坐落小學校網及中西區中學校網 ,盡帶書香風韻,且比鄰中環商業核心區,與港鐵西營盤站 C 出口近在咫尺,駕車前往西九龍高鐵站須時只需約8分鐘 ,生活所須一應俱全;項目預計關鍵日期為2026年9月30日 ,樓花期約12個月。





























