BEACON PEAK樓書曝光!六成單位面積逾1000呎 部分設私人升降機大堂|九龍豪宅
世茂集團(813)在港首個獨資發展的九龍延坪道9號豪宅盤「BEACON PEAK」第1期今日(7日)正式上載售樓說明書,提供332伙,實用面積由712至3,165方呎,戶型涵蓋兩房至四房間隔,項目部署月內現樓招標推售。
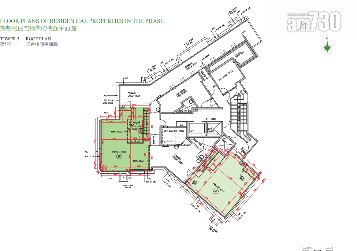
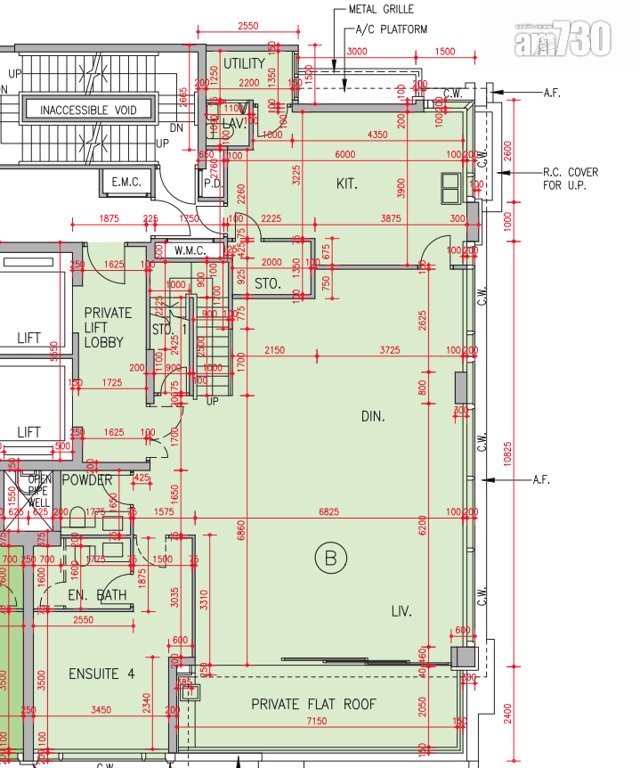
「BEACON PEAK」共設6座分層住宅大樓,包括第1座至第3座,以及第5座至第7座。當中第1座及第7座標準單位樓層每層設2伙,配備1部公共升降機;第2座、第3座及6座標準單位樓層每層設4伙,以及2部公共升降機;第5座標準單位樓層每層設6伙,以及3部公共升降機;部分三房套及四房套單位附設私人升降機大堂。
設7伙連天台複式大宅
單位分布來看,標準分層單位面積由712至2,020方呎,戶型涵蓋兩房至四房,六成單位面積逾1,000方呎。項目標準三房共涉163伙,佔全盤最多近五成,實用面積由748至1,769方呎;其次四房佔全盤近四成,提供130伙,實用面積1,462至2,020方呎。
項目兩房則提供32伙佔約9.6%,實用面積712至728方呎;另設7伙連天台複式特色單位,實用面積由2,493至3,165方呎。全盤面積最細單位為第6座D室,實用面積712方呎,兩房一套間隔;至於面積最大單位為第1座23樓及25樓B室頂層複式大宅,四房四套間隔,實用面積3,165方呎,連229方呎平台及878方呎天台。
「BEACON PEAK」停車位位於1至3樓及P樓,共提供97個住宅停車位。「BEACON PEAK」共分兩期發展,第2期以別墅單位為主,稍後以現樓形式推售。



































