長沙灣「Belgravia Place」分兩期發展,發展商率先推出第1期應市,涉及714伙。
恒基地產(012)旗下長沙灣「Belgravia Place」分兩期發展,合共提供1,000伙。發展商率先推出第1期應市,涉及714伙,周五(23日)正式上載售樓説明書,戶型涵蓋開放式至三房,實用面積由177至756方呎。
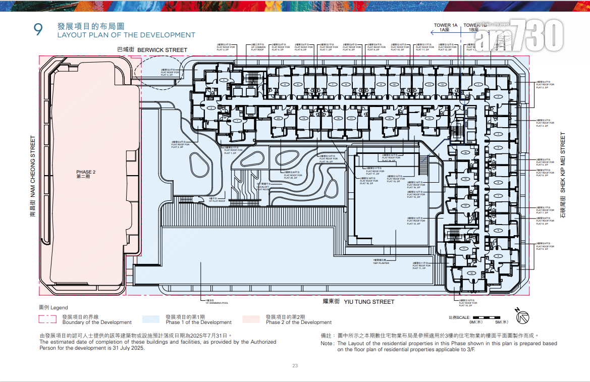
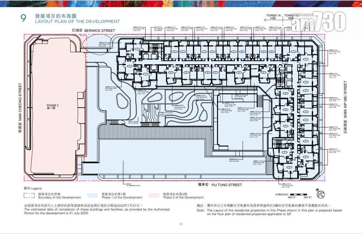
據樓書顯示,第1期由相連的1A及1B座住宅大樓構成,第1A座標準樓層每層設17伙,至於第1B座標準樓層每層設13伙,均設3部升降機。
設3伙連天台特色戶
戶型分布方面,主打一房及兩房,合共佔約九成,一房提供430伙,實用面積由226至270方呎;兩房設有211伙,當中包括連衣帽間間隔,實用面積由294至374方呎。開放式涉24伙,實用面積由177至199方呎;以及46伙三房,實用面積由386至457方呎。另3伙頂層特色戶,分布於兩座的29樓,實用面積介乎624至756方呎,各連227至630方呎天台。
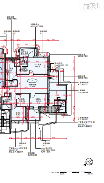
全盤面積最細單位為第1B座2樓16室,開放式間隔,實用面積177方呎,連55方呎平台;面積最大單位為1B座29樓7室,四房間隔,實用面積756方呎,連160方呎平台及630方呎天台,平台外設有樓梯通往私人天台。
「Belgravia Place」不設有停車位,自設會所共兩層,總面積約1.9萬方呎,包括室內滑板運動場、50米戶外游泳池等設施;項目預計關鍵日期為2025年7月31日。
「Belgravia Place」今日(23日)上載售樓說明書及公布首張價單,搶閘成為龍年「頭炮」新盤。


















