「Blue Coast」共提供642伙,戶型涵蓋兩房至四房,實用面積介乎452至1,267方呎。
市場焦點全新盤、長江實業集團(1113)與港鐵(066)合作發展的黃竹坑站港島南岸第3B期「Blue Coast」周三(20日)正式上載售樓說明書,共提供642伙,戶型涵蓋兩房至四房,另設特色戶,實用面積介乎452至1,267方呎。
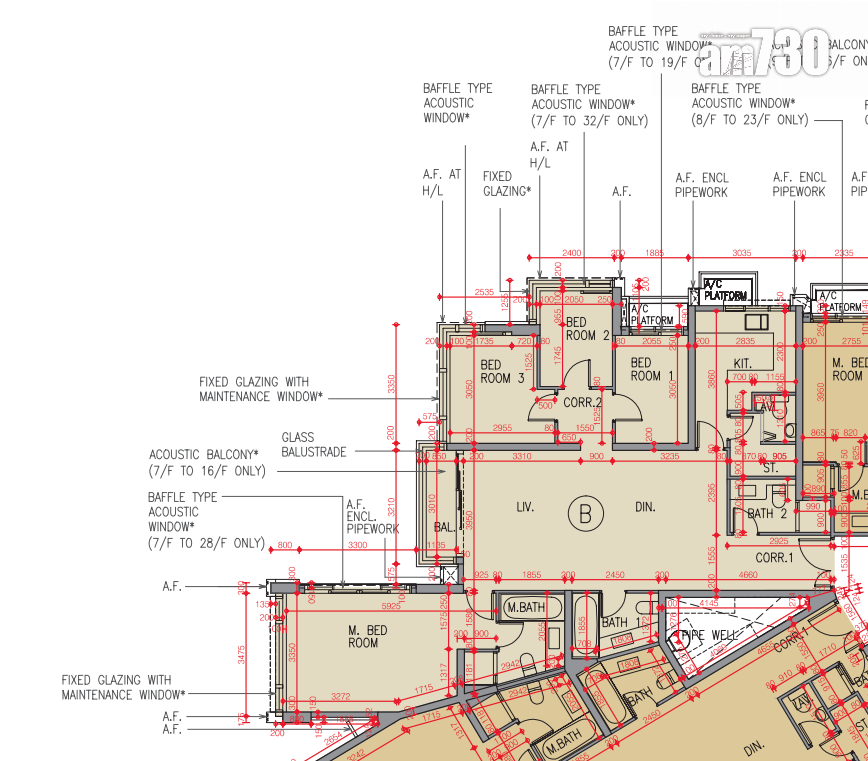
據樓書顯示,「Blue Coast」由兩座住宅大樓組成,細分A、B兩翼。第1座標準樓層每層設8伙,及4部升降機;第2座標準樓層每層設13至14伙,及6部升降機。
戶型分布方面,項目逾八成為三房或以上大單位。當中主打三房單位,合共提供474伙,佔全盤約74%,實用面積介乎728至1,006方呎;四房提供58伙,佔全盤約9%,實用面積介乎1,226至1,267方呎,全數四房位處1A座;兩房涉110伙,佔全盤約17%,實用面積介乎452至538方呎。
全盤面積最細單位包括2B座6樓D室,實用面積452方呎,兩房間隔,客廳闊約9呎,飯廳闊約10呎,不設露台。面積最大單位包括1A座7樓B室,實用面積1,267方呎,四房一套連儲物室間隔。
長實營業部首席經理郭子威早前透露,項目1A座屬項目的「樓王」,涉及116伙,涵蓋三房及四房間隔,實用面積由938至1,267方呎,考慮以招標形式發售。
「Blue Coast」停車場分布於平台層,合計提供187個住宅停車位。項目基座為商場「THE SOUTHSIDE」。























