PARK COLLEGE上樓書 僅設11伙面積最大3060呎|九龍塘豪宅
由興勝創建精心發展,位處九龍塘衙前圍道57A號的全新豪宅現樓項目「PARK COLLEGE」已上載樓書,項目提供11伙單位,涵蓋三房至五房間隔,實用面積1,390至3,060方呎。
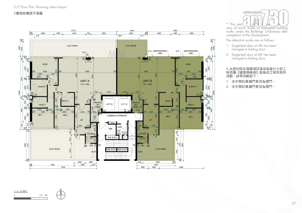
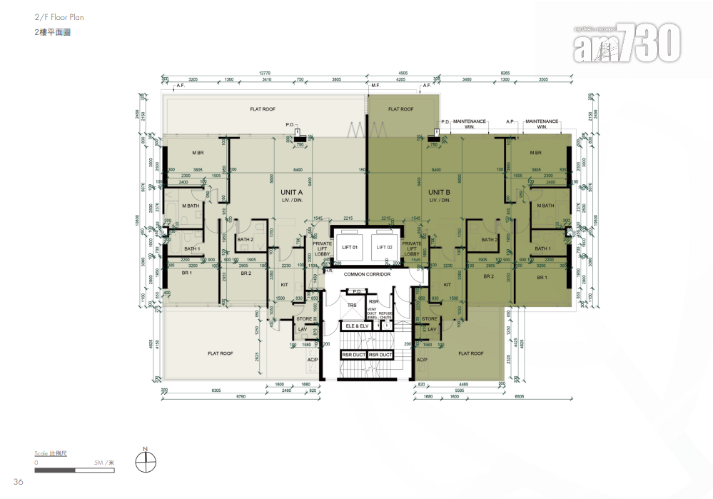
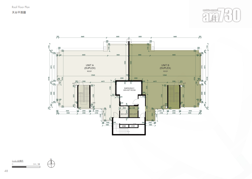
項目樓高8層,包括3伙複式戶及8伙單式戶,其中5伙為特式戶,實用面積1,390至3,060方呎,間隔涵蓋三房三套及五房五套。
面積最大為地下至1樓GARDEN VILLA,實用面積3,060方呎,連432方呎花園,屬四房間隔;面積最細為2樓B室,實用面積1,390方呎,屬三房間隔。
另外,特式戶中7至8樓Duplex A及Duplex B室,實用面積為3,040及3,022方呎,均屬五房間隔。而2樓A及B室則連平台。
全部單位均設私人電梯上落,私隱度高。項目亦設逾1200方呎的會所。


































