SEASONS PLACE提供650伙 面積282至665呎 一房及兩房合佔九成|新盤樓書
會德豐地產與港鐵(066)合作發展的將軍澳日出康城第12A期「SEASONS PLACE」周二(12日)正式公布售樓說明書,由兩座住宅大樓(3A及3B)組成,合共提供650伙,單位戶型涵蓋一房至三房,另設平台特色戶及頂層特色戶,實用面積介乎282至665方呎。
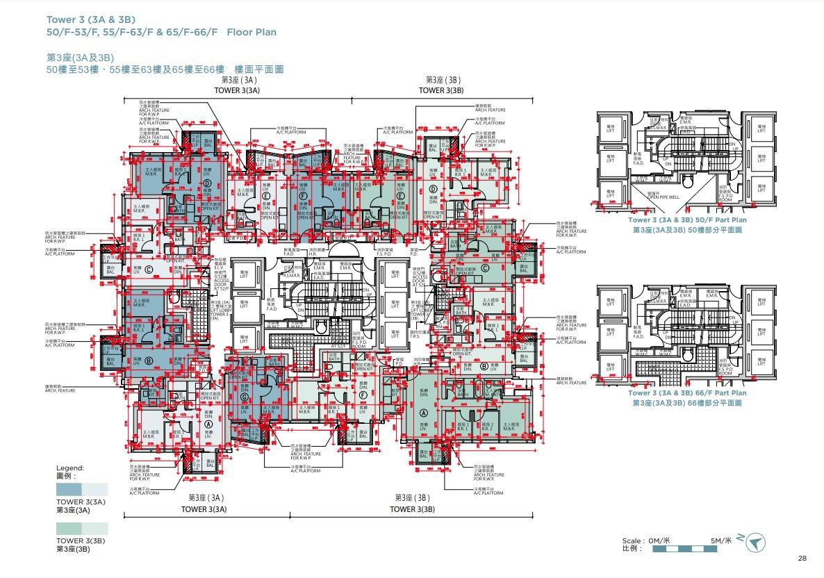
「SEASONS PLACE」為康城商場上蓋最後一個住宅項目,亦屬會德豐「O’ East」系列壓軸項目。據樓書顯示,兩座住宅大樓互通,以標準單位樓層計,每座每層設有6伙及7伙,每座各提供3部升降機。
戶型分布方面,標準單位主打一房及兩房單位,合共佔全盤約89%。當中兩房涉337伙或約52%,實用面積由437至495方呎;一房設240伙或37%,實用面積由322至339方呎;三房一套涉48伙或約7%,實用面積665方呎;餘下25伙或4%為平台或頂層特色戶,實用面積由282至665方呎。
戶型分布方面,標準單位主打一房及兩房單位,合共佔全盤約89%。當中兩房涉337伙或約52%,實用面積由437至495方呎;一房設240伙或37%,實用面積由322至339方呎;三房一套涉48伙或約7%,實用面積665方呎;餘下25伙或4%為平台或頂層特色戶,實用面積由282至665方呎。
全盤面積最細單位為3B座8樓E室,實用面積282方呎,連255方呎平台,一房間隔。面積最大單位為3B座66樓A室,實用面積665方呎,連505方呎天台,三房間隔。
「SEASONS PLACE」停車場分布於3樓、5樓及6樓,合計提供251個住宅停車位;項目預計關鍵日期為2025年10月31日。
另外,項目住客會所「Seasons Retreat」及「四季庭園Seasons Garden」,會所及園林合共逾98,000方呎,規模龐大。以「城中Urban Retreat」為設計概念,讓住戶享受Resort級度假式寫意生活。會所「Seasons Retreat」精心打造8大水主題設施、3大主題宴會廳,全港住宅項目極罕有的露天風呂及居酒屋主題設施。





















