
封區檢測︱將軍澳煜明苑焜明閣圍封,居民今晚11時前須接受檢測。(資料圖片)
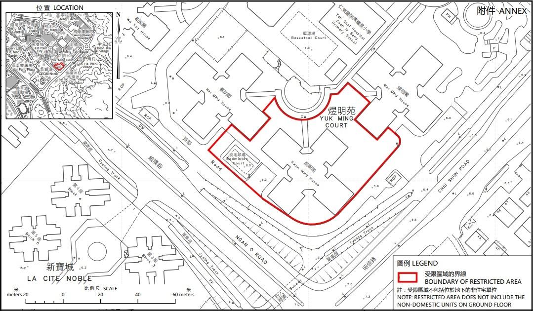
政府今日下午宣布,圍封將軍澳煜明苑焜明閣,不包括位於地下的非住宅單位,要求範圍內的人士接受強制檢測,目標明日早上10時前解封。
- 將軍澳煜明苑焜明閣:下午5時起圍封,受檢人士需要於今晚11時前檢測,目標早上10時完成行動
政府發言人表示,根據第599J 章,政府可按防疫需要,作出限制與檢測宣告。政府審視一籃子因素,包括污水檢測病毒量、相關確診個案情況、其他環境因素等,通過風險評估,決定就相關區域作出限制與檢測宣告。

政府圍封將軍澳煜明苑焜明閣,不包括位於地下的非住宅單位。(政府新聞處圖片)