新盤樓書|何文田瑜一第1B期提供183伙 面積336至1234方呎
位於何文田忠孝街1號、由華懋集團與港鐵(066)合作發展的何文田站上蓋瑜一,分3期發展,當中第1B期今日(8日)上載售樓說明書,由1座住宅大樓組成,提供183伙,單位實用面積介乎336至1,234方呎,戶型涵蓋一房至四房。
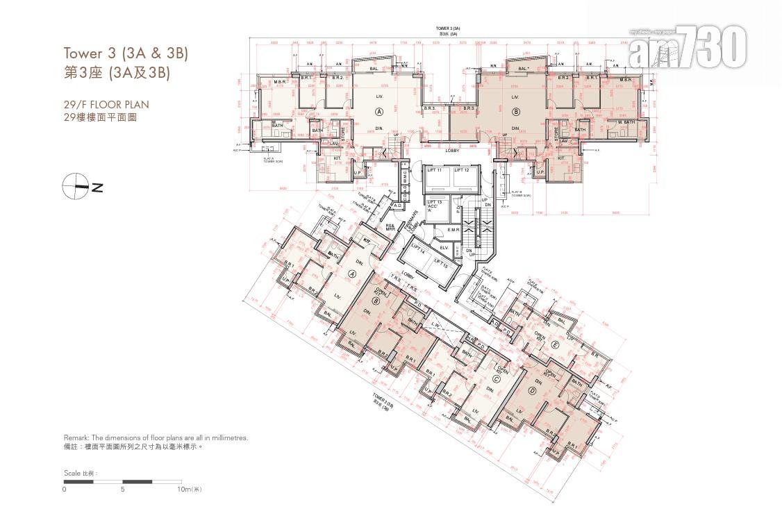
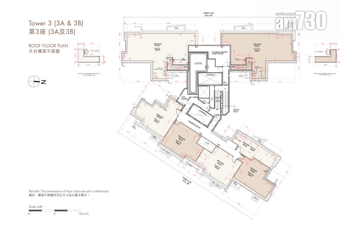
根據樓書顯示,瑜一第1B期位處第3座,位處整個項目中間位置,細分為3A及3B兩翼。16伙特色單位,包括1樓為連平台特色單位,實用面積介乎422至897方呎,平台面積介乎140至434方呎。3A座28樓A及B室為連平台特色單位,實用面積均為1,234方呎,另連51方呎平台。29樓為連天台特色單位,實用面積介乎336至1,234方呎,天台面積介乎248至866方呎。
全盤面積最細為第3B座各層E室,實用面積336方呎,一房開放式廚房間隔,單位採橫向設計,睡房設有曲尺大窗。面積最大則為第3A座29樓B室,實用面積1,234方呎,另連866方呎天台。
瑜一第1B期主打兩房單位,涉123伙,佔全盤約68%,實用面積介乎422至576方呎;三房佔46伙,實用面積介乎897至941方呎;一房涉10伙,實用面積336方呎;四房提供4伙,實用面積1,234方呎。
項目設有總面積7,822方呎住客會所,預計關鍵日期為2024年11月29日,樓花期長約20個月。














