林達民表示,主打兩房及三房戶型佔大多數逾七成。
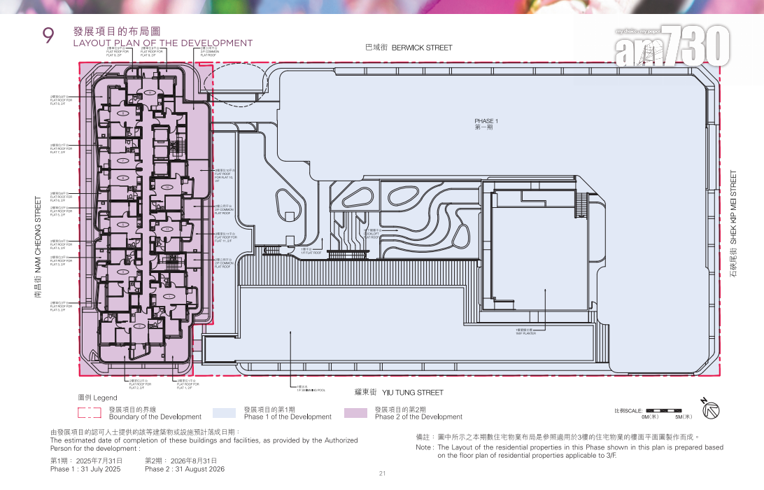
恒基地産(012)長沙灣新盤「Belgravia Place」第2期今日(17日)正式上載樓書,共提供248個住宅單位,實用面積由224至807方呎不等,戶型涵蓋一房至三房及少量特色單位,當中主打兩房及三房戶型佔大多數逾七成。
據樓書顯示,項目由一座住宅大樓組成,標準單位樓層每層設10伙及3部升降機。恒基物業代理董事及營業(一)部總經理林達民表示,一房佔75伙、兩房佔99伙、三房佔72伙,更另設2伙連頂層特色單位。
全盤面積最細單位為第2座2樓單位7,實用面積224方呎,連62方呎平台,一房間隔;全盤面積最大單位為第2座頂層30樓單位1,實用面積807方呎,連585方呎平台,四房一套間隔,屬全盤唯一一伙設有梗廚單位。
林達民續指,「Belgravia Place」第2期園林中央位置種植兩棵櫻花樹,適逢開售正值春暖花開的季節,加上項目提供多元創新的配套設施,因此樓書封面設計以「百花齊放」為主題。另外,項目不設停車位,住客會所位於1樓。第2期預計關鍵日期為明年8月底,樓花期長約18個月。
「Belgravia Place」分兩期推出,合共提供約1,000伙。第2期提供248伙,單位戶型涵蓋一房至三房,當中主打兩房及三房,合共佔整體約七成;另設有特色戶。


















