「Coasto」為精品式商住發展項目,基座設有商舖及會所。圖右為程德韻,左為黃文浩。
宏安地產(1243)全新《The Met.》精品住宅系列、位於鴨脷洲惠風街1號新盤「Coasto」正式上載售樓說明書,提供93伙,實用面積由207至478方呎,標準單位戶型涵蓋一房至兩房,特設8伙連平台或天台特色單位。
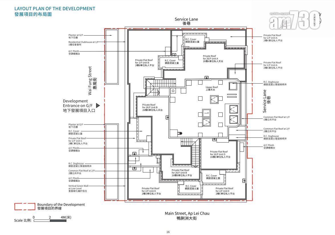
「Coasto」住宅樓層為2樓至26樓(不設4樓、13樓、14樓及24樓),當中標準單位樓層為3樓至15樓及17樓至25樓,特色單位樓層為2樓及26樓,16 樓亦特設1伙平台特色單位。
每層住宅樓層設有兩部升降機,項目住宅單位均設有特高層與層之間高度,2樓至23樓住宅樓層層與層之間的高度約3.325米,25及26樓住宅樓層層與層之間的高度約3.5米。
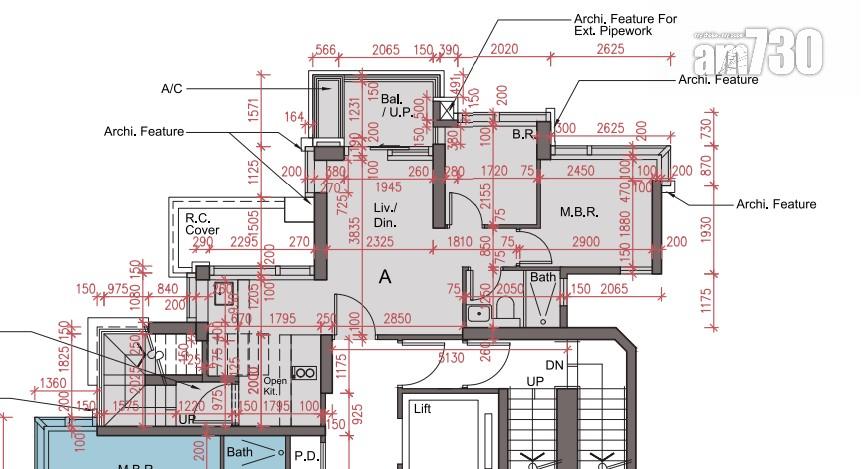
一房標準單位提供47伙,佔項目住宅單位總數約51%,實用面積由247至287方呎。兩房標準單位設有38伙,佔項目住宅單位總數約41%,實用面積由360至371方呎。
至於8伙特色單位,當中位於2樓的平台特色戶共5伙,頂層天台特色戶則設於26樓,提供2伙連內置樓梯及天台的特色單位。另外,項目於16樓D室設有平台,感覺猶如置身空中花園,將開揚景觀引入室內。
全盤最細面積為2樓C室,實用面積207方呎,連119方呎平台,一房間隔。最大面積為26樓A室,實用面積478方呎,連13方呎平台及367方呎天台,兩房間隔。
大部分兩房面向香港仔避風塘方向
宏安地產執行董事程德韻指,「Coasto」為精品式商住發展項目,基座設有商舖及會所,單位坐向布局均突顯出臨海地段海濱的先天條件,項目大部分兩房單位均面向香港仔避風塘方向。項目現正積極進行銷售部署,預計短期內以現樓的形式推出市場。
宏安地產營業及市務總經理黃文浩指,「Coasto」前臨南海岸線香港仔避風塘海景,眺望開揚翠綠太平山山頂,緊密聯繫黃竹坑全新商貿區,薈聚商業藝術文化於一身,步行約1分30秒到達港鐵利東站,4分鐘達黃竹坑站,10分鐘可達金鐘站。
















