Woodis上樓書提供167伙 主打兩房及三房佔全盤逾8成|灣仔新盤
恒基地產(012)位於灣仔活道15號「woodis」,正式上載售樓說明書,提供167伙,項目之預計關鍵日期為 2027 年2月28日。
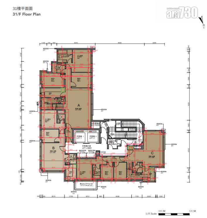
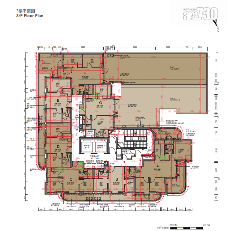
根據樓書顯示,項目樓高28層,提供167伙,戶型涵蓋一房至三房,包括110伙兩房標準戶、22伙三房標準戶、22伙一房標準戶,另設13伙特色戶,包括7伙平台特色戶,以及6伙雲頂及天際特色戶。實用面積由244至1,016方呎,主打兩房及三房,佔全盤逾8成。
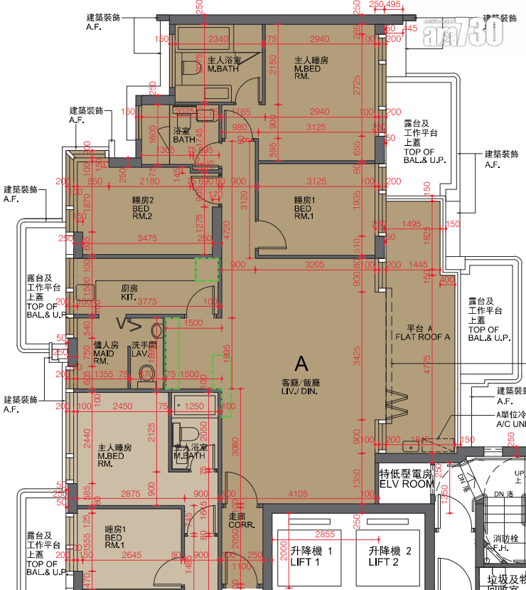
全盤面積最細單位為3樓B室,實用面積244方呎,屬一房連套房間隔,為梗廚設計,外連69方呎平台;面積最大單位為30樓及31樓A室,實用面積均為1,016方呎,間隔分別為三房套及傭人房連廁,以及三房套及儲物室連廁,外連126方呎平台及734方呎天台。
恒基物業代理董事及營業(二)部總經理韓家輝表示,設於中環國際金融中心一期的示範單位及售樓處已完工,預計短期內開放予公眾參觀。



















