佐敦高臨提供259伙 面積232呎起 全數屬中高樓層|新盤樓書
位於彌敦道350號、資本策略地產(497)旗下佐敦新盤「高臨」周二(16日)正式上載樓書至一手住宅物業銷售網,項目分為相連的A1及A2座,提供259伙,實用面積由232至1,589方呎,戶型涵蓋一房至三房。
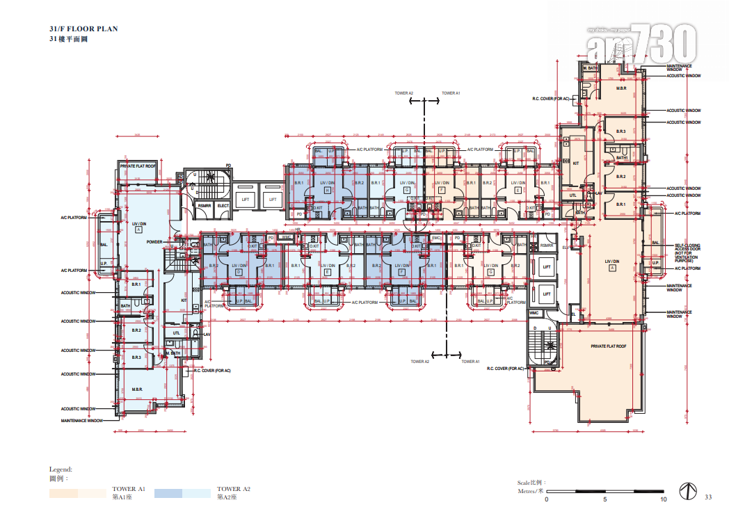
據樓書顯示,物業住宅部分由12樓至31樓(不設13樓、14樓、24樓),合共佔17層,第A1座標準單位每層設5至9伙,第A2座標準單位每層設7至9伙,各設2部升降機。
資本策略地產執行董事何樂輝早前透露,項目均屬中高樓層,約一半單位可享維多利亞港海景,基座則設有9層商業樓面,總樓面面積約14萬方呎,預計作寫字樓及零售用途。
一房及兩房佔八成 僅設1伙連天台特色戶
單位戶型方面,項目主打一房及兩房,合共佔近八成,當中兩房涉137伙佔最多約53%,實用面積介乎374至423方呎;一房提供64伙,佔24%,實用面積介乎269至278方呎;三房涉43伙,佔17%,實用面積介乎545至707方呎;另提供15伙特色單位,實用面積介乎232至1,589方呎,僅1伙屬連天台特色單位,實用面積1,452方呎,連386方呎天台,可經由室內樓梯通往;至於連平台面積由52至606方呎。
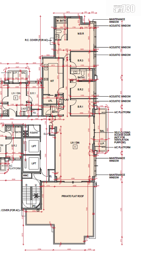
全盤面積最細單位為第A1座12樓H室和第A2座12樓E及F室,一房間隔,實用面積均為232方呎,連170方呎平台。面積最大單位為第A1座31樓A室,四房一套間隔,實用面積1,589方呎,連606方呎平台。「高臨」住宅停車位位於地庫3樓,共提供16個,項目預計關鍵日期為2025年12月31日。
項目預計關鍵日期約為2025年12月31日。

















