利奧坊.首隅懶人包 一文睇晒價單、示範單位、平面圖 (多圖有片)
恒基地產(012)旗下大角咀大型重建項目「利奧坊」分為7期發展,最新推出第5期「利奧坊.首隅」應市。am地產特意為讀者準備「利奧坊.首隅」懶人包,一文睇清「利奧坊.首隅」價單、樓書平面圖、示範單位、呎價、價單、戶型、配套設施、交通與位置等重要資訊。
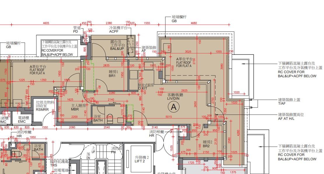
利奧坊.首隅戶型分布、平面圖、車位
「利奧坊.首隅」屬單幢式設計,住宅層數5樓至29樓及天台(不設13樓、14樓及24樓),提供234伙,單位實用面積介乎214至544方呎,戶型涵蓋一房至三房,另設平台或天際特色單位。
項目標準樓層設有11伙,提供2部升降機。標準單位分布方面,一房佔164伙或約70%,實用面積由252至322方呎;兩房佔56伙或約24%,實用面積由322至353方呎。至於5樓為11伙低層連平台特色戶,單位面積介乎214至322方呎,平台面積介乎57至157方呎,涉9伙一房及2伙兩房間隔。另29樓為頂層天際特色單位,單位實用面積由282至544方呎,連181至426方呎,涉1伙一房及2伙三房。
全盤面積最細單位為5樓E室,實用面積214方呎,一房間隔,另連57方呎平台;面積最大單位為29樓A室,實用面積544方呎,三房間隔,另連312方呎平台及394方呎天台,單位未有內設樓梯前往天台。項目不設住客停車位,預計關鍵日期為2025年6月10日。
⇊利奧坊.首隅平面圖⇊
利奧坊.首隅示範單位
「利奧坊.首隅」設有兩個交樓標準示範單位,其中兩房以22樓D室為藍本搭建,實用面積353方呎;一房以22樓A室為藍本搭建,實用面積285方呎。客飯廳採用自然簡約的牆紙,間隔方正實用,外接露台,加上層與層之間高度約3.5米,空間感十足。玄關位置備有隱藏式摺凳,設計師利用高樓底優勢,於天花設度身訂製的鏡面儲物櫃,貼心照顧住戶所需,靈活運用空間。
廚房採用開放式設計,單位精選高級電器品牌,包括德國品牌西門子及意大利 Mia Cucina等。浴室以湖水綠為主色調,德國品牌DURAVIT及Hansgrohe衛浴配備,並裝設鏡面多用途儲物櫃。天花設藍芽喇叭,帶來全方位音樂享受。
單位引入智能家居系統,可控制部分家電,包括日本Doshisha智能二合一環保扇燈,提供照明及調節順逆風功能,營造低碳舒適居所。大門採用Samsung智能門鎖,入口設視像對講系統,住戶可透過Video Door Phone或手機App進行訪客身份確認。
示範單位地址:尖沙咀美麗華廣場1期B113舖
利奧坊.首隅價單
3號價單涉25伙 折實價532.86萬起
「利奧坊.首隅」於3月24日加推3號價單,涉及25伙,包括12伙兩房及13伙一房,實用面積由272至353方呎。價單定價由579.2萬至768.7萬元,呎價介乎18,504元至23,186元。扣除最高8%折扣,單位折實售價由532.86萬至707.2萬元,折實呎價介乎17,024元至21,331元。
2號價單涉25伙 折實價472.88萬元起
「利奧坊.首隅」於3月18日加推2號價單,涉及25伙,包括17伙一房及8伙兩房,實用面積介乎252至353方呎,價單定價由514萬至724.7萬元,呎價介乎18,897元至22,267元。扣除最高8%折扣,折實價472.88萬至666.72萬元,折實呎價17,385至20,486元。
1號價單涉60伙 折實價437.36萬元起
「利奧坊.首隅」於3月15日推出首張價單,涉及60伙,包括42伙一房及18伙兩房,實用面積介乎252至353方呎,價單售價由475.4萬至797.1萬元,呎價介乎18,510元至23,463元。扣除最高8%折扣,單位折實售價由437.36萬至733.33萬元,折實呎價介乎17,029元至21,586元,折實平均呎價18,888元。
恒基物業代理董事及營業(二)部總經理韓家輝表示,項目首批單位定價有折讓,定價參考「利奧坊」2至4期,以及旺角區新近入伙的樓盤,並考慮到樓花期及位置等因素。資料顯示,第4期「利奧坊.壹隅」於2022年4月首批123伙,折實平均呎價23,928元,相比之下「利奧坊.首隅」首張價單低開約21%。
中原地產亞太區副主席兼住宅部總裁陳永傑表示,「利奧坊.首隅」首張價單定價十分驚喜,可謂「幸福置業價」,樓市全面撤辣,各大發展商亦以折讓價推售,買家選擇大增,而且造價吸引,料「利奧坊.首隅」掀搶購潮。
利奧坊.首隅銷售安排
次輪推售:20伙
發展商落實於3月28日展開次輪銷售共20伙,包括8伙兩房及12伙一房,實用面積由252至351方呎。價單定價由524.7萬至768.7萬元,呎價由18,504元至23,186元。扣除最高8%折扣,單位折實售價由482.72萬至707.2萬元,折實呎價介乎17,024元至21,331元。
最低售價單位為12樓E室,實用面積252方呎,一房間隔,折實售價482.72萬元,折實呎價19,156元。最低呎價單位為6樓H室,實用面積351方呎,兩房間隔,折實呎價17,024元,折實售價597.54萬元。
首輪推售:68伙
發展商落實於3月22日展開首輪銷售共68伙,包括22伙兩房及46伙一房,實用面積介乎252至353方呎。價單定價由475.4萬至797.1萬元,呎價介乎18,510元至23,463元。扣除最高8%折扣,單位折實售價由437.36萬至733.33萬元,折實呎價介乎17,029元至21,586元。
最低售價單位為6樓E室,實用面積252方呎,一房間隔,折實售價437.36萬元,折實呎價17,356元。最低呎價單位為6樓D室,實用面積353方呎,兩房間隔,折實呎價17,029元,折實售價601.12萬元。
利奧坊.首隅周邊配套、交通及校網
「利奧坊.首隅」鄰近港鐵奧運站,乘港鐵約5分鐘達香港站直通中環CBD,亦有巴士方便往來九龍、新界。項目周邊購物便利,區內商場有奧海城,亦接近朗豪坊、南昌站VWalk及九龍站Elements圓方等大型商場。
項目備有雙會所「首隅會」(Gateway Club),會所連園林空間逾11,900方呎,由項目兩大設計「千葉之庭」及「天空之森」組成,提供17項多元化設施,包括健身室、瑜珈場地、吊床、BBQ及休閒雅座等,其中位於2樓的「互動球樂 MultiBall Interactive Zone」首次由德國引入到「利奧坊」系列會所,提供沉浸式的足球、網球及乒乓球等球類活動體驗,住戶更可隨意揀選不同多元智能互動遊戲。項目亦引入由兩大知名藝術家日本花藝家東信及羅馬尼亞視覺藝術家 Andreea Braescu 的作品,分別於住宅入口大堂及會所展示。
校網方面,「利奧坊.首隅」小學校網為32校網,中學校網為油尖旺區。











































