新盤樓書|啟德海灣第1期提供1017伙 面積269至771呎 主打兩房
今年以來最大型新盤、嘉華國際(173)、會德豐地產及中國海外(688)合作發展的啟德PARK PENINSULA「啟德海灣」分為2期發展,共涉2,138伙,屬跑道區規模最大項目之一。項目第1期已上載售樓說明書,提供1,017伙,單位實用面積介乎269至771方呎,戶型涵蓋一房至三房,預計2025年3月31日入伙。
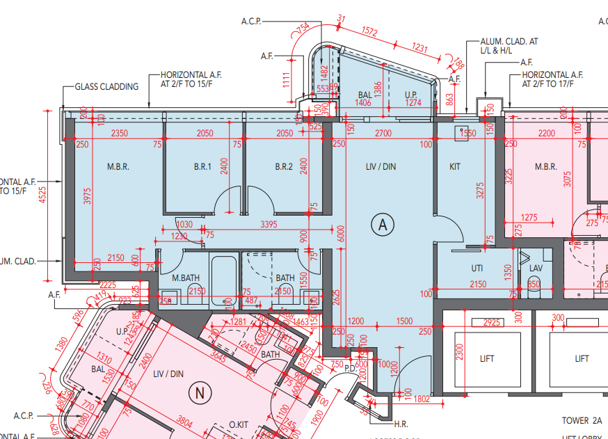
據啟德PARK PENINSULA「啟德海灣」樓書顯示,「啟德海灣」第1期由3座相連物業組成,為第2A、2B及2C座,第2A座標準樓層設13伙,第2B座涉9伙,第2C座則為12伙,各座均備有3架升降機。
項目當中主打兩房,佔564伙或約55%;一房及三房分別提供388伙或57伙;另有8伙連平台或天台特色戶,當中平台面積由122至505方呎,天台僅設2伙,分別為367及466方呎。
全盤面積最細為2C座1樓M室,實用面積269方呎,另連122方呎平台,一房間隔;面積最大為2A座1樓至35樓A室,實用面積771方呎,屬三房一套房連多用途房及洗手間間隔。
另外,項目地庫為停車場,提供225個住客停車位及23個住客電單車停車位。
「啟德海灣」第1期已上載售樓說明書,提供1,017伙,單位實用面積介乎269至771方呎。(蘇文傑攝)

















