大嶼山嵐玥上樓書 僅提供2幢獨立屋 面積逾5600呎|豪宅登場
豪宅市場新一年開局不俗,接連錄得多宗大額買賣,發展商亦把握時機推盤應市。由新藝控股發展、位於大嶼山長沙38號「嵐玥」(The Arcana)於周五(2日)正式上載售樓說明書,僅提供2幢獨立屋,單位實用面積介乎5,658至5,678方呎,皆採五房五套房戶型,大宅設計,盡展豪華非凡氣派。
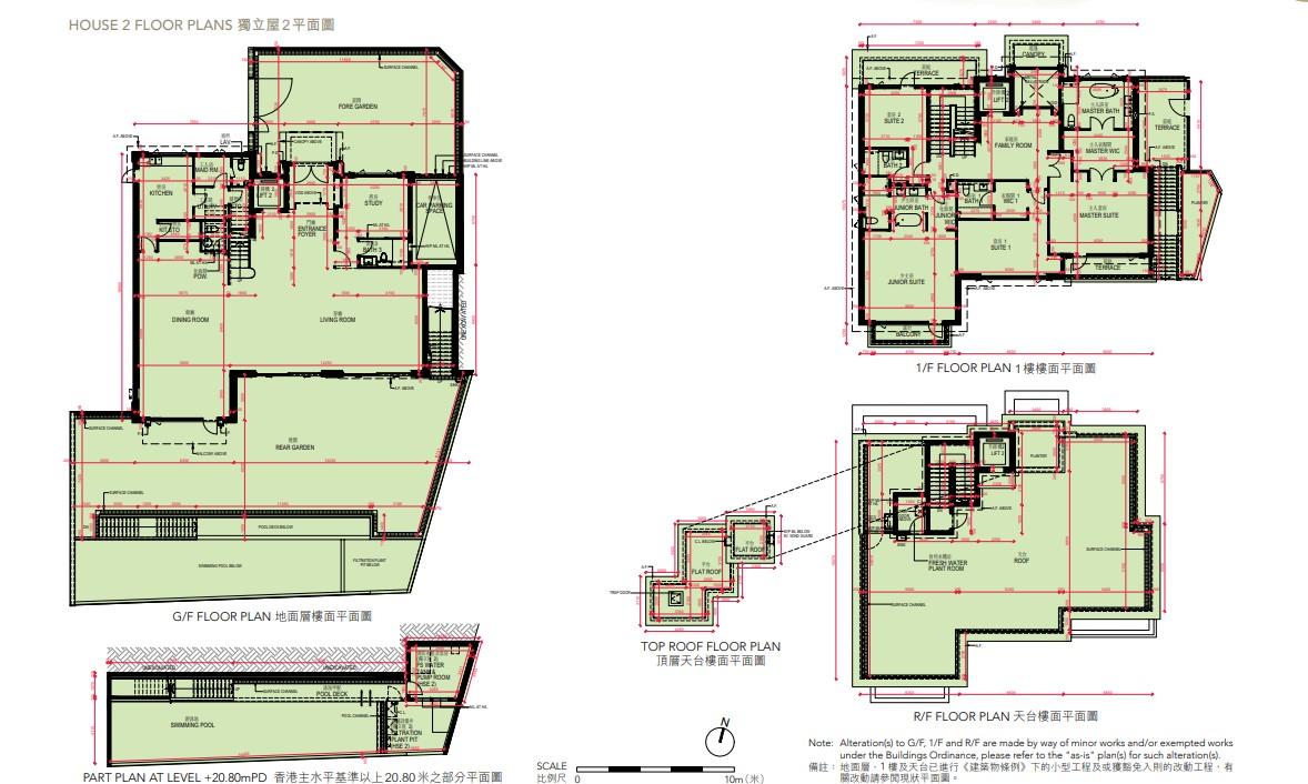
據樓書顯示,項目獨立屋1實用面積5,678方呎,連239方呎平台、4,367方呎花園、184方呎停車位、2,148方呎天台、141方呎梯屋,以及504方呎前庭。至於獨立屋2實用面積5,658方呎,連239方呎平台、4,231方呎花園、178方呎停車位、2,148方呎天台、141方呎梯屋,以及645方呎前庭。
⇊嵐玥獨立屋平面圖⇊
短期内以招標形式現樓發售
發展商表示,「嵐玥」臨於長沙泳灘,前迎一線海景及擁抱湛藍大海,後被翠綠山巒環抱,視野開揚廣闊,盡享恬靜愜意且高私隱度的生活空間。此外,項目開車前往香港國際機場及高鐵香港西九龍站,分別僅需約18分鐘及約30分鐘,迅享大灣區「一小時生活圈」優勢。項目一直接獲不少查詢,包括新香港人、內地,以及新加坡的準買家。項目已獲批滿意紙,將於短期內以招標形式現樓發售。
















