天水圍新盤|Wetland Seasons Bay第3期樓書出爐 面積最細268方呎
新鴻基地產(016)天水圍Wetland Seasons Bay第3期今日(7日)上載售樓說明書,由2座9層高住宅大樓、2座6層高分層別墅,以及6幢洋房組成,提供384伙,單位實用面積由268方呎起。
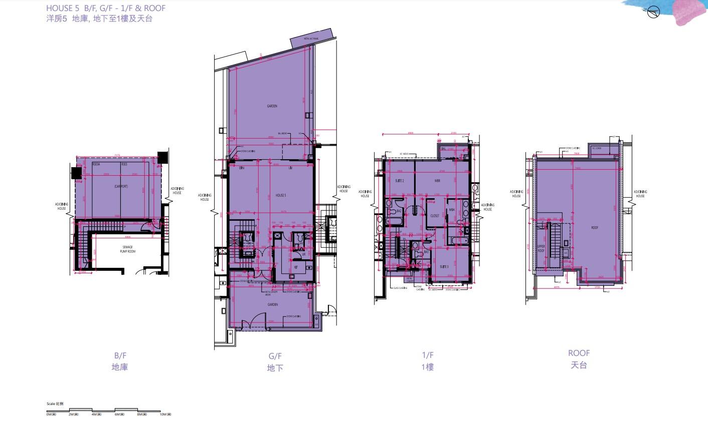
據樓書顯示,該盤戶型涵蓋開放式至四房,實用面積介乎268至1,895方呎,當中分層單位實用面積由268至1,034方呎;而24伙別墅單位實用面積介乎757至1,158方呎。另6幢洋房實用面積介乎1,874至1,895方呎。
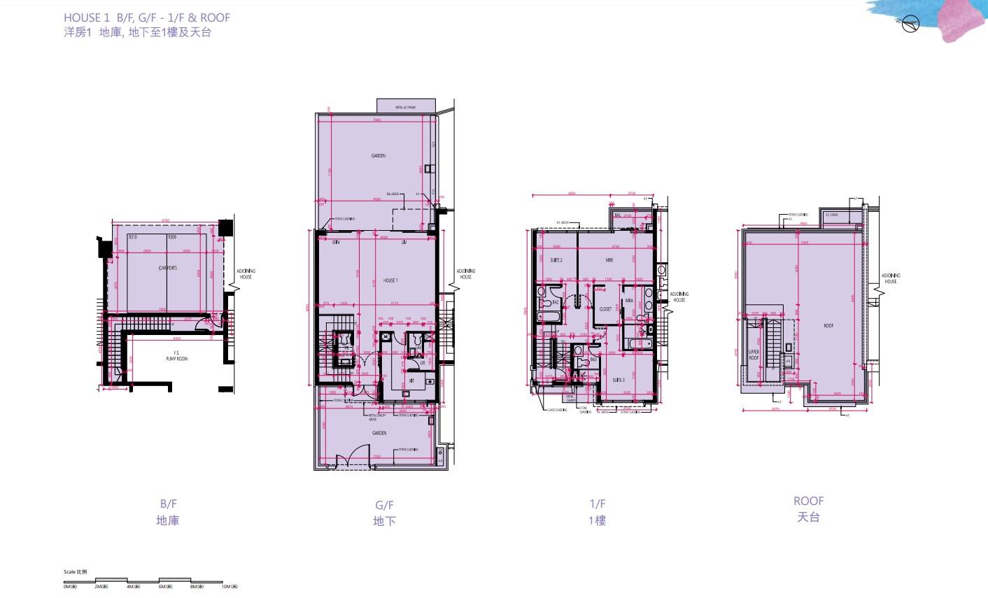
至於全盤面積最細單位為6A座的C1室,實用面積268方呎,開放式間隔;面積最大單位屬1號洋房,實用面積1,895方呎,連839方呎花園及776方呎天台,三房間隔。
Wetland Seasons Bay自設佔地約3萬方呎的商業舖位,提供約20個商舖,呎租介乎約80元至130元,當中人氣餐飲食肆數目佔整體約50%,包括十勝和牛料理、架勢廚房等;亦已確定引入著名約克國際幼稚園、莊柏醫療、日本城等。至於第3期設有全新屋苑出入口,是Wetland系列中距離輕鐵濕地公園站最近的一期,亦鄰近巴士站,方便往返市區。單位景觀多元化,可享濕地公園、天水圍及深圳灣都會景觀。

























