「太子道西233號」今日(6日)正式上載售樓說明書,提供75伙。
新鴻基地產(016)與會德豐地產合作發展的何文田豪宅項目「太子道西233號」已屆現樓,今日(6日)正式上載售樓說明書,提供75伙,戶型涵蓋兩房至四房間隔,實用面積介乎375至1,748方呎。
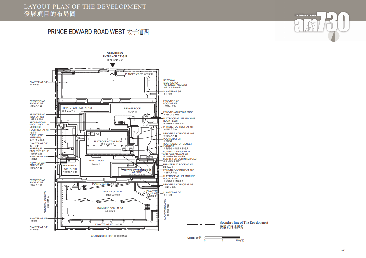
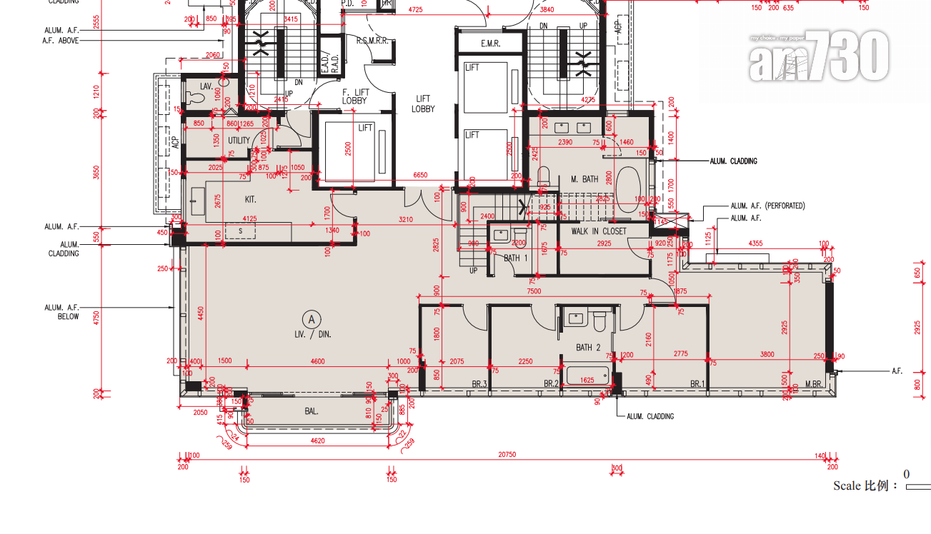
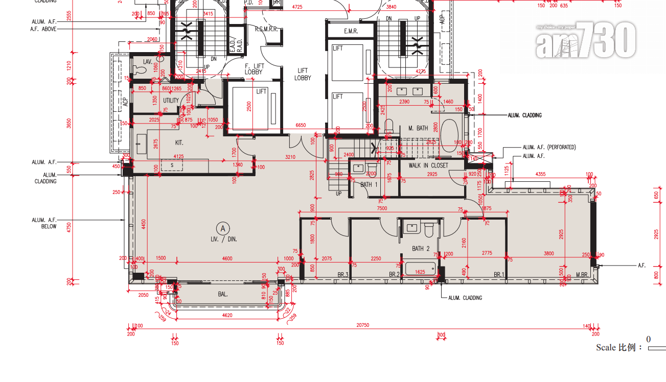
據樓書顯示,採低密度設計,每層設5伙單位,以及3部升降機。項目標準單位四房提供34伙,實用面積由966至1,039方呎;三房提供15伙,實用面積由668至884方呎,兩房提供15伙,實用面積由375至505方呎。
住宅與車位比例約2:1
項目另設11伙連平台或天台特色單位,實用面積由375至1,748方呎。頂層19樓連天台及泳池大宅名為「天池至尊」,實用面積1,748方呎,連1,215方呎天台,備有長約9米天際泳池,四房連特大主人套房及衣帽間,飽覽廣角度加多利山景致。
至於全盤面積最細單位為2至5樓的B及C室,實用面積375方呎,兩房間隔,全盤面積最大為18及19樓A室,實用面積均為1,748方呎,四房間隔。
地庫2層設有38個住宅停車位及4個電單車停車位,住宅與住宅車位比例約為2:1。會所位處項目1樓全層,設有特大落地玻璃設計,設有室外游泳池、健身室、多用途宴會室、共享空間、音樂室及娛樂室等。


















