屯門新盤|恆大.珺瓏灣1期洋房3927萬成交創新高
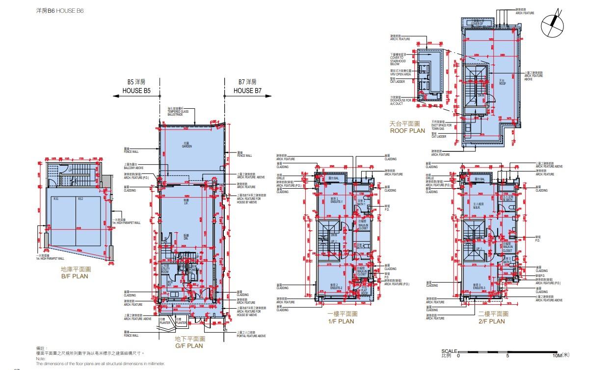
新盤洋房受追捧,中國恒大(3333)屯門已屆現樓的恆大.珺瓏灣第1期,今日(20日)以招標形式售出洋房B6,實用面積2,260方呎,連24方呎平台、608方呎花園、469方呎天台及90方呎梯屋,地庫設兩個車位,成交價3,927.88萬元,呎價17,380元,創項目成交價新高。
該盤上周六(18日)售出洋房B3,實用面積2,260方呎,連24方呎平台、686方呎花園、469方呎天台及90方呎梯屋,成交價3,853.8萬元,呎價17,052元。
恆大.珺瓏灣第1期總共提供22座洋房,實用面積介乎2,260至2,420方呎。






