屯門新盤|瑧譽洋房逾1.9億招標沽 呎價近3.6萬
新界洋房項目有追捧,且造價理想。保利置業(119)屯門青山灣瑧譽有洋房透過招標形式以逾1.9億元成交,屬項目造價次高。
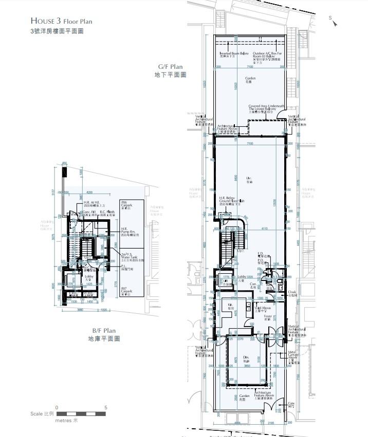
據成交紀錄冊顯示,瑧譽3號屋透過招標形式,以1.90553億元連兩個車位售出,屬項目次高紀錄,呎價36,574元。翻查資料,該盤對上紀錄為8號屋,實用面積5,211方呎,去年12月初以2.14693億元成交,呎價達41,200元。
地庫居室03未有同步售出
是次成交的3號屋,樓高3層,實用面積5,210方呎,連376方呎平台、1,127方呎花園、1,148方呎天台及137方呎梯屋,內置升降機,屬五套房連儲物室間隔。不過3號屋地庫的居室03,實用面積615方呎,並未有同步售出。
計及上述單位,瑧譽今年內已沽出5座洋房,部分連居室,套現近9.18億元。







