屯門黃金海灣.意嵐提供692伙 主攻細單位 開放式最大328呎|新盤樓書
由旭日國際發展的屯門青山公路青山灣段18號發展項目「黃金海灣·意嵐」今日(19日)正式上載售樓說明書至一手住宅物業銷售網,全盤提供692伙,戶型涵蓋開放式至三房,實用面積由182至767方呎。
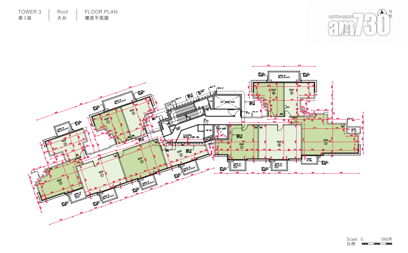
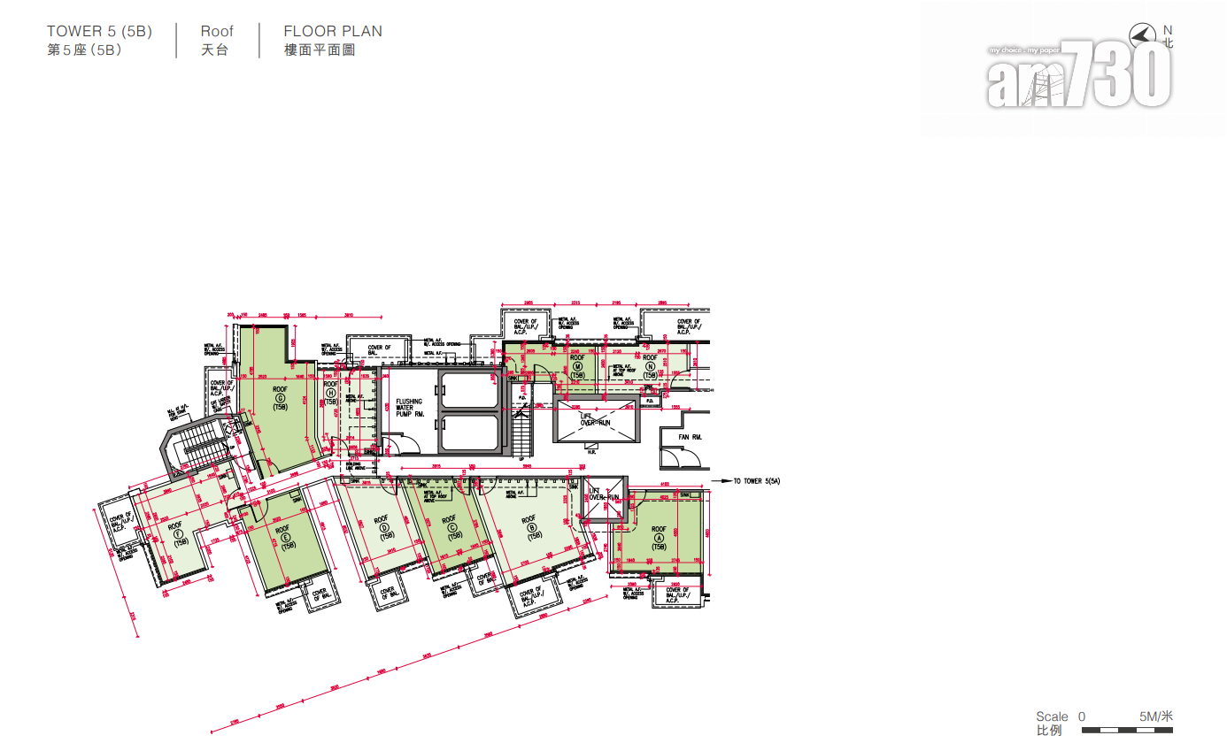
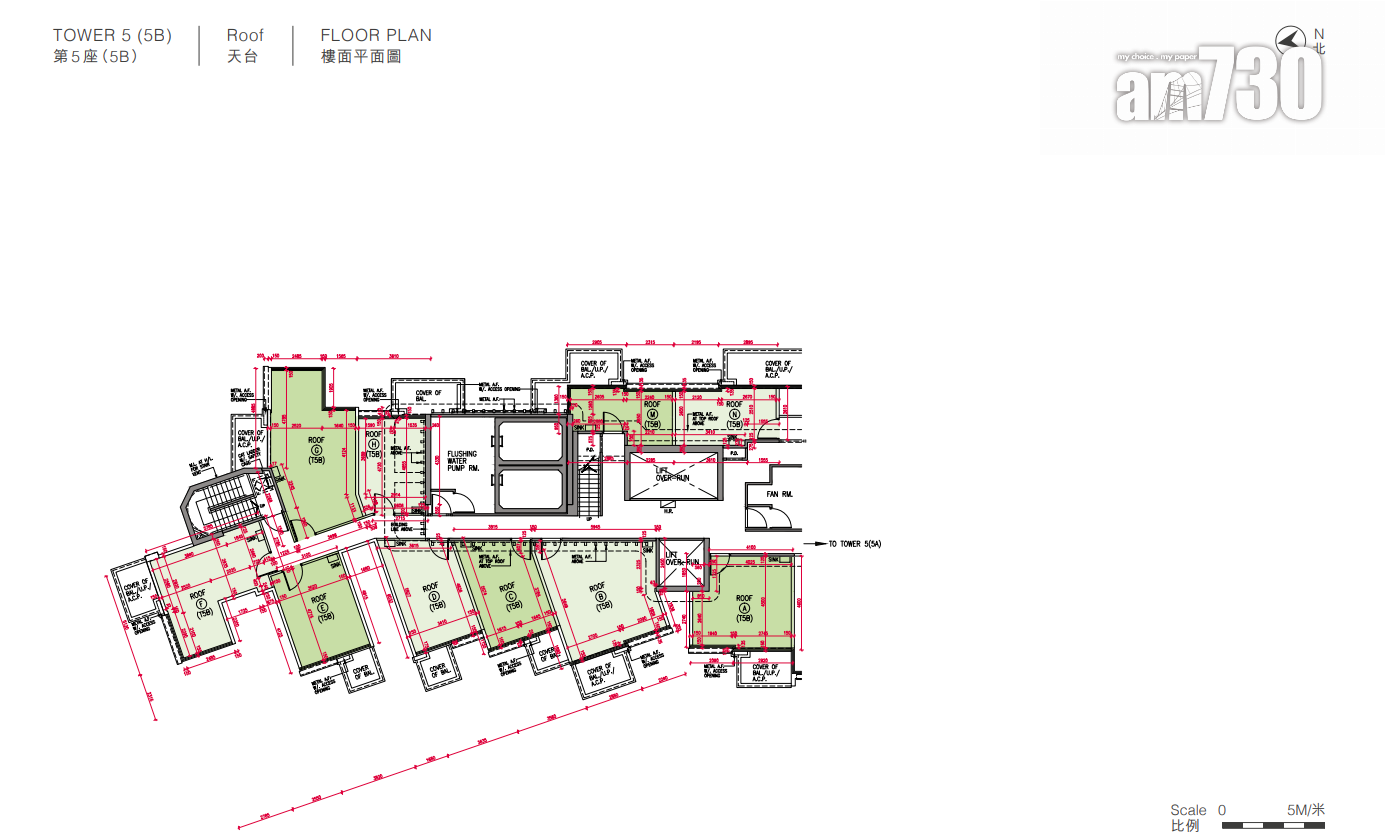
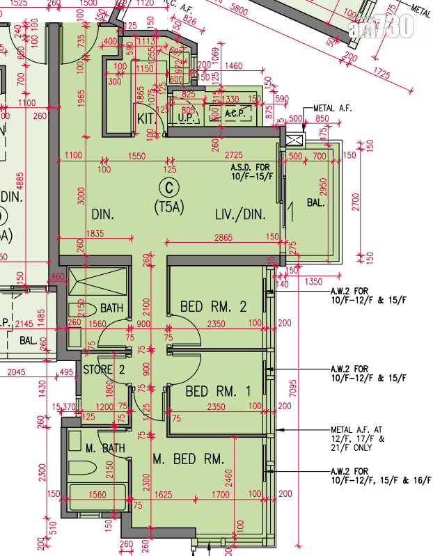
據售樓說明書顯示,項目設兩座住宅大樓,包括第3座及第5座,第5座細分A、B兩翼。第3座標准單位每層設12伙及3部升降機;第5A及5B座標准單位每層分別設13及12伙,均設3部升降機。
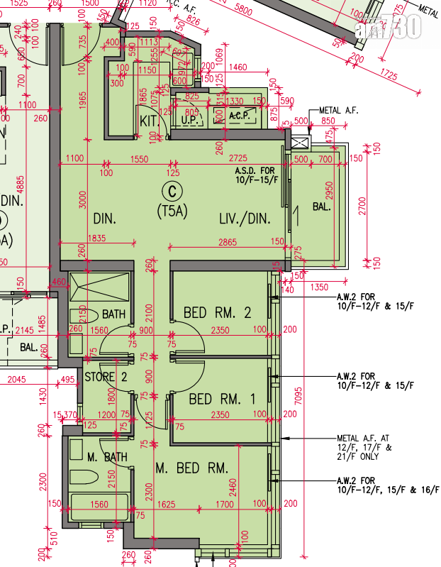
戶型分布方面,標準單位提供623伙,實用面積由204至767方呎,主打中小型單位,開放式及一房合佔近六成。開放式提供254伙,實用面積由204至328方呎;一房提供154伙,實用面積由300至355方呎;兩房涉180伙,實用面積由399至516方呎;三房涉35伙,實用面積包括654及767方呎。
⇊黃金海灣·意嵐平面圖⇊
住戶需經公共樓梯前往天台
「黃金海灣·意嵐」另提供69伙特色單位,實用面積由182至767方呎,包括34伙連平台特色戶,平台面積由47至270方呎,以及35伙連天台特色戶,天台面積由87至622方呎,住戶均需經公共樓梯前往。
全盤面積最細單位為第5A座5樓K室,以及第5B座7樓K室,實用面積182方呎,開放式間隔,各連149方呎及155方呎平台。面積最大單位包括第5A座5至26樓C室,實用面積767方呎,三房間隔,其中26樓C室連622方呎天台。
項目停車位位於地下及1樓,合共提供58個住宅停車位。項目預計關鍵日期為2025年11月21日,樓花期長約17個月。發展商早前透露,兩期約七成單位可享青山灣海景,約兩分多鐘可直達黃金泳灘,第1期「意嵐」中海景單位主要為向南單位,不同戶型單位均有機會望海,分布平均。


























