山頂歌賦山道1號洋房10.88億標售 創今年一手新高價|超級豪宅
由針織商人羅建生或有關人士持有的山頂歌賦山道1、3、5號項目,早前上載樓書及銷售安排,推出1號洋房以招標方式於今日(26日)發售,即以10.88億元售出。
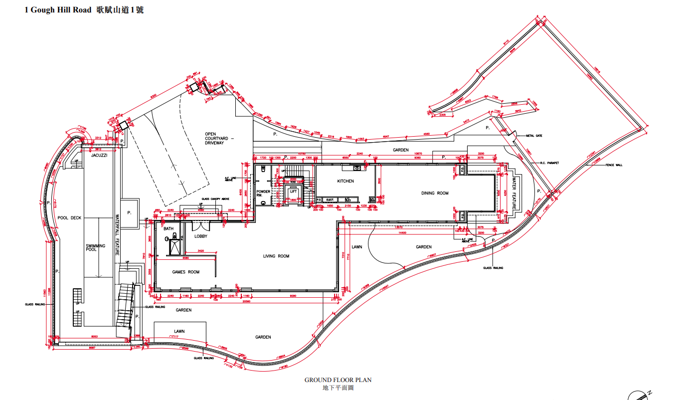
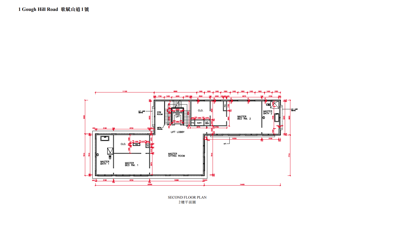
根據樓書顯示,該洋房實用面積11,451方呎,屬五房五套間隔,設10,357方呎花園,連泳池及按摩池,另3,035方呎天台、130方呎平台。成交價10.88億元,呎價95,014元。
據資料顯示,歌賦山道3號洋房,於2013年以6.5億元售出予內地人士,以實用面積5,842方呎計算,呎價約11.12萬元,即是次成交呎價較12年前低逾14%。









