「帝御」第二期「帝御‧星濤」首次公開3房單位供參觀,相信會吸納一班家庭客及區內換樓客。
「帝御‧星濤」建有兩座合共614個單位,部分單邊單位可享黃金泳灘海景。
是次特別引入「智能I Royale」,Sunny及Rainbow會為參觀者介紹會所、大樓、地區及交通模型,更會引領參觀售樓處各項設施。
由香港小輪集團夥同帝國集團合力發展的青山公路8號大型住宅項目「帝御」,第一期「帝御‧金灣」於疫市下推盤仍錄得相當亮麗的成績,現已售出約96%單位,現只餘少量特色單位及招標單位待售。不少第一期向隅買家,均相當期待項目推出第二期。
項目第二期「帝御‧星濤」現在已正式開放位於尖沙咀美麗華廣場的示範單位讓公眾參觀,為展現項目鄰近黃金泳灘,距沙灘僅約5分鐘步程,與繁星碧海鄰的優勢,發展商特別以幼滑細沙及互動投映技術,於室內搭建海灣泳灘場景,還原黃金泳灘的景色讓參觀者體驗與碧海繁星為鄰的海上度假式悠閒生活。
項目亦鄰近建設中的屯赤隧道,日後前往機場、港珠澳大橋和全新機場航天城會更方便。
屋苑園林會所,提供包括泳池、燒烤場、健身室、船長薈、童夢制作室、樂作坊等多項不同設施供住戶時享用。於戶外庭園更保留了印度橡樹及高山榕等三棵大古樹。
首批123伙 折實約299萬元起
發展商已公布「帝御‧星濤」首張價單,首批推出123個單位,包括開放式至4房間隔,實用面積介乎208至996平方呎,定價由328.4萬元1,533.2萬元不等,以發展商可提供最高9%折扣計算,折實售價介乎298.84萬元至1,395.21萬元。
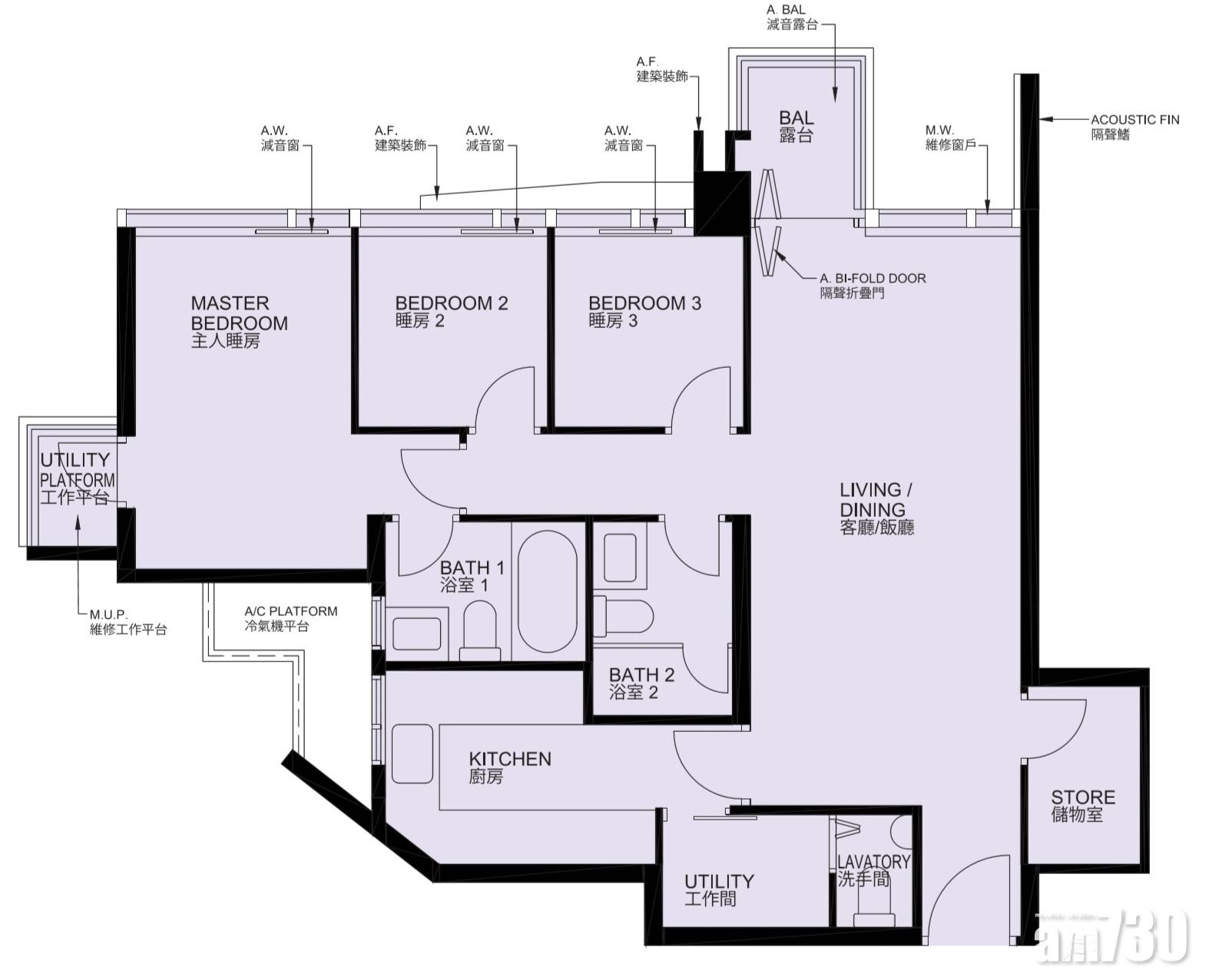
「帝御‧星濤」建有2座合共614個單位,提供包括開放式、一房、一房半、兩房、三房半、四房,以及特色單位,實用面積介乎約186平方呎至1,376平方呎。當中「帝御‧星濤」更獨有少量三房連衣帽間及四房單位,實用面積由819平方呎起。是次除1房和2房示範單位外,更首度開放3房連套房,另加儲物室、工人房和洗手間的示範單位讓公眾參觀。想知單位有幾實用,一齊睇真啲:













