康城新盤|凱柏峰I突擊上樓書 單位面積291方呎起
市場焦點新盤、由信和置業(083)、嘉華國際(173)、招商局置地(978)及港鐵(066)合作發展的日出康城第11期發展項目凱柏峰I (Villa Garda I)已取得預售樓花同意書,並隨即上載售樓說明書,單位實用面積由291方呎起,而標準一房單位實用面積則由329方呎起。
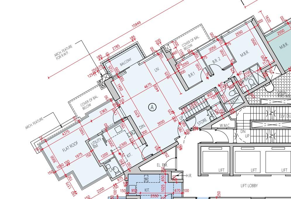
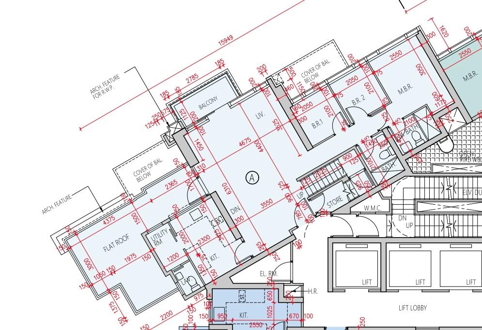
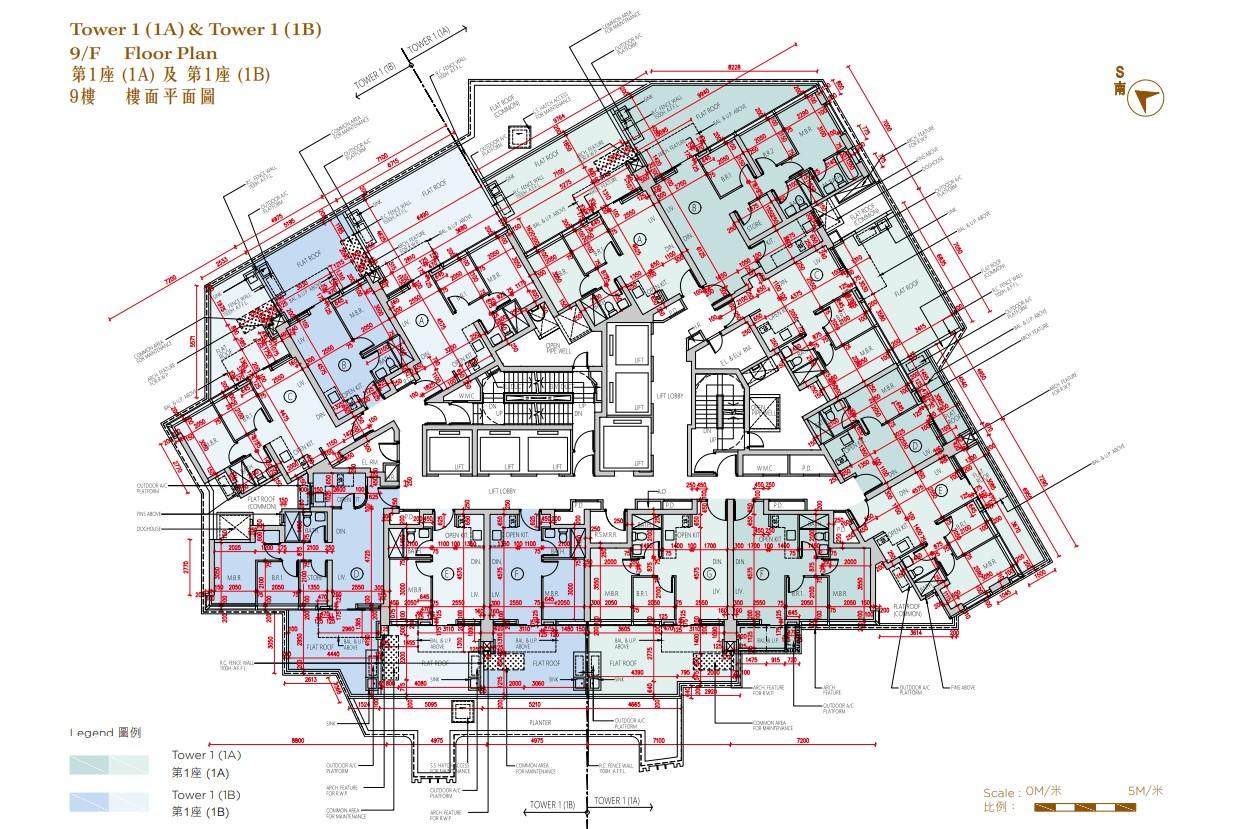
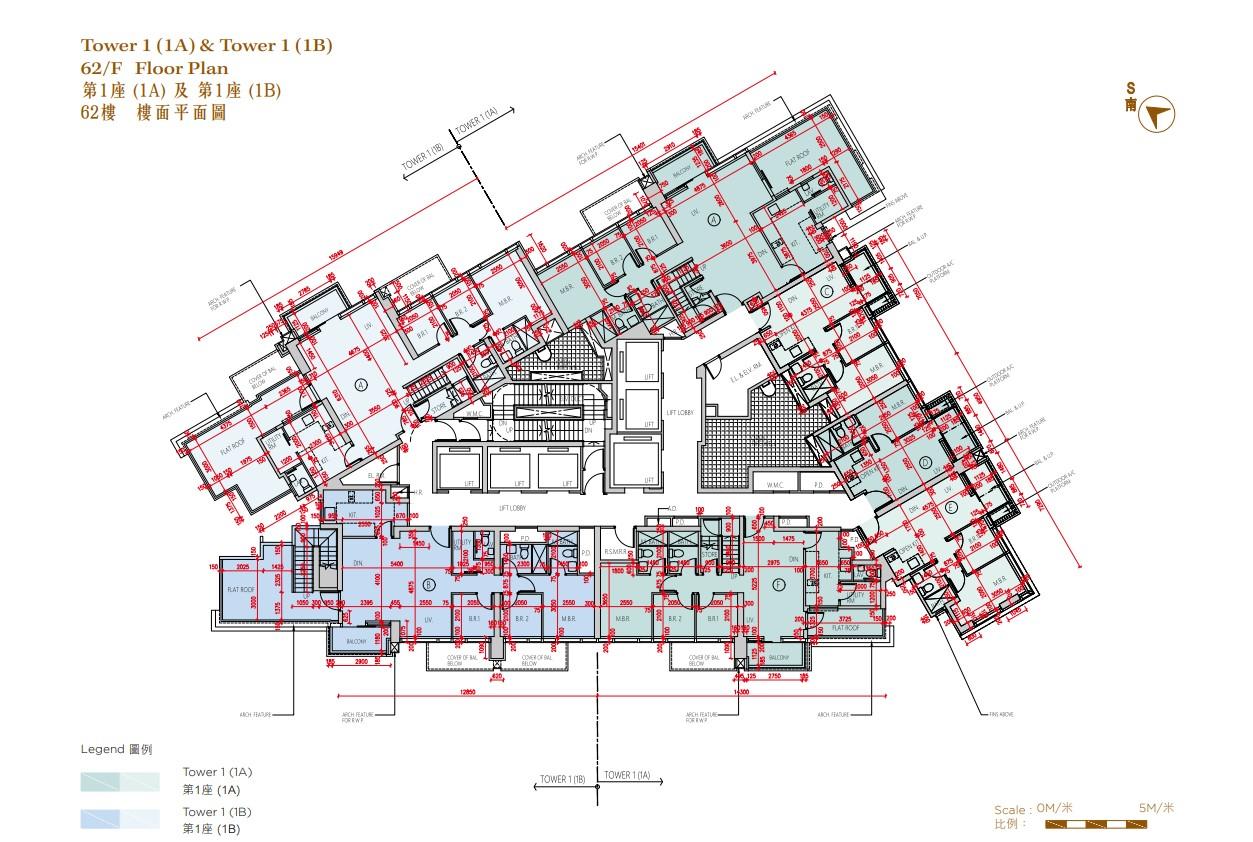
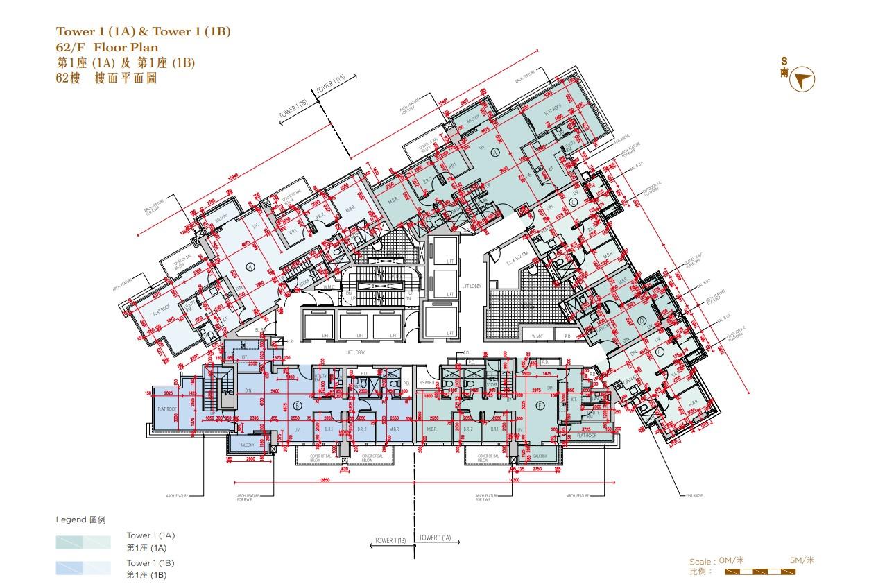
日出康城第11期共涉1,880伙,將分三期發展。凱柏峰I共提供592伙,據樓書顯示,項目涉1座住宅物業,細分1A及1B座,標準樓層由9至62樓,以9樓為例,採一梯13伙設計,共用6部升降機,其中1A座一梯7伙,而1B座一梯6伙。至於單位涵蓋一房至三房,實用面積介乎291至995方呎;其中標準一房單位佔176伙,實用面積由329至337方呎;標準兩房提供353伙,實用面積448至561方呎;標準三房單位涉44伙,實用面積721方呎。另備19伙特色戶,實用面積介乎291至995方呎。
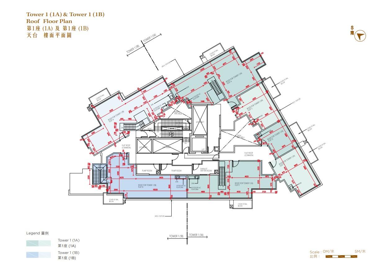
該盤最細面積單位為1A座9樓D室,實用面積291方呎,一房間隔,連64方呎平台;最大面積單位為1B座62樓A室,實用面積995方呎,連200方呎平台及812方呎天台,三房間隔,值得一提3間房睡同向南。標準分層最細面積單位為第1A座D室,實用面積329方呎。該盤預計關鍵日期為2024年11月15日,樓花期長約29個月。
信和置業營業部集團聯席董事田兆源表示,凱柏峰I有機會短期開放示範單位及公布首張價單。













